|
|
|
| Larry Stein Oklahoma County Assessor (405) 713-1200 - Public Access System |
|
|
|
|
|
|
| Real Property Display - Screen Produced 4/4/2026 10:54:34 PM | ||||
|---|---|---|---|---|
| Account: R122341530 | Type: Residential | Location: |
1108 PRUETT DR |
|
| Building Name/Occupant: |
|
EDMOND |
||
| Owner Name 1: | HOBOKEN INVESTMENTS LLC |
Parcel PIN#: |
4706-12-234-1530 |
|
| Owner Name 2: | 1/4 section #: |
4706 |
||
| Owner Name 3: | Parent Acct: |
|
||
| Billing Address: | 11210 BURNHAM AVE | Tax District: |
|
|
| City, State, Zip | OKLAHOMA CITY, OK 73114 | School System: |
Edmond #12 |
|
|
Country: (If noted) |
Land Size: |
0.1117 Acres |
||
|
Land Value: 21,645 |
|
|||
|
Sect 27-T14N-R3W Qtr SE |
CHATEAU TO EDMOND
Block
003
Lot
01A
|
|||
| Full Legal Description: CHATEAU TO EDMOND 003 01A |
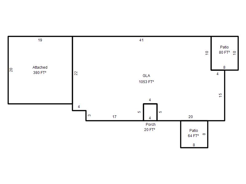
| Photo & Sketch (if available) | Comp Sales (ordered by relevancy) |
|
||||||||||||||||||
|
||||||||||||||||||||
| Value History (*The County Treasurer 405-713-1300 posts & collects actual tax amounts. Contact information HERE) | |||||||||||||
|---|---|---|---|---|---|---|---|---|---|---|---|---|---|
| Year | Market Value | Taxable Mkt Value | Gross Assessed | Exemption | Net Assessed | Millage | Est. Tax | Tax Savings | |||||
|
2026 |
158,000 |
127,627 |
14,038 |
0 |
14,038 |
105.16 |
$1,476 |
$351 |
|||||
|
2025 |
158,500 |
121,550 |
13,369 |
0 |
13,369 |
105.16 |
$1,406 |
$427 |
|||||
|
2024 |
156,000 |
115,762 |
12,733 |
0 |
12,733 |
105.03 |
$1,337 |
$465 |
|||||
|
2023 |
139,500 |
110,250 |
12,127 |
0 |
12,127 |
104.24 |
$1,264 |
$335 |
|||||
|
2022 |
114,500 |
105,000 |
11,550 |
0 |
11,550 |
104.64 |
$1,209 |
$109 |
|||||
| Property Account Status/Adjustments/Exemptions | ||
|---|---|---|
| Account # | Exemption Description | Amount |
|
R122341530 |
5% Capped Account |
0 |
| Property Deed Transaction History (Recorded in the County Clerk's Office) | ||||||||||
|---|---|---|---|---|---|---|---|---|---|---|
| Date | Type | Book | Page | Price | Grantor | Grantee | ||||
|
10/15/2021 |
|
Hmstd Off & |
$0 |
C & A REV TRUST |
HOBOKEN INVESTMENTS LLC |
|||||
|
7/3/2020 |
|
Deeds |
$0 |
WILHITE ANNA |
C & A REV TRUST |
|||||
|
3/12/2020 |
|
Mult Parcel |
$200,000 |
ZAK MILAN & VICKI L |
WILHITE ANNA |
|||||
|
12/4/2013 |
|
Mult Parcel |
$178,500 |
CHAPMAN ALBERT K & MARILYN S |
ZAK MILAN & VICKI L |
|||||
|
3/5/2004 |
|
Deeds |
$0 |
CHAPMAN ALBERT K & MARILYN S CHAPMAN NISHIA G |
CHAPMAN ALBERT K & MARILYN S |
|||||
| Last Mailed Notice of Value (N.O.V.) Information/History | ||||||||
|---|---|---|---|---|---|---|---|---|
| Year | Date | Market Value | Taxable Market Value | Gross Assessed | Exemption | Net Assessed | ||
|
2026 |
02/06/2026 |
158,000 |
127,627 |
14,038 |
0 |
14,038 |
||
|
2025 |
01/31/2025 |
158,500 |
121,550 |
13,369 |
0 |
13,369 |
||
|
2024 |
01/22/2024 |
156,000 |
115,762 |
12,733 |
0 |
12,733 |
||
|
2023 |
01/23/2023 |
139,500 |
110,250 |
12,127 |
0 |
12,127 |
||
|
2022 |
02/22/2022 |
114,500 |
105,000 |
11,550 |
0 |
11,550 |
||
| Property Building Permit History | |||||||||||
|---|---|---|---|---|---|---|---|---|---|---|---|
| Issued | Permit # | Provided by | Bldg # | Description | Est Construction Cost | Status | |||||
| No Building Permit records returned. | |||||||||||
| Click button on building number to access detailed information: | ||||||
|---|---|---|---|---|---|---|
| Bldg # | Vacant/Improved Land | Bldg Description | Year Built | SqFt | # Stories | |
|
1 |
Improved |
Duplex One Story |
1984 |
1,053 |
1 Stories |
|