|
|
|
| Larry Stein Oklahoma County Assessor (405) 713-1200 - Public Access System |
|
|
|
|
|
|
| Real Property Display - Screen Produced 4/4/2026 10:54:34 PM | ||||
|---|---|---|---|---|
| Account: R122341550 | Type: Residential | Location: |
1104 PRUETT DR |
|
| Building Name/Occupant: |
|
EDMOND |
||
| Owner Name 1: | NGUYEN LAM Q |
Parcel PIN#: |
4706-12-234-1550 |
|
| Owner Name 2: | 1/4 section #: |
4706 |
||
| Owner Name 3: | Parent Acct: |
|
||
| Billing Address: | 1104 PRUETT DR | Tax District: |
|
|
| City, State, Zip | EDMOND, OK 73003-4904 | School System: |
Edmond #12 |
|
|
Country: (If noted) |
Land Size: |
0.3481 Acres |
||
|
Land Value: 47,000 |
|
|||
|
Sect 27-T14N-R3W Qtr SE |
CHATEAU TO EDMOND
Block
003
Lot
000
|
|||
| Full Legal Description: CHATEAU TO EDMOND 003 000 ALL LOT 2A & PT OF LOT 2B DESCRIBED AS: BEG AT NW/C LT 2A TH NELY135.27FT TH SELY ON A CURVE TO THE LEFT 35.71FT SWLY134.34FT W83FT NLY112.54FT TO BEG |
| Photo & Sketch (if available) | Comp Sales (ordered by relevancy) |
|
||||||||||||||||||
|
||||||||||||||||||||
| Value History (*The County Treasurer 405-713-1300 posts & collects actual tax amounts. Contact information HERE) | |||||||||||||
|---|---|---|---|---|---|---|---|---|---|---|---|---|---|
| Year | Market Value | Taxable Mkt Value | Gross Assessed | Exemption | Net Assessed | Millage | Est. Tax | Tax Savings | |||||
|
2026 |
243,500 |
212,500 |
23,374 |
0 |
23,374 |
105.16 |
$2,458 |
$359 |
|||||
|
2025 |
247,000 |
202,381 |
22,261 |
0 |
22,261 |
105.16 |
$2,341 |
$516 |
|||||
|
2024 |
238,500 |
192,744 |
21,201 |
0 |
21,201 |
105.03 |
$2,227 |
$529 |
|||||
|
2023 |
219,000 |
183,566 |
20,191 |
0 |
20,191 |
104.24 |
$2,105 |
$406 |
|||||
|
2022 |
196,500 |
174,825 |
19,230 |
0 |
19,230 |
104.64 |
$2,012 |
$249 |
|||||
| Property Account Status/Adjustments/Exemptions | ||
|---|---|---|
| Account # | Exemption Description | Amount |
|
R122341550 |
5% Capped Account |
0 |
| Property Deed Transaction History (Recorded in the County Clerk's Office) | ||||||||||
|---|---|---|---|---|---|---|---|---|---|---|
| Date | Type | Book | Page | Price | Grantor | Grantee | ||||
|
8/10/2016 |
|
Deeds |
$148,000 |
SIDERS RICHARD W & DIANE L |
NGUYEN LAM Q |
|||||
|
6/18/2015 |
|
Deeds |
$145,000 |
JACKSON TROY SHERMAN & LORETTA ENID |
SIDERS RICHARD W & DIANE L |
|||||
|
9/15/2014 |
|
Deeds |
$0 |
JACKSON TROY SHERMAN CO TRS JACKSON LORETTA ENID CO TRS |
JACKSON TROY SHERMAN & LORETTA ENID |
|||||
|
7/19/2006 |
|
Deeds |
$121,000 |
JACKSON TROY W TRS JACKSON BRANDIE R TRS |
JACKSON TROY SHERMAN CO TRS JACKSON LORETTA ENID CO TRS |
|||||
|
9/19/2003 |
|
Deeds |
$0 |
JACKSON TROY W |
JACKSON TROY W TRS JACKSON BRANDIE R TRS |
|||||
| Last Mailed Notice of Value (N.O.V.) Information/History | ||||||||
|---|---|---|---|---|---|---|---|---|
| Year | Date | Market Value | Taxable Market Value | Gross Assessed | Exemption | Net Assessed | ||
|
2026 |
02/06/2026 |
243,500 |
212,500 |
23,374 |
0 |
23,374 |
||
|
2025 |
01/31/2025 |
247,000 |
202,381 |
22,261 |
0 |
22,261 |
||
|
2024 |
01/22/2024 |
238,500 |
192,744 |
21,201 |
0 |
21,201 |
||
|
2023 |
01/23/2023 |
219,000 |
183,566 |
20,191 |
0 |
20,191 |
||
|
2022 |
02/22/2022 |
196,500 |
174,825 |
19,230 |
0 |
19,230 |
||
| Property Building Permit History | |||||||||||
|---|---|---|---|---|---|---|---|---|---|---|---|
| Issued | Permit # | Provided by | Bldg # | Description | Est Construction Cost | Status | |||||
| No Building Permit records returned. | |||||||||||
| Click button on building number to access detailed information: | ||||||
|---|---|---|---|---|---|---|
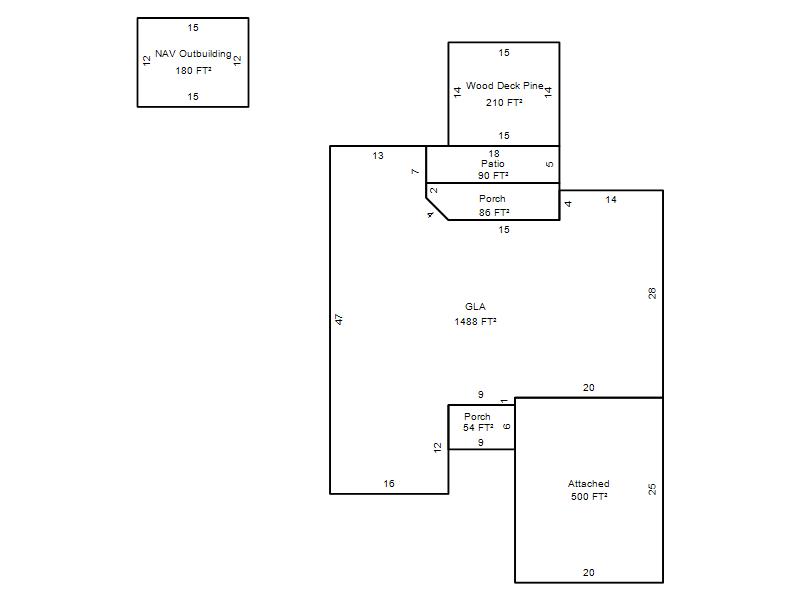
| Bldg # | Vacant/Improved Land | Bldg Description | Year Built | SqFt | # Stories | |
|
1 |
Improved |
Ranch 1 Story |
1995 |
1,488 |
1 Stories |
|