|
|
|
| Larry Stein Oklahoma County Assessor (405) 713-1200 - Public Access System |
|
|
|
|
|
|
| Real Property Display - Screen Produced 4/4/2026 10:55:34 PM | ||||
|---|---|---|---|---|
| Account: R122341750 | Type: Residential | Location: |
1019 DUSTIN DR |
|
| Building Name/Occupant: |
|
EDMOND |
||
| Owner Name 1: | WAUGH BRITTNEY |
Parcel PIN#: |
4706-12-234-1750 |
|
| Owner Name 2: | 1/4 section #: |
4706 |
||
| Owner Name 3: | Parent Acct: |
|
||
| Billing Address: | 1019 DUSTIN DR | Tax District: |
|
|
| City, State, Zip | EDMOND, OK 73003-4907 | School System: |
Edmond #12 |
|
|
Country: (If noted) |
Land Size: |
0.1761 Acres |
||
|
Land Value: 34,132 |
|
|||
|
Sect 27-T14N-R3W Qtr SE |
CHATEAU TO EDMOND
Block
003
Lot
000
|
|||
| Full Legal Description: CHATEAU TO EDMOND 003 000 LOTS 12A & 12B |
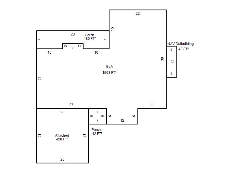
| Photo & Sketch (if available) | Comp Sales (ordered by relevancy) |
|
||||||||||||||||||
|
||||||||||||||||||||
| Value History (*The County Treasurer 405-713-1300 posts & collects actual tax amounts. Contact information HERE) | |||||||||||||
|---|---|---|---|---|---|---|---|---|---|---|---|---|---|
| Year | Market Value | Taxable Mkt Value | Gross Assessed | Exemption | Net Assessed | Millage | Est. Tax | Tax Savings | |||||
|
2026 |
237,500 |
201,651 |
22,181 |
0 |
22,181 |
105.16 |
$2,333 |
$415 |
|||||
|
2025 |
240,500 |
192,049 |
21,124 |
0 |
21,124 |
105.16 |
$2,222 |
$560 |
|||||
|
2024 |
226,500 |
182,904 |
20,119 |
0 |
20,119 |
105.03 |
$2,113 |
$504 |
|||||
|
2023 |
207,500 |
174,195 |
19,161 |
0 |
19,161 |
104.24 |
$1,997 |
$382 |
|||||
|
2022 |
186,500 |
165,900 |
18,249 |
0 |
18,249 |
104.64 |
$1,910 |
$237 |
|||||
| Property Account Status/Adjustments/Exemptions | ||
|---|---|---|
| Account # | Exemption Description | Amount |
|
R122341750 |
5% Capped Account |
0 |
| Property Deed Transaction History (Recorded in the County Clerk's Office) | ||||||||||
|---|---|---|---|---|---|---|---|---|---|---|
| Date | Type | Book | Page | Price | Grantor | Grantee | ||||
|
8/15/2014 |
|
Deeds |
$147,000 |
TICER MISTY R |
WAUGH BRITTNEY |
|||||
|
12/3/2010 |
|
Deeds |
$133,000 |
HOLDGE DANIEL S & KELLIE |
TICER MISTY R |
|||||
|
9/14/2007 |
|
Deeds |
$111,000 |
HANEY KAREN S |
HOLDGE DANIEL S & KELLIE |
|||||
|
10/20/2006 |
|
Deeds |
$0 |
HANEY DEREK L & KAREN S |
HANEY KAREN S |
|||||
|
4/4/1995 |
|
Historical |
$0 |
FIRST STAR HOMES INC |
HANEY DEREK L & KAREN S |
|||||
| Last Mailed Notice of Value (N.O.V.) Information/History | ||||||||
|---|---|---|---|---|---|---|---|---|
| Year | Date | Market Value | Taxable Market Value | Gross Assessed | Exemption | Net Assessed | ||
|
2026 |
02/06/2026 |
237,500 |
201,651 |
22,181 |
0 |
22,181 |
||
|
2025 |
01/31/2025 |
240,500 |
192,049 |
21,124 |
0 |
21,124 |
||
|
2024 |
01/22/2024 |
226,500 |
182,904 |
20,119 |
0 |
20,119 |
||
|
2023 |
01/23/2023 |
207,500 |
174,195 |
19,161 |
0 |
19,161 |
||
|
2022 |
02/22/2022 |
186,500 |
165,900 |
18,249 |
0 |
18,249 |
||
| Property Building Permit History | ||||||
|---|---|---|---|---|---|---|
| Issued | Permit # | Provided by | Bldg # | Description | Est Construction Cost | Status |
|
6/19/1994 |
10208383 |
EDMOND |
1 |
Main Dwellin |
77,500 |
Inactive |
| Click button on building number to access detailed information: | ||||||
|---|---|---|---|---|---|---|
| Bldg # | Vacant/Improved Land | Bldg Description | Year Built | SqFt | # Stories | |
|
1 |
Improved |
Ranch 1 Story |
1994 |
1,568 |
1 Stories |
|