|
|
|
| Larry Stein Oklahoma County Assessor (405) 713-1200 - Public Access System |
|
|
|
|
|
|
| Real Property Display - Screen Produced 4/4/2026 10:54:34 PM | ||||
|---|---|---|---|---|
| Account: R122342000 | Type: Residential | Location: |
207 JENNIFER AVE |
|
| Building Name/Occupant: |
|
EDMOND |
||
| Owner Name 1: | BARNETT VICKIE LOUISE |
Parcel PIN#: |
4706-12-234-2000 |
|
| Owner Name 2: | 1/4 section #: |
4706 |
||
| Owner Name 3: | Parent Acct: |
|
||
| Billing Address: | 207 JENNIFER AVE | Tax District: |
|
|
| City, State, Zip | EDMOND, OK 73003 | School System: |
Edmond #12 |
|
|
Country: (If noted) |
Land Size: |
0.1722 Acres |
||
|
Land Value: 33,375 |
|
|||
|
Sect 27-T14N-R3W Qtr SE |
CHATEAU TO EDMOND
Block
004
Lot
000
|
|||
| Full Legal Description: CHATEAU TO EDMOND 004 000 LOTS 3 & 4 & S10FT OF LOT 5 |
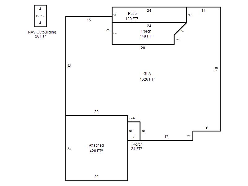
| Photo & Sketch (if available) | Comp Sales (ordered by relevancy) |
|
||||||||||||||||||
|
||||||||||||||||||||
| Value History (*The County Treasurer 405-713-1300 posts & collects actual tax amounts. Contact information HERE) | |||||||||||||
|---|---|---|---|---|---|---|---|---|---|---|---|---|---|
| Year | Market Value | Taxable Mkt Value | Gross Assessed | Exemption | Net Assessed | Millage | Est. Tax | Tax Savings | |||||
|
2026 |
239,000 |
194,712 |
21,417 |
1,000 |
20,417 |
105.16 |
$2,147 |
$617 |
|||||
|
2025 |
242,000 |
189,041 |
20,793 |
1,000 |
19,793 |
105.16 |
$2,082 |
$718 |
|||||
|
2024 |
235,000 |
183,535 |
20,188 |
1,000 |
19,188 |
105.03 |
$2,015 |
$700 |
|||||
|
2023 |
214,500 |
178,190 |
19,600 |
1,000 |
18,600 |
104.24 |
$1,939 |
$521 |
|||||
|
2022 |
173,000 |
173,000 |
19,030 |
1,000 |
18,030 |
104.64 |
$1,887 |
$105 |
|||||
| Property Account Status/Adjustments/Exemptions | ||
|---|---|---|
| Account # | Exemption Description | Amount |
|
R122342000 |
3% Cap Homestead |
0 |
|
R122342000 |
Homestead |
1,000 |
| Property Deed Transaction History (Recorded in the County Clerk's Office) | ||||||||||
|---|---|---|---|---|---|---|---|---|---|---|
| Date | Type | Book | Page | Price | Grantor | Grantee | ||||
|
9/22/2021 |
|
Deeds |
$165,000 |
GIBBON LISA A |
BARNETT VICKIE LOUISE |
|||||
|
6/19/2019 |
|
Hmstd Off & |
$0 |
GIBBON LISA & DAVID A |
GIBBON LISA A |
|||||
|
8/31/2017 |
|
Deeds |
$0 |
GIBBON LISA |
GIBBON LISA & DAVID A |
|||||
|
11/23/2016 |
|
Deeds |
$149,000 |
SKOUBY RAQUEL R |
GIBBON LISA |
|||||
|
3/21/2006 |
|
Deeds |
$0 |
HAGGARD JUSTIN L |
SKOUBY RAQUEL R |
|||||
| Last Mailed Notice of Value (N.O.V.) Information/History | ||||||||
|---|---|---|---|---|---|---|---|---|
| Year | Date | Market Value | Taxable Market Value | Gross Assessed | Exemption | Net Assessed | ||
|
2026 |
02/06/2026 |
239,000 |
194,712 |
21,417 |
1,000 |
20,417 |
||
|
2025 |
01/31/2025 |
242,000 |
189,041 |
20,793 |
1,000 |
19,793 |
||
|
2024 |
01/22/2024 |
235,000 |
183,535 |
20,188 |
1,000 |
19,188 |
||
|
2023 |
01/23/2023 |
214,500 |
178,190 |
19,600 |
1,000 |
18,600 |
||
|
2022 |
02/22/2022 |
173,000 |
173,000 |
19,030 |
1,000 |
18,030 |
||
| Property Building Permit History | ||||||
|---|---|---|---|---|---|---|
| Issued | Permit # | Provided by | Bldg # | Description | Est Construction Cost | Status |
|
9/5/1993 |
10208391 |
EDMOND |
1 |
Main Dwellin |
75,000 |
Inactive |
| Click button on building number to access detailed information: | ||||||
|---|---|---|---|---|---|---|
| Bldg # | Vacant/Improved Land | Bldg Description | Year Built | SqFt | # Stories | |
|
1 |
Improved |
Ranch 1 Story |
1993 |
1,626 |
1 Stories |
|