|
|
|
| Larry Stein Oklahoma County Assessor (405) 713-1200 - Public Access System |
|
|
|
|
|
|
| Real Property Display - Screen Produced 3/23/2026 10:35:34 AM | ||||
|---|---|---|---|---|
| Account: R124951140 | Type: Residential | Location: |
2400 SANTA FE CIR |
|
| Building Name/Occupant: |
|
EDMOND |
||
| Owner Name 1: | TULLIS PATRICIA |
Parcel PIN#: |
4709-12-495-1140 |
|
| Owner Name 2: | TULLIS KIM J | 1/4 section #: |
4709 |
|
| Owner Name 3: | Parent Acct: |
|
||
| Billing Address: | 11500 SUNDANCE DR | Tax District: |
|
|
| City, State, Zip | YUKON, OK 73099-9139 | School System: |
Edmond #12 |
|
|
Country: (If noted) |
Land Size: |
0.1961 Acres |
||
|
Land Value: 34,160 |
|
|||
|
Sect 28-T14N-R3W Qtr NE |
SANTA FE TRAILS TO EDMOND
Block
001
Lot
015
|
|||
| Full Legal Description: SANTA FE TRAILS TO EDMOND 001 015 |
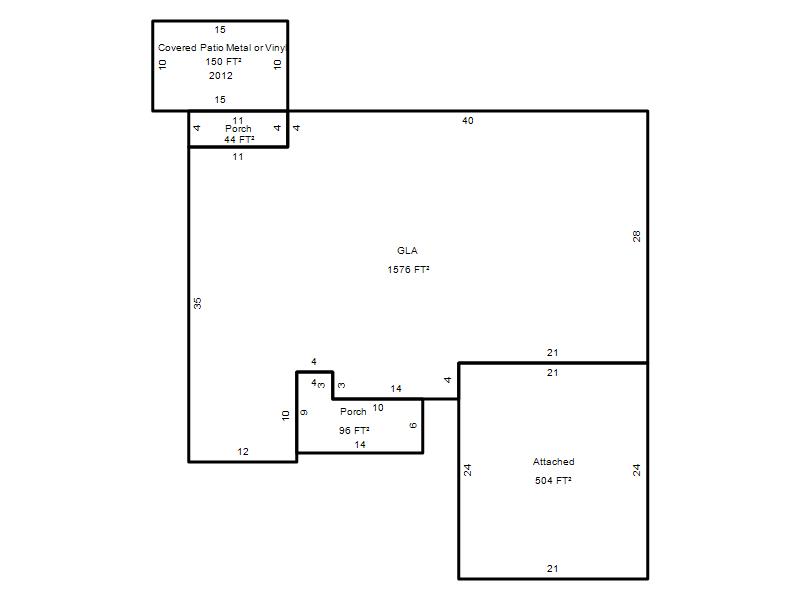
| Photo & Sketch (if available) | Comp Sales (ordered by relevancy) |
|
||||||||||||||||||
|
||||||||||||||||||||
| Value History (*The County Treasurer 405-713-1300 posts & collects actual tax amounts. Contact information HERE) | |||||||||||||
|---|---|---|---|---|---|---|---|---|---|---|---|---|---|
| Year | Market Value | Taxable Mkt Value | Gross Assessed | Exemption | Net Assessed | Millage | Est. Tax | Tax Savings | |||||
|
2025 |
238,500 |
207,850 |
22,862 |
0 |
22,862 |
105.16 |
$2,404 |
$355 |
|||||
|
2024 |
233,500 |
197,953 |
21,773 |
0 |
21,773 |
105.03 |
$2,287 |
$411 |
|||||
|
2023 |
226,000 |
188,527 |
20,737 |
0 |
20,737 |
104.24 |
$2,162 |
$430 |
|||||
|
2022 |
195,500 |
179,550 |
19,750 |
0 |
19,750 |
104.64 |
$2,067 |
$184 |
|||||
|
2021 |
171,000 |
171,000 |
18,810 |
0 |
18,810 |
104.15 |
$1,959 |
$0 |
|||||
| Property Account Status/Adjustments/Exemptions | ||
|---|---|---|
| Account # | Exemption Description | Amount |
|
R124951140 |
5% Capped Account |
0 |
| Property Deed Transaction History (Recorded in the County Clerk's Office) | ||||||||||
|---|---|---|---|---|---|---|---|---|---|---|
| Date | Type | Book | Page | Price | Grantor | Grantee | ||||
|
3/25/2009 |
|
Deeds |
$135,000 |
WATSON JAMES & STEPHANIE |
TULLIS PATRICIA |
|||||
|
2/28/2003 |
|
Deeds |
$115,000 |
WAGONER THOMAS G & CAROL D |
WATSON JAMES & STEPHANIE |
|||||
|
11/5/1997 |
|
Historical |
$90,000 |
CURTIS TERI DAWN |
WAGONER THOMAS G & CAROL D |
|||||
|
7/8/1992 |
|
Historical |
$81,000 |
HARLAN JAY A & JANET G |
CURTIS TERI DAWN |
|||||
|
5/11/1989 |
|
Historical |
$74,500 |
BLACKSTONE JOSEPH S & TERESA B |
HARLAN JAY A & JANET G |
|||||
| Last Mailed Notice of Value (N.O.V.) Information/History | ||||||||
|---|---|---|---|---|---|---|---|---|
| Year | Date | Market Value | Taxable Market Value | Gross Assessed | Exemption | Net Assessed | ||
|
2026 |
02/06/2026 |
236,000 |
218,242 |
24,006 |
0 |
24,006 |
||
|
2025 |
01/31/2025 |
238,500 |
207,850 |
22,862 |
0 |
22,862 |
||
|
2024 |
01/22/2024 |
233,500 |
197,953 |
21,773 |
0 |
21,773 |
||
|
2023 |
01/23/2023 |
226,000 |
188,527 |
20,737 |
0 |
20,737 |
||
|
2022 |
02/22/2022 |
195,500 |
179,550 |
19,750 |
0 |
19,750 |
||
| Property Building Permit History | |||||||||||
|---|---|---|---|---|---|---|---|---|---|---|---|
| Issued | Permit # | Provided by | Bldg # | Description | Est Construction Cost | Status | |||||
| No Building Permit records returned. | |||||||||||
| Click button on building number to access detailed information: | ||||||
|---|---|---|---|---|---|---|
| Bldg # | Vacant/Improved Land | Bldg Description | Year Built | SqFt | # Stories | |
|
1 |
Improved |
Ranch 1 Story |
1986 |
1,576 |
1 Stories |
|