|
|
|
| Larry Stein Oklahoma County Assessor (405) 713-1200 - Public Access System |
|
|
|
|
|
|
| Real Property Display - Screen Produced 3/23/2026 10:35:34 AM | ||||
|---|---|---|---|---|
| Account: R124951270 | Type: Residential | Location: |
2408 SANTA FE TER |
|
| Building Name/Occupant: |
|
EDMOND |
||
| Owner Name 1: | HANNAH MARK W & LYNN |
Parcel PIN#: |
4709-12-495-1270 |
|
| Owner Name 2: | 1/4 section #: |
4709 |
||
| Owner Name 3: | Parent Acct: |
|
||
| Billing Address: | 2408 SANTA FE TER | Tax District: |
|
|
| City, State, Zip | EDMOND, OK 73012-4457 | School System: |
Edmond #12 |
|
|
Country: (If noted) |
Land Size: |
0.2198 Acres |
||
|
Land Value: 32,956 |
|
|||
|
Sect 28-T14N-R3W Qtr NE |
SANTA FE TRAILS TO EDMOND
Block
001
Lot
028
|
|||
| Full Legal Description: SANTA FE TRAILS TO EDMOND 001 028 |
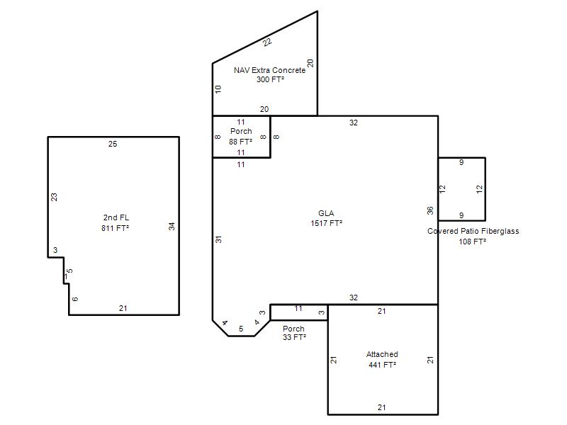
| Photo & Sketch (if available) | Comp Sales (ordered by relevancy) |
|
||||||||||||||||||
|
||||||||||||||||||||
| Value History (*The County Treasurer 405-713-1300 posts & collects actual tax amounts. Contact information HERE) | |||||||||||||
|---|---|---|---|---|---|---|---|---|---|---|---|---|---|
| Year | Market Value | Taxable Mkt Value | Gross Assessed | Exemption | Net Assessed | Millage | Est. Tax | Tax Savings | |||||
|
2025 |
311,000 |
260,528 |
28,657 |
1,000 |
27,657 |
105.16 |
$2,909 |
$689 |
|||||
|
2024 |
300,500 |
252,940 |
27,822 |
0 |
27,822 |
105.03 |
$2,922 |
$549 |
|||||
|
2023 |
289,000 |
240,896 |
26,497 |
0 |
26,497 |
104.24 |
$2,762 |
$552 |
|||||
|
2022 |
249,500 |
229,425 |
25,236 |
0 |
25,236 |
104.64 |
$2,641 |
$231 |
|||||
|
2021 |
218,500 |
218,500 |
24,035 |
0 |
24,035 |
104.15 |
$2,503 |
$0 |
|||||
| Property Account Status/Adjustments/Exemptions | ||
|---|---|---|
| Account # | Exemption Description | Amount |
|
R124951270 |
Homestead |
1,000 |
|
R124951270 |
3% Cap Homestead |
0 |
| Property Deed Transaction History (Recorded in the County Clerk's Office) | |||||||
|---|---|---|---|---|---|---|---|
| Date | Type | Book | Page | Price | Grantor | Grantee | |
|
5/23/2001 |
|
Deeds |
$120,500 |
GALLAMORE JAY S & EILEEN M |
HANNAH MARK W & LYNN |
||
|
8/22/1994 |
|
Historical |
$119,000 |
SCHAFER HARRY J III & PATRICIA |
GALLAMORE JAY S & EILEEN M |
||
|
7/30/1987 |
|
Historical |
$98,500 |
EARL AUSTON CONSTRUCITON CO |
SCHAFER HARRY J III & PATRICIA |
||
|
4/30/1987 |
|
Historical |
$0 |
AUSTIN B EARL & PATRICIA C |
EARL AUSTON CONSTRUCITON CO |
||
|
11/11/1911 |
|
Historical |
$0 |
|
AUSTIN B EARL & PATRICIA C |
||
| Last Mailed Notice of Value (N.O.V.) Information/History | ||||||||
|---|---|---|---|---|---|---|---|---|
| Year | Date | Market Value | Taxable Market Value | Gross Assessed | Exemption | Net Assessed | ||
|
2026 |
02/06/2026 |
308,500 |
268,343 |
29,517 |
1,000 |
28,517 |
||
|
2025 |
01/31/2025 |
311,000 |
260,528 |
28,657 |
1,000 |
27,657 |
||
|
2024 |
01/22/2024 |
300,500 |
252,940 |
27,822 |
0 |
27,822 |
||
|
2023 |
01/23/2023 |
289,000 |
240,896 |
26,497 |
0 |
26,497 |
||
|
2022 |
02/22/2022 |
249,500 |
229,425 |
25,236 |
0 |
25,236 |
||
| Property Building Permit History | |||||||||||
|---|---|---|---|---|---|---|---|---|---|---|---|
| Issued | Permit # | Provided by | Bldg # | Description | Est Construction Cost | Status | |||||
| No Building Permit records returned. | |||||||||||
| Click button on building number to access detailed information: | ||||||
|---|---|---|---|---|---|---|
| Bldg # | Vacant/Improved Land | Bldg Description | Year Built | SqFt | # Stories | |
|
1 |
Improved |
1½ Story Fin |
1987 |
2,328 |
1.5 Stories |
|