|
|
|
| Larry Stein Oklahoma County Assessor (405) 713-1200 - Public Access System |
|
|
|
|
|
|
| Real Property Display - Screen Produced 3/23/2026 8:50:05 AM | ||||
|---|---|---|---|---|
| Account: R125731530 | Type: Residential | Location: |
905 MILLIES TRL |
|
| Building Name/Occupant: |
|
EDMOND |
||
| Owner Name 1: | RESICAP OKLAHOMA OWNER II LLC |
Parcel PIN#: |
4709-12-573-1530 |
|
| Owner Name 2: | 1/4 section #: |
4709 |
||
| Owner Name 3: | Parent Acct: |
|
||
| Billing Address: | 3630 PEACH TREE RD NE, Unit 1500 | Tax District: |
|
|
| City, State, Zip | ATLANTA, GA 30326 | School System: |
Edmond #12 |
|
|
Country: (If noted) |
Land Size: |
0.2066 Acres |
||
|
Land Value: 40,050 |
|
|||
|
Sect 28-T14N-R3W Qtr NE |
THE TRAILS 9TH TO EDMOND
Block
007
Lot
002
|
|||
| Full Legal Description: THE TRAILS 9TH TO EDMOND 007 002 |
| Photo & Sketch (if available) | Comp Sales (ordered by relevancy) |
|
||||||||||||||||||
|
||||||||||||||||||||
| Value History (*The County Treasurer 405-713-1300 posts & collects actual tax amounts. Contact information HERE) | |||||||||||||
|---|---|---|---|---|---|---|---|---|---|---|---|---|---|
| Year | Market Value | Taxable Mkt Value | Gross Assessed | Exemption | Net Assessed | Millage | Est. Tax | Tax Savings | |||||
|
2025 |
341,000 |
341,000 |
37,510 |
0 |
37,510 |
105.16 |
$3,945 |
$0 |
|||||
|
2024 |
335,000 |
335,000 |
36,850 |
0 |
36,850 |
105.03 |
$3,870 |
$0 |
|||||
|
2023 |
319,500 |
319,500 |
35,145 |
0 |
35,145 |
104.24 |
$3,664 |
$0 |
|||||
|
2022 |
276,000 |
247,501 |
27,224 |
1,000 |
26,224 |
104.64 |
$2,744 |
$433 |
|||||
|
2021 |
243,000 |
240,293 |
26,431 |
1,000 |
25,431 |
104.15 |
$2,649 |
$135 |
|||||
| Property Account Status/Adjustments/Exemptions | ||
|---|---|---|
| Account # | Exemption Description | Amount |
|
R125731530 |
5% Capped Account |
0 |
| Property Deed Transaction History (Recorded in the County Clerk's Office) | ||||||||||
|---|---|---|---|---|---|---|---|---|---|---|
| Date | Type | Book | Page | Price | Grantor | Grantee | ||||
|
3/23/2022 |
|
Deeds |
$307,500 |
STEPHENSON AMIEE D |
RESICAP OKLAHOMA OWNER II LLC |
|||||
|
1/5/2018 |
|
Deeds |
$226,000 |
STEWART CHARLES L & MARY E CO TRS |
STEPHENSON AMIEE D |
|||||
|
4/20/2015 |
|
Deeds |
$0 |
STEWART CHARLES L & MARY E |
STEWART CHARLES L & MARY E CO TRS |
|||||
|
5/28/1997 |
|
Historical |
$137,000 |
NAUMAN KATHLEEN DIANE |
STEWART CHARLES L & MARY E |
|||||
|
11/2/1993 |
|
Historical |
$0 |
COLEMAN HOMES INC |
NAUMAN KATHLEEN DIANE |
|||||
| Last Mailed Notice of Value (N.O.V.) Information/History | ||||||||
|---|---|---|---|---|---|---|---|---|
| Year | Date | Market Value | Taxable Market Value | Gross Assessed | Exemption | Net Assessed | ||
|
2025 |
01/31/2025 |
341,000 |
341,000 |
37,510 |
0 |
37,510 |
||
|
2024 |
01/22/2024 |
335,000 |
335,000 |
36,850 |
0 |
36,850 |
||
|
2023 |
01/23/2023 |
319,500 |
319,500 |
35,145 |
0 |
35,145 |
||
|
2022 |
02/22/2022 |
276,000 |
247,501 |
27,223 |
1,000 |
26,223 |
||
|
2021 |
02/24/2021 |
243,000 |
240,293 |
26,432 |
1,000 |
25,432 |
||
| Property Building Permit History | ||||||
|---|---|---|---|---|---|---|
| Issued | Permit # | Provided by | Bldg # | Description | Est Construction Cost | Status |
|
2/16/1993 |
10213929 |
EDMOND |
1 |
Main Dwellin |
115,000 |
Inactive |
| Click button on building number to access detailed information: | ||||||
|---|---|---|---|---|---|---|
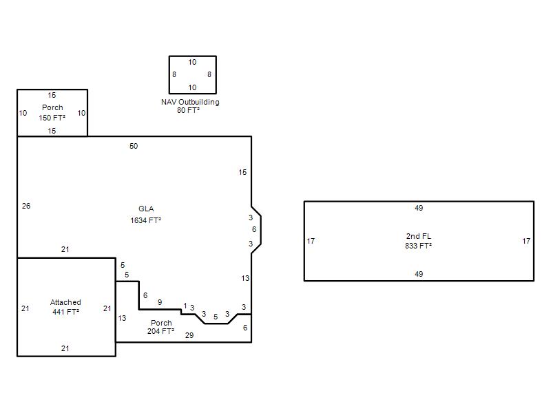
| Bldg # | Vacant/Improved Land | Bldg Description | Year Built | SqFt | # Stories | |
|
1 |
Improved |
1½ Story Fin |
1993 |
2,467 |
1.5 Stories |
|