|
|
|
| Larry Stein Oklahoma County Assessor (405) 713-1200 - Public Access System |
|
|
|
|
|
|
| Real Property Display - Screen Produced 3/23/2026 9:00:56 AM | ||||
|---|---|---|---|---|
| Account: R126901240 | Type: Residential | Location: |
2604 JILLS TRL |
|
| Building Name/Occupant: |
|
EDMOND |
||
| Owner Name 1: | U R HOME LLC SERIES L |
Parcel PIN#: |
4709-12-690-1240 |
|
| Owner Name 2: | 1/4 section #: |
4709 |
||
| Owner Name 3: | Parent Acct: |
|
||
| Billing Address: | 3341 NW 170TH CT | Tax District: |
|
|
| City, State, Zip | EDMOND, OK 73012 | School System: |
Edmond #12 |
|
|
Country: (If noted) |
Land Size: |
0.2066 Acres |
||
|
Land Value: 41,220 |
|
|||
|
Sect 28-T14N-R3W Qtr NE |
THE TRAILS 10TH
Block
002
Lot
027
|
|||
| Full Legal Description: THE TRAILS 10TH 002 027 |
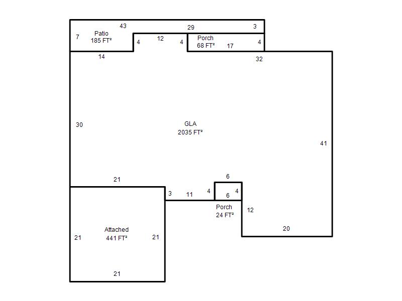
| Photo & Sketch (if available) | Comp Sales (ordered by relevancy) |
|
||||||||||||||||||
|
||||||||||||||||||||
| Value History (*The County Treasurer 405-713-1300 posts & collects actual tax amounts. Contact information HERE) | |||||||||||||
|---|---|---|---|---|---|---|---|---|---|---|---|---|---|
| Year | Market Value | Taxable Mkt Value | Gross Assessed | Exemption | Net Assessed | Millage | Est. Tax | Tax Savings | |||||
|
2025 |
285,000 |
285,000 |
31,350 |
0 |
31,350 |
105.16 |
$3,297 |
$0 |
|||||
|
2024 |
280,500 |
280,500 |
30,855 |
0 |
30,855 |
105.03 |
$3,241 |
$0 |
|||||
|
2023 |
270,000 |
174,903 |
19,239 |
0 |
19,239 |
104.24 |
$2,006 |
$1,090 |
|||||
|
2022 |
234,500 |
166,575 |
18,323 |
1,000 |
17,323 |
104.64 |
$1,813 |
$886 |
|||||
|
2021 |
206,000 |
166,575 |
18,323 |
1,000 |
17,323 |
104.15 |
$1,804 |
$556 |
|||||
| Property Account Status/Adjustments/Exemptions | ||
|---|---|---|
| Account # | Exemption Description | Amount |
|
R126901240 |
5% Capped Account |
0 |
| Property Deed Transaction History (Recorded in the County Clerk's Office) | ||||||||||
|---|---|---|---|---|---|---|---|---|---|---|
| Date | Type | Book | Page | Price | Grantor | Grantee | ||||
|
5/19/2023 |
|
Deeds |
$150,000 |
WILSON RICHARD D REV TRUST |
U R HOME LLC SERIES L |
|||||
|
3/11/1997 |
|
Historical |
$121,000 |
WESCOTT RICK R & SUSAN R |
WILSON RICHARD D REV TRUST |
|||||
|
9/19/1995 |
|
Historical |
$121,000 |
JANOSIK LUISA M |
WESCOTT RICK R & SUSAN R |
|||||
|
9/15/1993 |
|
Historical |
$0 |
TOM DANILUK INC |
JANOSIK LUISA M |
|||||
|
12/9/1992 |
|
Historical |
$0 |
TRAILS DEVELOPMENT INC |
TOM DANILUK INC |
|||||
| Last Mailed Notice of Value (N.O.V.) Information/History | ||||||||
|---|---|---|---|---|---|---|---|---|
| Year | Date | Market Value | Taxable Market Value | Gross Assessed | Exemption | Net Assessed | ||
|
2025 |
01/31/2025 |
285,000 |
285,000 |
31,350 |
0 |
31,350 |
||
|
2024 |
01/22/2024 |
280,500 |
280,500 |
30,855 |
0 |
30,855 |
||
|
2023 |
01/23/2023 |
270,000 |
166,575 |
18,323 |
1,000 |
17,323 |
||
|
2022 |
02/22/2022 |
234,500 |
166,575 |
18,323 |
1,000 |
17,323 |
||
|
2021 |
02/24/2021 |
206,000 |
166,575 |
18,323 |
1,000 |
17,323 |
||
| Property Building Permit History | ||||||
|---|---|---|---|---|---|---|
| Issued | Permit # | Provided by | Bldg # | Description | Est Construction Cost | Status |
|
12/19/1992 |
10216445 |
EDMOND |
1 |
Main Dwellin |
90,000 |
Inactive |
| Click button on building number to access detailed information: | ||||||
|---|---|---|---|---|---|---|
| Bldg # | Vacant/Improved Land | Bldg Description | Year Built | SqFt | # Stories | |
|
1 |
Improved |
Ranch 1 Story |
1993 |
2,035 |
1 Stories |
|