|
|
|
| Larry Stein Oklahoma County Assessor (405) 713-1200 - Public Access System |
|
|
|
|
|
|
| Real Property Display - Screen Produced 3/23/2026 10:15:10 AM | ||||
|---|---|---|---|---|
| Account: R121741180 | Type: Residential | Location: |
2521 ANTELOPE CIR |
|
| Building Name/Occupant: |
|
EDMOND |
||
| Owner Name 1: | CURTIS DEREK & NATALIE |
Parcel PIN#: |
4710-12-174-1180 |
|
| Owner Name 2: | 1/4 section #: |
4710 |
||
| Owner Name 3: | Parent Acct: |
|
||
| Billing Address: | 2521 ANTELOPE CIR | Tax District: |
|
|
| City, State, Zip | EDMOND, OK 73012-4418 | School System: |
Edmond #12 |
|
|
Country: (If noted) |
Land Size: |
0.2083 Acres |
||
|
Land Value: 40,384 |
|
|||
|
Sect 28-T14N-R3W Qtr SE |
THE TRAILS 7TH
Block
002
Lot
013
|
|||
| Full Legal Description: THE TRAILS 7TH 002 013 |
| Photo & Sketch (if available) | Comp Sales (ordered by relevancy) |
|
||||||||||||||||||
|
||||||||||||||||||||
| Value History (*The County Treasurer 405-713-1300 posts & collects actual tax amounts. Contact information HERE) | |||||||||||||
|---|---|---|---|---|---|---|---|---|---|---|---|---|---|
| Year | Market Value | Taxable Mkt Value | Gross Assessed | Exemption | Net Assessed | Millage | Est. Tax | Tax Savings | |||||
|
2025 |
300,000 |
232,444 |
25,568 |
1,000 |
24,568 |
105.16 |
$2,584 |
$887 |
|||||
|
2024 |
292,500 |
225,674 |
24,824 |
1,000 |
23,824 |
105.03 |
$2,502 |
$877 |
|||||
|
2023 |
282,000 |
219,101 |
24,100 |
1,000 |
23,100 |
104.24 |
$2,408 |
$825 |
|||||
|
2022 |
244,000 |
212,720 |
23,398 |
1,000 |
22,398 |
104.64 |
$2,344 |
$465 |
|||||
|
2021 |
214,000 |
206,525 |
22,717 |
1,000 |
21,717 |
104.15 |
$2,262 |
$190 |
|||||
| Property Account Status/Adjustments/Exemptions | ||
|---|---|---|
| Account # | Exemption Description | Amount |
|
R121741180 |
3% Cap Homestead |
0 |
|
R121741180 |
Homestead |
1,000 |
| Property Deed Transaction History (Recorded in the County Clerk's Office) | ||||||||||
|---|---|---|---|---|---|---|---|---|---|---|
| Date | Type | Book | Page | Price | Grantor | Grantee | ||||
|
8/1/2016 |
|
Deeds |
$203,000 |
WALKER JEFFREY D & BOBBIE J |
CURTIS DEREK & NATALIE |
|||||
|
11/29/1995 |
|
Historical |
$130,000 |
JACOBS RANDALL L & ROMONA D |
WALKER JEFFREY D & BOBBIE J |
|||||
|
4/28/1994 |
|
Historical |
$114,000 |
ARCADIA PROPERTIES |
JACOBS RANDALL L & ROMONA D |
|||||
|
10/25/1993 |
|
Historical |
$0 |
TRAILS DEVELOPMENT INC |
ARCADIA PROPERTIES |
|||||
|
11/13/1991 |
|
Historical |
$0 |
FIRST SERVICE DEVEL LTD |
TRAILS DEVELOPMENT INC |
|||||
| Last Mailed Notice of Value (N.O.V.) Information/History | ||||||||
|---|---|---|---|---|---|---|---|---|
| Year | Date | Market Value | Taxable Market Value | Gross Assessed | Exemption | Net Assessed | ||
|
2026 |
02/06/2026 |
296,500 |
239,417 |
26,335 |
1,000 |
25,335 |
||
|
2025 |
01/31/2025 |
300,000 |
232,444 |
25,568 |
1,000 |
24,568 |
||
|
2024 |
01/22/2024 |
292,500 |
225,674 |
24,824 |
1,000 |
23,824 |
||
|
2023 |
01/23/2023 |
282,000 |
219,101 |
24,100 |
1,000 |
23,100 |
||
|
2022 |
02/22/2022 |
244,000 |
212,720 |
23,398 |
1,000 |
22,398 |
||
| Property Building Permit History | ||||||
|---|---|---|---|---|---|---|
| Issued | Permit # | Provided by | Bldg # | Description | Est Construction Cost | Status |
|
11/27/1993 |
10207653 |
EDMOND |
1 |
Main Dwellin |
85,000 |
Inactive |
| Click button on building number to access detailed information: | ||||||
|---|---|---|---|---|---|---|
| Bldg # | Vacant/Improved Land | Bldg Description | Year Built | SqFt | # Stories | |
|
1 |
Improved |
Ranch 1 Story |
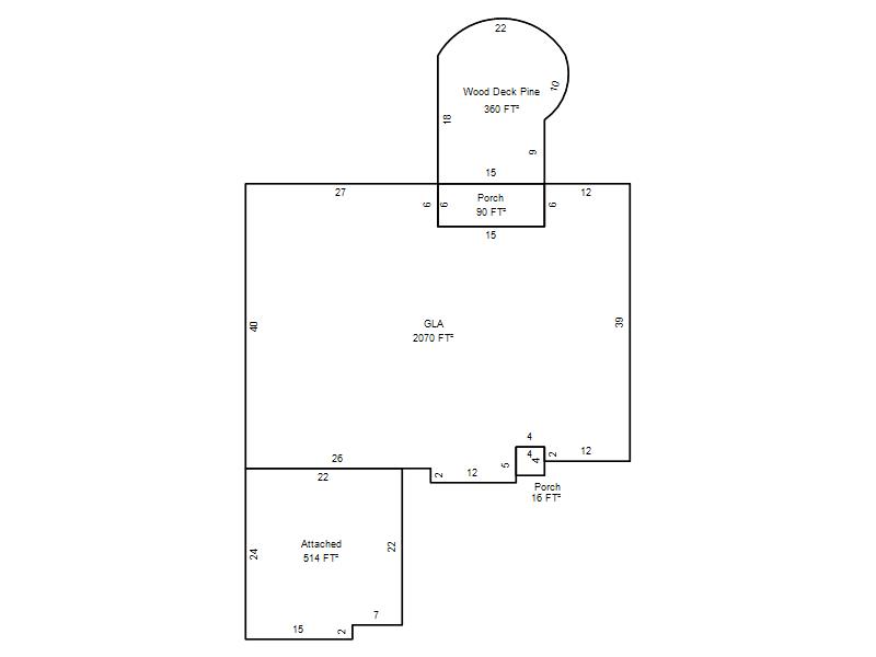
1994 |
2,070 |
1 Stories |
|