|
|
|
| Larry Stein Oklahoma County Assessor (405) 713-1200 - Public Access System |
|
|
|
|
|
|
| Real Property Display - Screen Produced 4/2/2026 3:18:49 AM | ||||
|---|---|---|---|---|
| Account: R141621360 | Type: Residential | Location: |
100 S TRAIL RIDGE RD |
|
| Building Name/Occupant: |
|
EDMOND |
||
| Owner Name 1: | ARMSTRONG ROBERT W |
Parcel PIN#: |
4710-14-162-1360 |
|
| Owner Name 2: | ARMSTRONG PATRICIA ANNE | 1/4 section #: |
4710 |
|
| Owner Name 3: | Parent Acct: |
|
||
| Billing Address: | 100 S TRAIL RIDGE RD | Tax District: |
|
|
| City, State, Zip | EDMOND, OK 73012-4540 | School System: |
Edmond #12 |
|
|
Country: (If noted) |
Land Size: |
0.2907 Acres |
||
|
Land Value: 44,328 |
|
|||
|
Sect 28-T14N-R3W Qtr SE |
THE TRAILS
Block
005
Lot
009
|
|||
| Full Legal Description: THE TRAILS 005 009 |
| Photo & Sketch (if available) | Comp Sales (ordered by relevancy) |
|
||||||||||||||||||
|
||||||||||||||||||||
| Value History (*The County Treasurer 405-713-1300 posts & collects actual tax amounts. Contact information HERE) | |||||||||||||
|---|---|---|---|---|---|---|---|---|---|---|---|---|---|
| Year | Market Value | Taxable Mkt Value | Gross Assessed | Exemption | Net Assessed | Millage | Est. Tax | Tax Savings | |||||
|
2026 |
290,000 |
266,103 |
29,270 |
0 |
29,270 |
105.16 |
$3,078 |
$276 |
|||||
|
2025 |
292,000 |
253,432 |
27,877 |
0 |
27,877 |
105.16 |
$2,932 |
$446 |
|||||
|
2024 |
285,000 |
241,364 |
26,549 |
0 |
26,549 |
105.03 |
$2,789 |
$504 |
|||||
|
2023 |
276,500 |
229,871 |
25,285 |
0 |
25,285 |
104.24 |
$2,636 |
$535 |
|||||
|
2022 |
239,000 |
218,925 |
24,081 |
0 |
24,081 |
104.64 |
$2,520 |
$231 |
|||||
| Property Account Status/Adjustments/Exemptions | ||
|---|---|---|
| Account # | Exemption Description | Amount |
|
R141621360 |
5% Capped Account |
0 |
| Property Deed Transaction History (Recorded in the County Clerk's Office) | |||||||
|---|---|---|---|---|---|---|---|
| Date | Type | Book | Page | Price | Grantor | Grantee | |
|
7/26/2004 |
|
Deeds |
$170,000 |
BAKER R L & CAROL L TRS BAKER ROBERT & CAROL BAKER R L & CAR |
ARMSTRONG ROBERT W |
||
|
6/5/1997 |
|
Historical |
$0 |
BAKER ROBERT L & CAROL L |
BAKER R L & CAROL L TRS |
||
|
12/1/1988 |
|
Historical |
$87,000 |
LOCAL FEDERAL SAVINGS |
BAKER ROBERT L & CAROL L |
||
|
7/20/1988 |
|
Historical |
$0 |
GOSS ROBERT C & BETTY J |
LOCAL FEDERAL SAVINGS |
||
|
12/1/1976 |
|
Historical |
$0 |
|
GOSS ROBERT C & BETTY J |
||
| Last Mailed Notice of Value (N.O.V.) Information/History | ||||||||
|---|---|---|---|---|---|---|---|---|
| Year | Date | Market Value | Taxable Market Value | Gross Assessed | Exemption | Net Assessed | ||
|
2026 |
02/06/2026 |
290,000 |
266,103 |
29,270 |
0 |
29,270 |
||
|
2025 |
01/31/2025 |
292,000 |
253,432 |
27,877 |
0 |
27,877 |
||
|
2024 |
01/22/2024 |
285,000 |
241,364 |
26,549 |
0 |
26,549 |
||
|
2023 |
01/23/2023 |
276,500 |
229,871 |
25,285 |
0 |
25,285 |
||
|
2022 |
02/22/2022 |
239,000 |
218,925 |
24,081 |
0 |
24,081 |
||
| Property Building Permit History | |||||||||||
|---|---|---|---|---|---|---|---|---|---|---|---|
| Issued | Permit # | Provided by | Bldg # | Description | Est Construction Cost | Status | |||||
| No Building Permit records returned. | |||||||||||
| Click button on building number to access detailed information: | ||||||
|---|---|---|---|---|---|---|
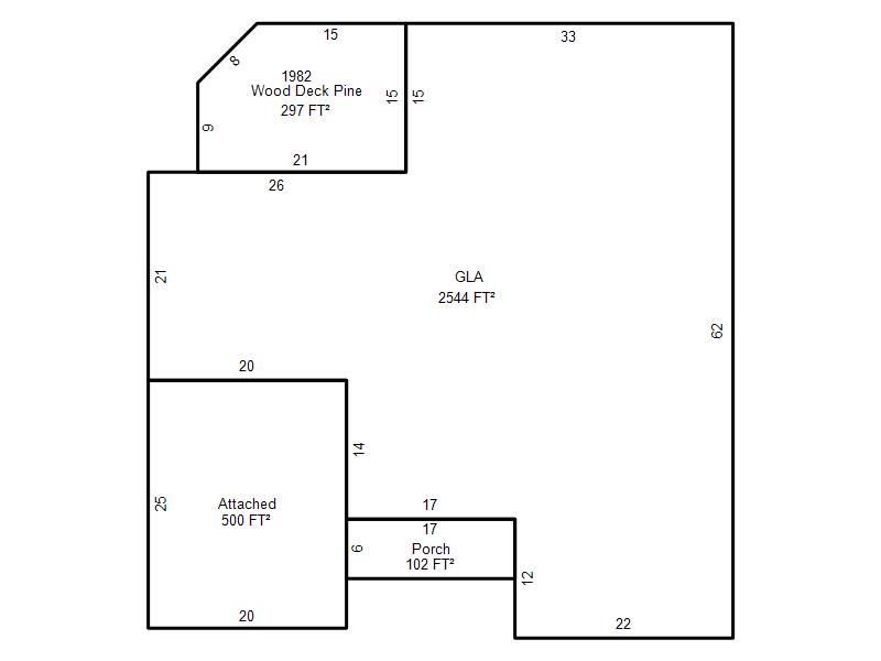
| Bldg # | Vacant/Improved Land | Bldg Description | Year Built | SqFt | # Stories | |
|
1 |
Improved |
Ranch 1 Story |
1974 |
2,544 |
1 Stories |
|