|
|
|
| Larry Stein Oklahoma County Assessor (405) 713-1200 - Public Access System |
|
|
|
|
|
|
| Real Property Display - Screen Produced 4/2/2026 6:34:13 AM | ||||
|---|---|---|---|---|
| Account: R141621720 | Type: Residential | Location: |
15 N TRAIL RIDGE RD |
|
| Building Name/Occupant: |
|
EDMOND |
||
| Owner Name 1: | WEIR DANIEL & KATHRYN |
Parcel PIN#: |
4710-14-162-1720 |
|
| Owner Name 2: | 1/4 section #: |
4710 |
||
| Owner Name 3: | Parent Acct: |
|
||
| Billing Address: | 15 N TRAIL RIDGE RD | Tax District: |
|
|
| City, State, Zip | EDMOND, OK 73012-4546 | School System: |
Edmond #12 |
|
|
Country: (If noted) |
Land Size: |
0.4115 Acres |
||
|
Land Value: 57,600 |
|
|||
|
Sect 28-T14N-R3W Qtr SE |
THE TRAILS
Block
006
Lot
025
|
|||
| Full Legal Description: THE TRAILS 006 025 |
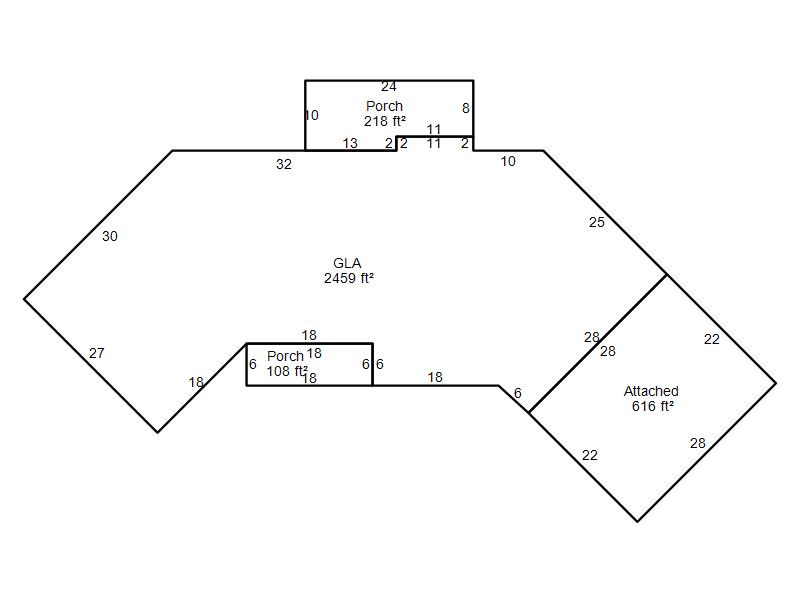
| Photo & Sketch (if available) | Comp Sales (ordered by relevancy) |
|
||||||||||||||||||
|
||||||||||||||||||||
| Value History (*The County Treasurer 405-713-1300 posts & collects actual tax amounts. Contact information HERE) | |||||||||||||
|---|---|---|---|---|---|---|---|---|---|---|---|---|---|
| Year | Market Value | Taxable Mkt Value | Gross Assessed | Exemption | Net Assessed | Millage | Est. Tax | Tax Savings | |||||
|
2026 |
360,500 |
328,003 |
36,080 |
0 |
36,080 |
105.16 |
$3,794 |
$376 |
|||||
|
2025 |
360,500 |
312,384 |
34,361 |
0 |
34,361 |
105.16 |
$3,614 |
$557 |
|||||
|
2024 |
351,500 |
297,509 |
32,725 |
0 |
32,725 |
105.03 |
$3,437 |
$624 |
|||||
|
2023 |
337,500 |
283,342 |
31,167 |
0 |
31,167 |
104.24 |
$3,249 |
$621 |
|||||
|
2022 |
294,000 |
269,850 |
29,683 |
0 |
29,683 |
104.64 |
$3,106 |
$278 |
|||||
| Property Account Status/Adjustments/Exemptions | ||
|---|---|---|
| Account # | Exemption Description | Amount |
|
R141621720 |
5% Capped Account |
0 |
| Property Deed Transaction History (Recorded in the County Clerk's Office) | ||||||||||
|---|---|---|---|---|---|---|---|---|---|---|
| Date | Type | Book | Page | Price | Grantor | Grantee | ||||
|
4/20/2016 |
|
Deeds |
$155,000 |
LITTLE TINY LLC |
WEIR DANIEL & KATHRYN |
|||||
|
1/25/2016 |
|
Deeds |
$150,500 |
HOLLAND TRACY A & JILL G |
LITTLE TINY LLC |
|||||
|
4/28/1998 |
|
Historical |
$123,500 |
MORSE DEBORAH JEAN |
HOLLAND TRACY A & JILL G |
|||||
|
4/12/1996 |
|
Historical |
$0 |
MORSE KEITH L & DEBBIE J |
MORSE DEBORAH JEAN |
|||||
|
12/29/1993 |
|
Historical |
$0 |
MORSE KEITH L & DEBBIE J |
MORSE KEITH L & DEBBIE J |
|||||
| Last Mailed Notice of Value (N.O.V.) Information/History | ||||||||
|---|---|---|---|---|---|---|---|---|
| Year | Date | Market Value | Taxable Market Value | Gross Assessed | Exemption | Net Assessed | ||
|
2026 |
02/06/2026 |
360,500 |
328,003 |
36,080 |
0 |
36,080 |
||
|
2025 |
01/31/2025 |
360,500 |
312,384 |
34,361 |
0 |
34,361 |
||
|
2024 |
01/22/2024 |
351,500 |
297,509 |
32,725 |
0 |
32,725 |
||
|
2023 |
01/23/2023 |
337,500 |
283,342 |
31,167 |
0 |
31,167 |
||
|
2022 |
02/22/2022 |
294,000 |
269,850 |
29,683 |
0 |
29,683 |
||
| Property Building Permit History | ||||||
|---|---|---|---|---|---|---|
| Issued | Permit # | Provided by | Bldg # | Description | Est Construction Cost | Status |
|
5/9/2016 |
10484730 |
EDMOND |
1 |
Remodeled |
1,500 |
Inactive |
|
4/1/2010 |
10401717 |
EDMOND |
1 |
Swimming Pool |
35,000 |
Inactive |
| Click button on building number to access detailed information: | ||||||
|---|---|---|---|---|---|---|
| Bldg # | Vacant/Improved Land | Bldg Description | Year Built | SqFt | # Stories | |
|
1 |
Improved |
Ranch 1 Story |
1977 |
2,459 |
1 Stories |
|