|
|
|
| Larry Stein Oklahoma County Assessor (405) 713-1200 - Public Access System |
|
|
|
|
|
|
| Real Property Display - Screen Produced 4/2/2026 12:25:28 AM | ||||
|---|---|---|---|---|
| Account: R141621850 | Type: Residential | Location: |
2608 BENT TRAIL RD |
|
| Building Name/Occupant: |
|
EDMOND |
||
| Owner Name 1: | BOWDOIN DARYL SCOTT |
Parcel PIN#: |
4710-14-162-1850 |
|
| Owner Name 2: | 1/4 section #: |
4710 |
||
| Owner Name 3: | Parent Acct: |
|
||
| Billing Address: | 2608 BENT TRAIL RD | Tax District: |
|
|
| City, State, Zip | EDMOND , OK 73012 | School System: |
Edmond #12 |
|
|
Country: (If noted) |
Land Size: |
0.3471 Acres |
||
|
Land Value: 52,920 |
|
|||
|
Sect 28-T14N-R3W Qtr SE |
THE TRAILS
Block
006
Lot
038
|
|||
| Full Legal Description: THE TRAILS 006 038 |
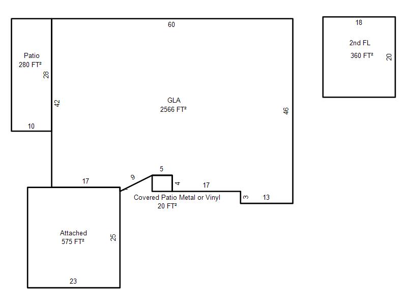
| Photo & Sketch (if available) | Comp Sales (ordered by relevancy) |
|
||||||||||||||||||
|
||||||||||||||||||||
| Value History (*The County Treasurer 405-713-1300 posts & collects actual tax amounts. Contact information HERE) | |||||||||||||
|---|---|---|---|---|---|---|---|---|---|---|---|---|---|
| Year | Market Value | Taxable Mkt Value | Gross Assessed | Exemption | Net Assessed | Millage | Est. Tax | Tax Savings | |||||
|
2026 |
335,500 |
292,134 |
32,133 |
1,000 |
31,133 |
105.16 |
$3,274 |
$607 |
|||||
|
2025 |
337,000 |
283,626 |
31,198 |
1,000 |
30,198 |
105.16 |
$3,176 |
$723 |
|||||
|
2024 |
330,500 |
275,366 |
30,290 |
1,000 |
29,290 |
105.03 |
$3,076 |
$742 |
|||||
|
2023 |
319,500 |
267,346 |
29,407 |
1,000 |
28,407 |
104.24 |
$2,961 |
$702 |
|||||
|
2022 |
277,500 |
259,560 |
28,551 |
1,000 |
27,551 |
104.64 |
$2,883 |
$311 |
|||||
| Property Account Status/Adjustments/Exemptions | ||
|---|---|---|
| Account # | Exemption Description | Amount |
|
R141621850 |
3% Cap Homestead |
0 |
|
R141621850 |
Homestead |
1,000 |
| Property Deed Transaction History (Recorded in the County Clerk's Office) | |||||||
|---|---|---|---|---|---|---|---|
| Date | Type | Book | Page | Price | Grantor | Grantee | |
|
1/19/2018 |
|
Deeds |
$268,500 |
BROWN JENNIFER D |
BOWDOIN DARYL SCOTT |
||
|
9/1/2006 |
|
Deeds |
$178,000 |
WILTFONG DENNIS |
BROWN JENNIFER D |
||
|
7/15/2003 |
|
Deeds |
$140,000 |
THIBEAULT G PETER & BEVERLY |
WILTFONG DENNIS |
||
|
3/31/1987 |
|
Historical |
$125,000 |
GLASS MICHAEL LEE & PENNY LOU |
THIBEAULT G PETER & BEVERLY |
||
|
3/1/1983 |
|
Historical |
$0 |
|
GLASS MICHAEL LEE & PENNY LOU |
||
| Last Mailed Notice of Value (N.O.V.) Information/History | ||||||||
|---|---|---|---|---|---|---|---|---|
| Year | Date | Market Value | Taxable Market Value | Gross Assessed | Exemption | Net Assessed | ||
|
2026 |
02/06/2026 |
335,500 |
292,134 |
32,133 |
1,000 |
31,133 |
||
|
2025 |
01/31/2025 |
337,000 |
283,626 |
31,198 |
1,000 |
30,198 |
||
|
2024 |
01/22/2024 |
330,500 |
275,366 |
30,290 |
1,000 |
29,290 |
||
|
2023 |
01/23/2023 |
319,500 |
267,346 |
29,407 |
1,000 |
28,407 |
||
|
2022 |
02/22/2022 |
277,500 |
259,560 |
28,551 |
1,000 |
27,551 |
||
| Property Building Permit History | |||||||||||
|---|---|---|---|---|---|---|---|---|---|---|---|
| Issued | Permit # | Provided by | Bldg # | Description | Est Construction Cost | Status | |||||
| No Building Permit records returned. | |||||||||||
| Click button on building number to access detailed information: | ||||||
|---|---|---|---|---|---|---|
| Bldg # | Vacant/Improved Land | Bldg Description | Year Built | SqFt | # Stories | |
|
1 |
Improved |
1½ Story Fin |
1979 |
2,926 |
1.5 Stories |
|