|
|
|
| Larry Stein Oklahoma County Assessor (405) 713-1200 - Public Access System |
|
|
|
|
|
|
| Real Property Display - Screen Produced 4/1/2026 3:53:57 PM | ||||
|---|---|---|---|---|
| Account: R141622010 | Type: Residential | Location: |
2516 BENT TRAIL RD |
|
| Building Name/Occupant: |
|
EDMOND |
||
| Owner Name 1: | CHAFFIN NICHOLAS DALE |
Parcel PIN#: |
4710-14-162-2010 |
|
| Owner Name 2: | TRAVIS NEAL MELISSA | 1/4 section #: |
4710 |
|
| Owner Name 3: | Parent Acct: |
|
||
| Billing Address: | 2516 BENT TRAIL RD | Tax District: |
|
|
| City, State, Zip | EDMOND, OK 73012 | School System: |
Edmond #12 |
|
|
Country: (If noted) |
Land Size: |
0.2778 Acres |
||
|
Land Value: 42,350 |
|
|||
|
Sect 28-T14N-R3W Qtr SE |
THE TRAILS
Block
008
Lot
009
|
|||
| Full Legal Description: THE TRAILS 008 009 |
| Photo & Sketch (if available) | Comp Sales (ordered by relevancy) |
|
||||||||||||||||||
|
||||||||||||||||||||
| Value History (*The County Treasurer 405-713-1300 posts & collects actual tax amounts. Contact information HERE) | |||||||||||||
|---|---|---|---|---|---|---|---|---|---|---|---|---|---|
| Year | Market Value | Taxable Mkt Value | Gross Assessed | Exemption | Net Assessed | Millage | Est. Tax | Tax Savings | |||||
|
2026 |
318,000 |
269,340 |
29,626 |
1,000 |
28,626 |
105.16 |
$3,010 |
$668 |
|||||
|
2025 |
318,000 |
261,496 |
28,763 |
1,000 |
27,763 |
105.16 |
$2,920 |
$759 |
|||||
|
2024 |
315,000 |
253,880 |
27,926 |
1,000 |
26,926 |
105.03 |
$2,828 |
$811 |
|||||
|
2023 |
302,500 |
246,486 |
27,112 |
1,000 |
26,112 |
104.24 |
$2,722 |
$747 |
|||||
|
2022 |
264,500 |
239,307 |
26,323 |
1,000 |
25,323 |
104.64 |
$2,650 |
$395 |
|||||
| Property Account Status/Adjustments/Exemptions | ||
|---|---|---|
| Account # | Exemption Description | Amount |
|
R141622010 |
3% Cap Homestead |
0 |
|
R141622010 |
Homestead |
1,000 |
| Property Deed Transaction History (Recorded in the County Clerk's Office) | |||||||
|---|---|---|---|---|---|---|---|
| Date | Type | Book | Page | Price | Grantor | Grantee | |
|
11/14/2017 |
|
Deeds |
$233,000 |
G & L HORTON LP |
CHAFFIN NICHOLAS DALE |
||
|
4/21/2017 |
|
Deeds |
$143,500 |
WALLENMEYER RONALD |
G & L HORTON LP |
||
|
8/25/2011 |
|
Deeds |
$0 |
WALLENMEYER RONALD J & LABETTA |
WALLENMEYER RONALD |
||
|
7/1/1985 |
|
Historical |
$110,000 |
|
WALLENMEYER RONALD J & LABETTA |
||
| Last Mailed Notice of Value (N.O.V.) Information/History | ||||||||
|---|---|---|---|---|---|---|---|---|
| Year | Date | Market Value | Taxable Market Value | Gross Assessed | Exemption | Net Assessed | ||
|
2026 |
02/06/2026 |
318,000 |
269,340 |
29,626 |
1,000 |
28,626 |
||
|
2025 |
01/31/2025 |
318,000 |
261,496 |
28,763 |
1,000 |
27,763 |
||
|
2024 |
01/22/2024 |
315,000 |
253,880 |
27,926 |
1,000 |
26,926 |
||
|
2023 |
01/23/2023 |
302,500 |
246,486 |
27,112 |
1,000 |
26,112 |
||
|
2022 |
02/22/2022 |
264,500 |
239,307 |
26,322 |
1,000 |
25,322 |
||
| Property Building Permit History | |||||||||||
|---|---|---|---|---|---|---|---|---|---|---|---|
| Issued | Permit # | Provided by | Bldg # | Description | Est Construction Cost | Status | |||||
| No Building Permit records returned. | |||||||||||
| Click button on building number to access detailed information: | ||||||
|---|---|---|---|---|---|---|
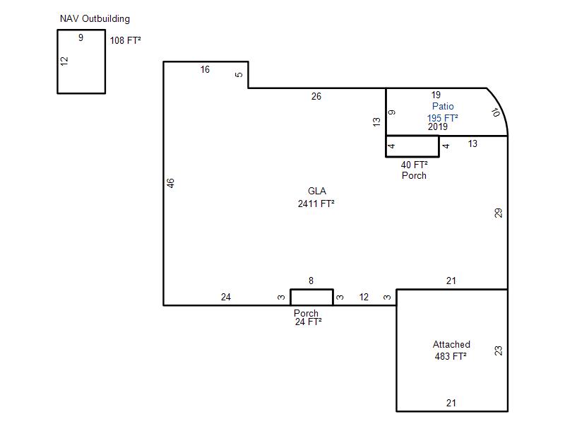
| Bldg # | Vacant/Improved Land | Bldg Description | Year Built | SqFt | # Stories | |
|
1 |
Improved |
Ranch 1 Story |
1979 |
2,411 |
1 Stories |
|