|
|
|
| Larry Stein Oklahoma County Assessor (405) 713-1200 - Public Access System |
|
|
|
|
|
|
| Real Property Display - Screen Produced 3/18/2026 8:39:59 PM | ||||
|---|---|---|---|---|
| Account: R153291270 | Type: Residential | Location: |
4108 ANGELA DR |
|
| Building Name/Occupant: |
|
DEL CITY |
||
| Owner Name 1: | FERRER RITA LOUISE |
Parcel PIN#: |
1466-15-329-1270 |
|
| Owner Name 2: | 1/4 section #: |
1466 |
||
| Owner Name 3: | Parent Acct: |
|
||
| Billing Address: | 4108 ANGELA DR | Tax District: |
|
|
| City, State, Zip | DEL CITY, OK 73115 | School System: |
Mid-Del #52 |
|
|
Country: (If noted) |
Land Size: |
0.1940 Acres |
||
|
Land Value: 30,420 |
|
|||
|
Sect 17-T11N-R2W Qtr SE |
FROLICH HEIGHTS SEC 4
Block
011
Lot
028
|
|||
| Full Legal Description: FROLICH HEIGHTS SEC 4 011 028 |
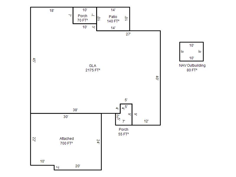
| Photo & Sketch (if available) | Comp Sales (ordered by relevancy) |
|
||||||||||||||||||
|
||||||||||||||||||||
| Value History (*The County Treasurer 405-713-1300 posts & collects actual tax amounts. Contact information HERE) | |||||||||||||
|---|---|---|---|---|---|---|---|---|---|---|---|---|---|
| Year | Market Value | Taxable Mkt Value | Gross Assessed | Exemption | Net Assessed | Millage | Est. Tax | Tax Savings | |||||
|
2025 |
289,500 |
228,476 |
25,132 |
1,000 |
24,132 |
114.72 |
$2,768 |
$885 |
|||||
|
2024 |
282,500 |
221,822 |
24,399 |
1,000 |
23,399 |
117.21 |
$2,743 |
$900 |
|||||
|
2023 |
258,500 |
215,362 |
23,688 |
1,000 |
22,688 |
112.46 |
$2,552 |
$646 |
|||||
|
2022 |
225,000 |
209,090 |
22,999 |
1,000 |
21,999 |
110.76 |
$2,437 |
$305 |
|||||
|
2021 |
203,000 |
203,000 |
22,330 |
1,000 |
21,330 |
114.70 |
$2,447 |
$115 |
|||||
| Property Account Status/Adjustments/Exemptions | ||
|---|---|---|
| Account # | Exemption Description | Amount |
|
R153291270 |
3% Cap Homestead |
0 |
|
R153291270 |
Homestead |
1,000 |
| Property Deed Transaction History (Recorded in the County Clerk's Office) | |||||||
|---|---|---|---|---|---|---|---|
| Date | Type | Book | Page | Price | Grantor | Grantee | |
|
12/12/2020 |
|
Deeds |
$61,500 |
WALTON VALERIE ANNE |
FERRER RITA LOUISE |
||
|
12/12/2020 |
|
Deeds |
$61,500 |
GRISHAM MARSIE MARIA |
WALTON VALERIE ANNE |
||
|
3/14/2020 |
|
Hmstd Off & |
$0 |
FERRER MIGUEL R |
GRISHAM MARSIE MARIA |
||
|
8/28/2019 |
|
Deeds |
$0 |
FERRER MIGUEL R & PEGGY J |
FERRER MIGUEL R |
||
|
11/11/1911 |
|
Historical |
$0 |
|
FERRER MIGUEL R & PEGGY J |
||
| Last Mailed Notice of Value (N.O.V.) Information/History | ||||||||
|---|---|---|---|---|---|---|---|---|
| Year | Date | Market Value | Taxable Market Value | Gross Assessed | Exemption | Net Assessed | ||
|
2026 |
02/06/2026 |
287,500 |
235,330 |
25,885 |
1,000 |
24,885 |
||
|
2025 |
01/31/2025 |
289,500 |
228,476 |
25,132 |
1,000 |
24,132 |
||
|
2024 |
01/22/2024 |
282,500 |
221,822 |
24,399 |
1,000 |
23,399 |
||
|
2023 |
01/23/2023 |
258,500 |
215,362 |
23,688 |
1,000 |
22,688 |
||
|
2022 |
02/22/2022 |
225,000 |
209,090 |
22,999 |
1,000 |
21,999 |
||
| Property Building Permit History | ||||||
|---|---|---|---|---|---|---|
| Issued | Permit # | Provided by | Bldg # | Description | Est Construction Cost | Status |
|
7/20/1999 |
10249625 |
DEL CITY |
1 |
Main Dwellin |
143,000 |
Inactive |
| Click button on building number to access detailed information: | ||||||
|---|---|---|---|---|---|---|
| Bldg # | Vacant/Improved Land | Bldg Description | Year Built | SqFt | # Stories | |
|
1 |
Improved |
Ranch 1 Story |
2000 |
2,175 |
1 Stories |
|