|
|
|
| Larry Stein Oklahoma County Assessor (405) 713-1200 - Public Access System |
|
|
|
|
|
|
| Real Property Display - Screen Produced 3/18/2026 8:39:59 PM | ||||
|---|---|---|---|---|
| Account: R153291490 | Type: Residential | Location: |
4825 MONTROSE DR |
|
| Building Name/Occupant: |
|
DEL CITY |
||
| Owner Name 1: | ARNOLD RALPH |
Parcel PIN#: |
1466-15-329-1490 |
|
| Owner Name 2: | ARNOLD PRISCILLA D | 1/4 section #: |
1466 |
|
| Owner Name 3: | Parent Acct: |
|
||
| Billing Address: | 4825 MONTROSE DR | Tax District: |
|
|
| City, State, Zip | DEL CITY, OK 73115-4452 | School System: |
Mid-Del #52 |
|
|
Country: (If noted) |
Land Size: |
0.3467 Acres |
||
|
Land Value: 54,374 |
|
|||
|
Sect 17-T11N-R2W Qtr SE |
FROLICH HEIGHTS SEC 4
Block
013
Lot
008
|
|||
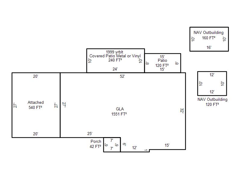
| Full Legal Description: FROLICH HEIGHTS SEC 4 013 008 LOTS 8 & 9 |
| Photo & Sketch (if available) | Comp Sales (ordered by relevancy) |
|
||||||||||||||||||
|
||||||||||||||||||||
| Value History (*The County Treasurer 405-713-1300 posts & collects actual tax amounts. Contact information HERE) | |||||||||||||
|---|---|---|---|---|---|---|---|---|---|---|---|---|---|
| Year | Market Value | Taxable Mkt Value | Gross Assessed | Exemption | Net Assessed | Millage | Est. Tax | Tax Savings | |||||
|
2025 |
253,000 |
180,265 |
19,828 |
1,000 |
18,828 |
114.72 |
$2,160 |
$1,033 |
|||||
|
2024 |
244,000 |
175,015 |
19,250 |
1,000 |
18,250 |
117.21 |
$2,139 |
$1,007 |
|||||
|
2023 |
221,000 |
169,918 |
18,690 |
1,000 |
17,690 |
112.46 |
$1,990 |
$744 |
|||||
|
2022 |
192,500 |
164,969 |
18,146 |
1,000 |
17,146 |
110.76 |
$1,899 |
$446 |
|||||
|
2021 |
172,500 |
160,165 |
17,618 |
1,000 |
16,618 |
114.70 |
$1,906 |
$270 |
|||||
| Property Account Status/Adjustments/Exemptions | ||
|---|---|---|
| Account # | Exemption Description | Amount |
|
R153291490 |
3% Cap Homestead |
0 |
|
R153291490 |
Homestead |
1,000 |
| Property Deed Transaction History (Recorded in the County Clerk's Office) | |||||||
|---|---|---|---|---|---|---|---|
| Date | Type | Book | Page | Price | Grantor | Grantee | |
|
3/30/2006 |
|
Deeds |
$138,500 |
CLYMER THOMAS L |
ARNOLD RALPH |
||
|
11/17/1997 |
|
Historical |
$0 |
CLYMER THOMAS L & MERILEE ANN |
CLYMER THOMAS L |
||
|
6/26/1990 |
|
Historical |
$50,500 |
KING LARRY W & KAREN D |
CLYMER THOMAS L & MERILEE ANN |
||
|
3/1/1985 |
|
Historical |
$55,225 |
|
KING LARRY W & KAREN D |
||
| Last Mailed Notice of Value (N.O.V.) Information/History | ||||||||
|---|---|---|---|---|---|---|---|---|
| Year | Date | Market Value | Taxable Market Value | Gross Assessed | Exemption | Net Assessed | ||
|
2026 |
02/06/2026 |
251,000 |
185,672 |
20,423 |
1,000 |
19,423 |
||
|
2025 |
01/31/2025 |
253,000 |
180,265 |
19,828 |
1,000 |
18,828 |
||
|
2024 |
01/22/2024 |
244,000 |
175,015 |
19,250 |
1,000 |
18,250 |
||
|
2023 |
01/23/2023 |
221,000 |
169,918 |
18,690 |
1,000 |
17,690 |
||
|
2022 |
02/22/2022 |
192,500 |
164,969 |
18,146 |
1,000 |
17,146 |
||
| Property Building Permit History | ||||||
|---|---|---|---|---|---|---|
| Issued | Permit # | Provided by | Bldg # | Description | Est Construction Cost | Status |
|
10/20/1999 |
10249674 |
DEL CITY |
1 |
Other |
3,800 |
Inactive |
|
7/14/1999 |
10249673 |
DEL CITY |
1 |
Main Dwellin |
0 |
Inactive |
| Click button on building number to access detailed information: | ||||||
|---|---|---|---|---|---|---|
| Bldg # | Vacant/Improved Land | Bldg Description | Year Built | SqFt | # Stories | |
|
1 |
Improved |
Ranch 1 Story |
1999 |
1,551 |
1 Stories |
|