|
|
|
| Larry Stein Oklahoma County Assessor (405) 713-1200 - Public Access System |
|
|
|
|
|
|
| Real Property Display - Screen Produced 3/21/2026 5:35:50 AM | ||||
|---|---|---|---|---|
| Account: R153501270 | Type: Residential | Location: |
3912 OAKBROOK DR |
|
| Building Name/Occupant: |
|
DEL CITY |
||
| Owner Name 1: | GODWIN KIAUNI |
Parcel PIN#: |
1466-15-350-1270 |
|
| Owner Name 2: | 1/4 section #: |
1466 |
||
| Owner Name 3: | Parent Acct: |
|
||
| Billing Address: | 3912 OAKBROOK DR | Tax District: |
|
|
| City, State, Zip | DEL CITY, OK 73115-4824 | School System: |
Mid-Del #52 |
|
|
Country: (If noted) |
Land Size: |
0.1646 Acres |
||
|
Land Value: 18,931 |
|
|||
|
Sect 17-T11N-R2W Qtr SE |
FROLICH HEIGHTS SEC 1
Block
002
Lot
013
|
|||
| Full Legal Description: FROLICH HEIGHTS SEC 1 002 013 |
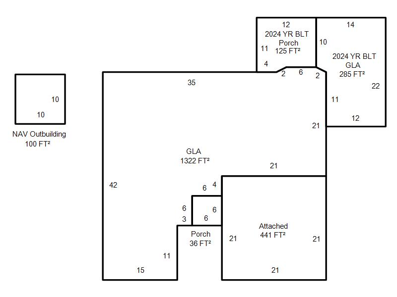
| Photo & Sketch (if available) | Comp Sales (ordered by relevancy) |
|
||||||||||||||||||
|
||||||||||||||||||||
| Value History (*The County Treasurer 405-713-1300 posts & collects actual tax amounts. Contact information HERE) | |||||||||||||
|---|---|---|---|---|---|---|---|---|---|---|---|---|---|
| Year | Market Value | Taxable Mkt Value | Gross Assessed | Exemption | Net Assessed | Millage | Est. Tax | Tax Savings | |||||
|
2025 |
250,000 |
203,573 |
22,392 |
0 |
22,392 |
114.72 |
$2,569 |
$586 |
|||||
|
2024 |
214,500 |
165,308 |
18,183 |
0 |
18,183 |
117.21 |
$2,131 |
$634 |
|||||
|
2023 |
192,000 |
157,437 |
17,317 |
0 |
17,317 |
112.46 |
$1,948 |
$428 |
|||||
|
2022 |
167,000 |
149,940 |
16,493 |
0 |
16,493 |
110.76 |
$1,827 |
$208 |
|||||
|
2021 |
149,500 |
142,800 |
15,708 |
0 |
15,708 |
114.70 |
$1,802 |
$85 |
|||||
| Property Account Status/Adjustments/Exemptions | ||
|---|---|---|
| Account # | Exemption Description | Amount |
|
R153501270 |
5% Capped Account |
0 |
| Property Deed Transaction History (Recorded in the County Clerk's Office) | |||||||
|---|---|---|---|---|---|---|---|
| Date | Type | Book | Page | Price | Grantor | Grantee | |
|
8/16/2013 |
|
Deeds |
$115,000 |
TOMPKINS RANDY H & D ANN M |
GODWIN KIAUNI |
||
|
6/5/2002 |
|
Deeds |
$90,000 |
SCOTT SMITH CUSTOM HOMES INC |
TOMPKINS RANDY H & D ANN M |
||
|
12/3/2001 |
|
Deeds |
$8,500 |
POWELL GREGORY A & TERESITA L |
SCOTT SMITH CUSTOM HOMES INC |
||
|
7/1/1986 |
|
Historical |
$58,500 |
FULLER JANICE SUE |
POWELL GREGORY A & TERESITA L |
||
|
8/1/1983 |
|
Historical |
$0 |
|
FULLER JANICE SUE |
||
| Last Mailed Notice of Value (N.O.V.) Information/History | ||||||||
|---|---|---|---|---|---|---|---|---|
| Year | Date | Market Value | Taxable Market Value | Gross Assessed | Exemption | Net Assessed | ||
|
2026 |
02/06/2026 |
246,000 |
213,751 |
23,512 |
0 |
23,512 |
||
|
2025 |
03/28/2025 |
250,000 |
203,573 |
22,392 |
0 |
22,392 |
||
|
2024 |
01/22/2024 |
214,500 |
165,308 |
18,183 |
0 |
18,183 |
||
|
2023 |
01/23/2023 |
192,000 |
157,437 |
17,317 |
0 |
17,317 |
||
|
2022 |
02/22/2022 |
167,000 |
149,940 |
16,493 |
0 |
16,493 |
||
| Property Building Permit History | ||||||
|---|---|---|---|---|---|---|
| Issued | Permit # | Provided by | Bldg # | Description | Est Construction Cost | Status |
|
1/11/2002 |
10250013 |
DEL CITY |
1 |
Main Dwellin |
80,000 |
Inactive |
|
7/7/1999 |
10250014 |
DEL CITY |
1 |
Demolish |
0 |
Inactive |
| Click button on building number to access detailed information: | ||||||
|---|---|---|---|---|---|---|
| Bldg # | Vacant/Improved Land | Bldg Description | Year Built | SqFt | # Stories | |
|
1 |
Improved |
Ranch 1 Story |
2002 |
1,607 |
1 Stories |
|