|
|
|
| Larry Stein Oklahoma County Assessor (405) 713-1200 - Public Access System |
|
|
|
|
|
|
| Real Property Display - Screen Produced 3/23/2026 5:35:35 AM | ||||
|---|---|---|---|---|
| Account: R153511190 | Type: Residential | Location: |
3916 HARTLINE DR |
|
| Building Name/Occupant: |
|
DEL CITY |
||
| Owner Name 1: | CONTRERAS MA L ESPARAZA |
Parcel PIN#: |
1466-15-351-1190 |
|
| Owner Name 2: | VELASCO ALBERTO LOPEZ | 1/4 section #: |
1466 |
|
| Owner Name 3: | Parent Acct: |
|
||
| Billing Address: | 3821 ASTOR DR | Tax District: |
|
|
| City, State, Zip | NORMAN, OK 73072 | School System: |
Mid-Del #52 |
|
|
Country: (If noted) |
UNITED STATES |
Land Size: |
0.1722 Acres |
|
|
Land Value: 21,534 |
|
|||
|
Sect 17-T11N-R2W Qtr SE |
FROLICH HEIGHTS SEC 2
Block
004
Lot
019
|
|||
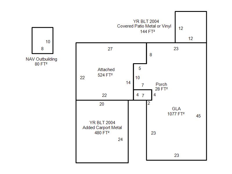
| Full Legal Description: FROLICH HEIGHTS SEC 2 004 019 |
| Photo & Sketch (if available) | Comp Sales (ordered by relevancy) |
|
||||||||||||||||||
|
||||||||||||||||||||
| Value History (*The County Treasurer 405-713-1300 posts & collects actual tax amounts. Contact information HERE) | |||||||||||||
|---|---|---|---|---|---|---|---|---|---|---|---|---|---|
| Year | Market Value | Taxable Mkt Value | Gross Assessed | Exemption | Net Assessed | Millage | Est. Tax | Tax Savings | |||||
|
2025 |
158,500 |
134,919 |
14,840 |
0 |
14,840 |
114.72 |
$1,703 |
$298 |
|||||
|
2024 |
152,500 |
128,495 |
14,134 |
0 |
14,134 |
117.21 |
$1,657 |
$309 |
|||||
|
2023 |
141,000 |
122,377 |
13,461 |
0 |
13,461 |
112.46 |
$1,514 |
$230 |
|||||
|
2022 |
126,500 |
116,550 |
12,820 |
0 |
12,820 |
110.76 |
$1,420 |
$121 |
|||||
|
2021 |
111,000 |
111,000 |
12,210 |
0 |
12,210 |
114.70 |
$1,400 |
$0 |
|||||
| Property Account Status/Adjustments/Exemptions | ||
|---|---|---|
| Account # | Exemption Description | Amount |
|
R153511190 |
5% Capped Account |
0 |
| Property Deed Transaction History (Recorded in the County Clerk's Office) | ||||||||||
|---|---|---|---|---|---|---|---|---|---|---|
| Date | Type | Book | Page | Price | Grantor | Grantee | ||||
|
10/17/2022 |
|
Deeds |
$0 |
CONTRERAS MARIA L ESPARAZA |
CONTRERAS MA L ESPARAZA |
|||||
|
10/30/2020 |
|
Deeds |
$75,000 |
LOPEZ ROSALVA |
CONTRERAS MARIA L ESPARAZA |
|||||
|
1/8/2008 |
|
Deeds |
$97,500 |
SHELTON DANA C |
LOPEZ ROSALVA |
|||||
|
9/11/2007 |
|
Deeds |
$0 |
SHELTON DANA C SHELTON FRANK L |
SHELTON DANA C |
|||||
|
12/31/2003 |
|
Deeds |
$86,500 |
JANSSEN CALEB JANSSEN JULIE A |
SHELTON DANA C SHELTON FRANK L |
|||||
| Last Mailed Notice of Value (N.O.V.) Information/History | ||||||||
|---|---|---|---|---|---|---|---|---|
| Year | Date | Market Value | Taxable Market Value | Gross Assessed | Exemption | Net Assessed | ||
|
2026 |
02/06/2026 |
160,500 |
141,664 |
15,583 |
0 |
15,583 |
||
|
2025 |
01/31/2025 |
158,500 |
134,919 |
14,840 |
0 |
14,840 |
||
|
2024 |
01/22/2024 |
152,500 |
128,495 |
14,134 |
0 |
14,134 |
||
|
2023 |
01/23/2023 |
141,000 |
122,377 |
13,461 |
0 |
13,461 |
||
|
2022 |
02/22/2022 |
126,500 |
116,550 |
12,820 |
0 |
12,820 |
||
| Property Building Permit History | |||||||||||
|---|---|---|---|---|---|---|---|---|---|---|---|
| Issued | Permit # | Provided by | Bldg # | Description | Est Construction Cost | Status | |||||
| No Building Permit records returned. | |||||||||||
| Click button on building number to access detailed information: | ||||||
|---|---|---|---|---|---|---|
| Bldg # | Vacant/Improved Land | Bldg Description | Year Built | SqFt | # Stories | |
|
1 |
Improved |
Ranch 1 Story |
1966 |
1,077 |
1 Stories |
|