|
|
|
| Larry Stein Oklahoma County Assessor (405) 713-1200 - Public Access System |
|
|
|
|
|
|
| Real Property Display - Screen Produced 3/25/2026 3:32:59 AM | ||||
|---|---|---|---|---|
| Account: R153511700 | Type: Residential | Location: |
4768 PRINCESS LN |
|
| Building Name/Occupant: |
|
DEL CITY |
||
| Owner Name 1: | CHAMBERLIN SCOTT L & BARBARA MARY |
Parcel PIN#: |
1466-15-351-1700 |
|
| Owner Name 2: | 1/4 section #: |
1466 |
||
| Owner Name 3: | Parent Acct: |
|
||
| Billing Address: | 4768 PRINCESS LN | Tax District: |
|
|
| City, State, Zip | DEL CITY, OK 73115-4310 | School System: |
Mid-Del #52 |
|
|
Country: (If noted) |
Land Size: |
0.2104 Acres |
||
|
Land Value: 26,304 |
|
|||
|
Sect 17-T11N-R2W Qtr SE |
FROLICH HEIGHTS SEC 2
Block
007
Lot
007
|
|||
| Full Legal Description: FROLICH HEIGHTS SEC 2 007 007 |
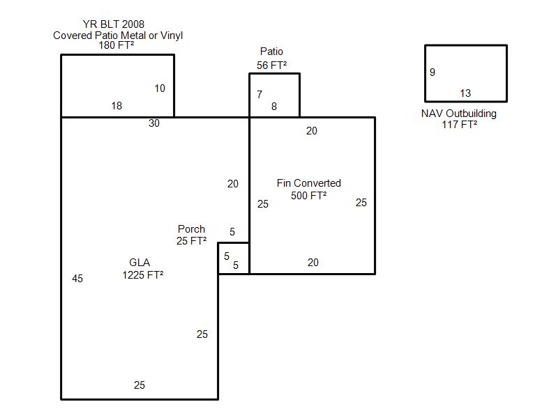
| Photo & Sketch (if available) | Comp Sales (ordered by relevancy) |
|
||||||||||||||||||
|
||||||||||||||||||||
| Value History (*The County Treasurer 405-713-1300 posts & collects actual tax amounts. Contact information HERE) | |||||||||||||
|---|---|---|---|---|---|---|---|---|---|---|---|---|---|
| Year | Market Value | Taxable Mkt Value | Gross Assessed | Exemption | Net Assessed | Millage | Est. Tax | Tax Savings | |||||
|
2025 |
178,000 |
129,749 |
14,271 |
1,000 |
13,271 |
114.72 |
$1,523 |
$724 |
|||||
|
2024 |
176,500 |
125,970 |
13,856 |
1,000 |
12,856 |
117.21 |
$1,507 |
$769 |
|||||
|
2023 |
164,500 |
122,301 |
13,452 |
1,000 |
12,452 |
112.46 |
$1,400 |
$634 |
|||||
|
2022 |
148,000 |
118,739 |
13,060 |
1,000 |
12,060 |
110.76 |
$1,336 |
$467 |
|||||
|
2021 |
130,000 |
115,281 |
12,680 |
1,000 |
11,680 |
114.70 |
$1,340 |
$300 |
|||||
| Property Account Status/Adjustments/Exemptions | ||
|---|---|---|
| Account # | Exemption Description | Amount |
|
R153511700 |
3% Cap Homestead |
0 |
|
R153511700 |
Homestead |
1,000 |
| Property Deed Transaction History (Recorded in the County Clerk's Office) | ||||||||||
|---|---|---|---|---|---|---|---|---|---|---|
| Date | Type | Book | Page | Price | Grantor | Grantee | ||||
|
4/17/2015 |
|
Deeds |
$111,000 |
VAUGHN JOSEPH F & DEBRA S |
CHAMBERLIN SCOTT L & BARBARA MARY |
|||||
|
9/22/2009 |
|
Other |
$0 |
FEDERAL NATIONAL MORTGAGE ASSOCIATION |
VAUGHN JOSEPH F & DEBRA S |
|||||
|
3/2/2009 |
|
Hmstd Off & |
$0 |
VAUGHN ZIVEN & VALERIE |
FEDERAL NATIONAL MORTGAGE ASSOCIATION |
|||||
|
10/29/2008 |
|
Hmstd Off & |
$0 |
VAUGHN FAMILY TRUST WASKOM FRANK TRS |
VAUGHN ZIVEN & VALERIE |
|||||
|
3/28/2006 |
|
Deeds |
$0 |
VAUGHN ZIVEN |
VAUGHN FAMILY TRUST |
|||||
| Last Mailed Notice of Value (N.O.V.) Information/History | ||||||||
|---|---|---|---|---|---|---|---|---|
| Year | Date | Market Value | Taxable Market Value | Gross Assessed | Exemption | Net Assessed | ||
|
2026 |
02/06/2026 |
179,000 |
133,641 |
14,700 |
1,000 |
13,700 |
||
|
2025 |
01/31/2025 |
178,000 |
129,749 |
14,271 |
1,000 |
13,271 |
||
|
2024 |
01/22/2024 |
176,500 |
125,970 |
13,856 |
1,000 |
12,856 |
||
|
2023 |
01/23/2023 |
164,500 |
122,301 |
13,452 |
1,000 |
12,452 |
||
|
2022 |
02/22/2022 |
148,000 |
118,739 |
13,060 |
1,000 |
12,060 |
||
| Property Building Permit History | ||||||
|---|---|---|---|---|---|---|
| Issued | Permit # | Provided by | Bldg # | Description | Est Construction Cost | Status |
|
3/21/2000 |
10250161 |
DEL CITY |
1 |
Remodeled |
9,000 |
Inactive |
| Click button on building number to access detailed information: | ||||||
|---|---|---|---|---|---|---|
| Bldg # | Vacant/Improved Land | Bldg Description | Year Built | SqFt | # Stories | |
|
1 |
Improved |
Ranch 1 Story |
1966 |
1,225 |
1 Stories |
|