|
|
|
| Larry Stein Oklahoma County Assessor (405) 713-1200 - Public Access System |
|
|
|
|
|
|
| Real Property Display - Screen Produced 3/21/2026 5:53:58 AM | ||||
|---|---|---|---|---|
| Account: R153531300 | Type: Residential | Location: |
4748 SPIVA DR |
|
| Building Name/Occupant: |
|
DEL CITY |
||
| Owner Name 1: | STICE BRYON G |
Parcel PIN#: |
1466-15-353-1300 |
|
| Owner Name 2: | STICE SARAH L | 1/4 section #: |
1466 |
|
| Owner Name 3: | Parent Acct: |
|
||
| Billing Address: | 4748 SPIVA DR | Tax District: |
|
|
| City, State, Zip | OKLAHOMA CITY, OK 73115 | School System: |
Mid-Del #52 |
|
|
Country: (If noted) |
UNITED STATES |
Land Size: |
0.1530 Acres |
|
|
Land Value: 18,059 |
|
|||
|
Sect 17-T11N-R2W Qtr SE |
FROLICH HEIGHTS SEC 3
Block
008
Lot
012
|
|||
| Full Legal Description: FROLICH HEIGHTS SEC 3 008 012 |
| Photo & Sketch (if available) | Comp Sales (ordered by relevancy) |
|
||||||||||||||||||
|
||||||||||||||||||||
| Value History (*The County Treasurer 405-713-1300 posts & collects actual tax amounts. Contact information HERE) | |||||||||||||
|---|---|---|---|---|---|---|---|---|---|---|---|---|---|
| Year | Market Value | Taxable Mkt Value | Gross Assessed | Exemption | Net Assessed | Millage | Est. Tax | Tax Savings | |||||
|
2025 |
144,500 |
114,225 |
12,564 |
0 |
12,564 |
114.72 |
$1,441 |
$382 |
|||||
|
2024 |
137,500 |
108,786 |
11,965 |
0 |
11,965 |
117.21 |
$1,403 |
$370 |
|||||
|
2023 |
127,000 |
103,606 |
11,396 |
0 |
11,396 |
112.46 |
$1,282 |
$289 |
|||||
|
2022 |
113,000 |
98,673 |
10,853 |
0 |
10,853 |
110.76 |
$1,202 |
$175 |
|||||
|
2021 |
99,000 |
93,975 |
10,337 |
0 |
10,337 |
114.70 |
$1,186 |
$63 |
|||||
| Property Account Status/Adjustments/Exemptions | ||
|---|---|---|
| Account # | Exemption Description | Amount |
|
R153531300 |
Homestead |
1,000 |
|
R153531300 |
3% Cap Homestead |
0 |
| Property Deed Transaction History (Recorded in the County Clerk's Office) | ||||||||||
|---|---|---|---|---|---|---|---|---|---|---|
| Date | Type | Book | Page | Price | Grantor | Grantee | ||||
|
9/1/2017 |
|
Deeds |
$86,500 |
DELGADO ERIC J |
STICE BRYON G |
|||||
|
6/16/2006 |
|
Deeds |
$0 |
DELGADO ERIC J MARSHALL JENNIFER D |
DELGADO ERIC J |
|||||
|
2/23/2001 |
|
Deeds |
$62,500 |
JOHNSON WILMA M TRS JOHNSON WILMA M REV TRUST |
DELGADO ERIC J MARSHALL JENNIFER D |
|||||
|
4/6/1999 |
|
Deeds |
$0 |
JOHNSON CHARLES H & WILMA M |
JOHNSON WILMA M |
|||||
|
4/6/1999 |
|
Deeds |
$0 |
JOHNSON WILMA M |
JOHNSON WILMA M TRS JOHNSON WILMA M REV TRUST |
|||||
| Last Mailed Notice of Value (N.O.V.) Information/History | ||||||||
|---|---|---|---|---|---|---|---|---|
| Year | Date | Market Value | Taxable Market Value | Gross Assessed | Exemption | Net Assessed | ||
|
2026 |
02/06/2026 |
145,500 |
119,936 |
13,192 |
0 |
13,192 |
||
|
2025 |
01/31/2025 |
144,500 |
114,225 |
12,564 |
0 |
12,564 |
||
|
2024 |
01/22/2024 |
137,500 |
108,786 |
11,965 |
0 |
11,965 |
||
|
2023 |
01/23/2023 |
127,000 |
103,606 |
11,396 |
0 |
11,396 |
||
|
2022 |
02/22/2022 |
113,000 |
98,673 |
10,853 |
0 |
10,853 |
||
| Property Building Permit History | ||||||
|---|---|---|---|---|---|---|
| Issued | Permit # | Provided by | Bldg # | Description | Est Construction Cost | Status |
|
7/8/1999 |
10250176 |
DEL CITY |
1 |
Remodeled |
0 |
Inactive |
| Click button on building number to access detailed information: | ||||||
|---|---|---|---|---|---|---|
| Bldg # | Vacant/Improved Land | Bldg Description | Year Built | SqFt | # Stories | |
|
1 |
Improved |
Ranch 1 Story |
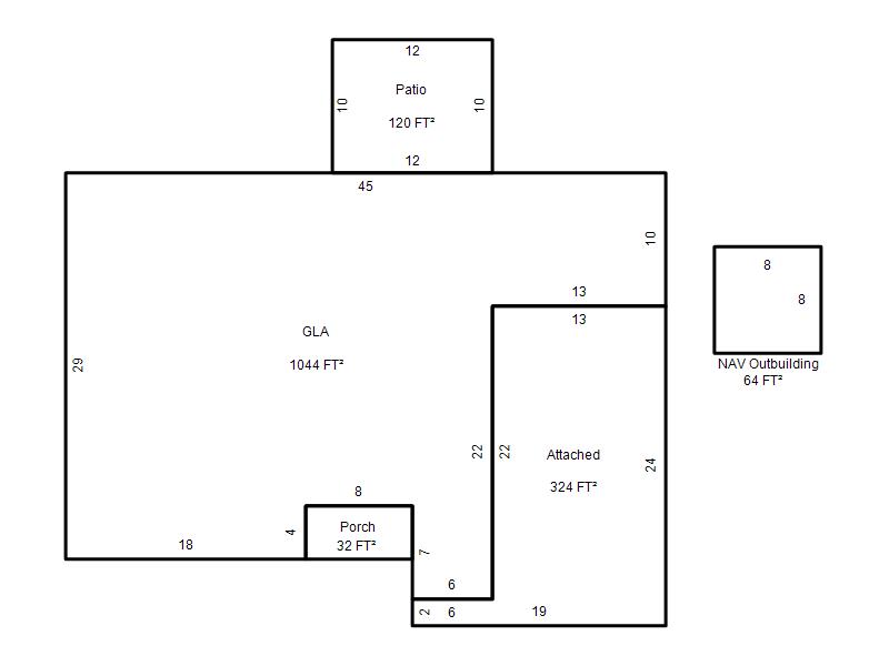
1967 |
1,044 |
1 Stories |
|