|
|
|
| Larry Stein Oklahoma County Assessor (405) 713-1200 - Public Access System |
|
|
|
|
|
|
| Real Property Display - Screen Produced 4/4/2026 7:42:03 AM | ||||
|---|---|---|---|---|
| Account: R204151290 | Type: Residential | Location: |
2705 NW 169TH ST |
|
| Building Name/Occupant: |
|
OKLAHOMA CITY |
||
| Owner Name 1: | BULLARD TIFFANY |
Parcel PIN#: |
4723-20-415-1290 |
|
| Owner Name 2: | 1/4 section #: |
4723 |
||
| Owner Name 3: | Parent Acct: |
4723-16-859-1223 |
||
| Billing Address: | 2705 NW 169TH ST | Tax District: |
|
|
| City, State, Zip | EDMOND, OK 73012 | School System: |
Edmond #12 |
|
|
Country: (If noted) |
Land Size: |
0.1793 Acres |
||
|
Land Value: 41,393 |
|
|||
|
Sect 31-T14N-R3W Qtr SW |
WOODVINE III
Block
013
Lot
014
|
|||
| Full Legal Description: WOODVINE III 013 014 |
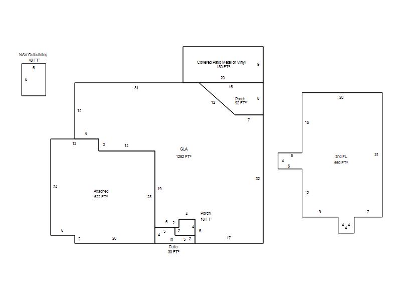
| Photo & Sketch (if available) | Comp Sales (ordered by relevancy) |
|
||||||||||||||||||
|
||||||||||||||||||||
| Value History (*The County Treasurer 405-713-1300 posts & collects actual tax amounts. Contact information HERE) | |||||||||||||
|---|---|---|---|---|---|---|---|---|---|---|---|---|---|
| Year | Market Value | Taxable Mkt Value | Gross Assessed | Exemption | Net Assessed | Millage | Est. Tax | Tax Savings | |||||
|
2026 |
307,500 |
307,500 |
33,825 |
0 |
33,825 |
120.32 |
$4,070 |
$0 |
|||||
|
2025 |
313,500 |
313,500 |
34,485 |
0 |
34,485 |
120.32 |
$4,149 |
$0 |
|||||
|
2024 |
304,000 |
304,000 |
33,440 |
0 |
33,440 |
119.96 |
$4,011 |
$0 |
|||||
|
2023 |
332,000 |
332,000 |
36,520 |
0 |
36,520 |
119.02 |
$4,347 |
$0 |
|||||
|
2022 |
249,500 |
229,320 |
25,225 |
0 |
25,225 |
120.10 |
$3,030 |
$267 |
|||||
| Property Account Status/Adjustments/Exemptions | ||
|---|---|---|
| Account # | Exemption Description | Amount |
|
R204151290 |
5% Capped Account |
0 |
| Property Deed Transaction History (Recorded in the County Clerk's Office) | ||||||||||
|---|---|---|---|---|---|---|---|---|---|---|
| Date | Type | Book | Page | Price | Grantor | Grantee | ||||
|
5/26/2022 |
|
Deeds |
$331,000 |
SHELDON JONATHAN ALBERT SR |
BULLARD TIFFANY |
|||||
|
5/17/2018 |
|
Deeds |
$211,500 |
EPPERSON RYAN J |
SHELDON JONATHAN ALBERT SR |
|||||
|
5/15/2014 |
|
Deeds |
$206,500 |
ALSPAUGH JARED SEXTON KATY |
EPPERSON RYAN J |
|||||
|
7/18/2008 |
|
Deeds |
$193,000 |
HENSLEE CHAD R & AMANDA J |
ALSPAUGH JARED SEXTON KATY |
|||||
|
6/29/2005 |
|
Deeds |
$172,000 |
BRAWNER J TRAVIS |
HENSLEE CHAD R & AMANDA J |
|||||
| Last Mailed Notice of Value (N.O.V.) Information/History | ||||||||
|---|---|---|---|---|---|---|---|---|
| Year | Date | Market Value | Taxable Market Value | Gross Assessed | Exemption | Net Assessed | ||
|
2025 |
01/31/2025 |
313,500 |
313,500 |
34,485 |
0 |
34,485 |
||
|
2023 |
01/23/2023 |
332,000 |
332,000 |
36,520 |
0 |
36,520 |
||
|
2022 |
02/22/2022 |
249,500 |
229,320 |
25,225 |
0 |
25,225 |
||
|
2021 |
02/24/2021 |
218,500 |
218,400 |
24,024 |
0 |
24,024 |
||
|
2020 |
02/21/2020 |
208,000 |
208,000 |
22,880 |
0 |
22,880 |
||
| Property Building Permit History | ||||||
|---|---|---|---|---|---|---|
| Issued | Permit # | Provided by | Bldg # | Description | Est Construction Cost | Status |
|
2/6/2004 |
10286507 |
OKLAHOMA CITY |
1 |
Other |
163,000 |
Inactive |
| Click button on building number to access detailed information: | ||||||
|---|---|---|---|---|---|---|
| Bldg # | Vacant/Improved Land | Bldg Description | Year Built | SqFt | # Stories | |
|
1 |
Improved |
1½ Story Fin |
2004 |
1,922 |
1.5 Stories |
|