|
|
|
| Larry Stein Oklahoma County Assessor (405) 713-1200 - Public Access System |
|
|
|
|
|
|
| Real Property Display - Screen Produced 4/2/2026 2:05:17 PM | ||||
|---|---|---|---|---|
| Account: R129291000 | Type: Residential | Location: |
17400 WAIN BRIDGE AVE |
|
| Building Name/Occupant: |
|
OKLAHOMA CITY |
||
| Owner Name 1: | MONTGOMERY LIV TRUST |
Parcel PIN#: |
4725-12-929-1000 |
|
| Owner Name 2: | 1/4 section #: |
4725 |
||
| Owner Name 3: | Parent Acct: |
|
||
| Billing Address: | 17400 WAIN BRIDGE AVE | Tax District: |
|
|
| City, State, Zip | EDMOND, OK 73012 | School System: |
Edmond #12 |
|
|
Country: (If noted) |
Land Size: |
0.1641 Acres |
||
|
Land Value: 39,325 |
|
|||
|
Sect 32-T14N-R3W Qtr NE |
DURBIN HILLS 3RD
Block
009
Lot
001
|
|||
| Full Legal Description: DURBIN HILLS 3RD 009 001 |
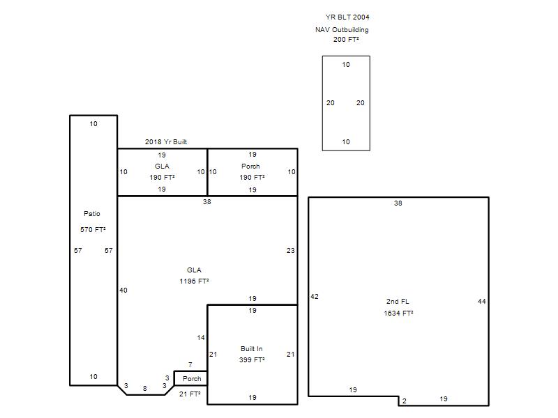
| Photo & Sketch (if available) | Comp Sales (ordered by relevancy) |
|
||||||||||||||||||
|
||||||||||||||||||||
| Value History (*The County Treasurer 405-713-1300 posts & collects actual tax amounts. Contact information HERE) | |||||||||||||
|---|---|---|---|---|---|---|---|---|---|---|---|---|---|
| Year | Market Value | Taxable Mkt Value | Gross Assessed | Exemption | Net Assessed | Millage | Est. Tax | Tax Savings | |||||
|
2026 |
377,000 |
289,047 |
31,795 |
1,000 |
30,795 |
120.32 |
$3,705 |
$1,284 |
|||||
|
2025 |
373,500 |
280,629 |
30,869 |
1,000 |
29,869 |
120.32 |
$3,594 |
$1,349 |
|||||
|
2024 |
357,000 |
272,456 |
29,969 |
1,000 |
28,969 |
119.96 |
$3,475 |
$1,236 |
|||||
|
2023 |
346,000 |
264,521 |
29,096 |
1,000 |
28,096 |
119.02 |
$3,344 |
$1,186 |
|||||
|
2022 |
288,000 |
256,817 |
28,249 |
1,000 |
27,249 |
120.10 |
$3,273 |
$532 |
|||||
| Property Account Status/Adjustments/Exemptions | ||
|---|---|---|
| Account # | Exemption Description | Amount |
|
R129291000 |
3% Cap Homestead |
0 |
|
R129291000 |
Homestead |
1,000 |
| Property Deed Transaction History (Recorded in the County Clerk's Office) | |||||||
|---|---|---|---|---|---|---|---|
| Date | Type | Book | Page | Price | Grantor | Grantee | |
|
12/18/2025 |
|
Deeds |
$0 |
MONTGOMERY DALE R & VILYNSIA |
MONTGOMERY LIV TRUST |
||
|
3/18/2004 |
|
Deeds |
$160,000 |
RYAN THOMAS W & TAMMRA J |
MONTGOMERY DALE R & VILYNSIA |
||
|
5/24/1999 |
|
Deeds |
$137,000 |
GOFF HOMES OF OKLAHOMA INC |
RYAN THOMAS W & TAMMRA J |
||
|
10/15/1998 |
|
Historical |
$14,500 |
HILLS OF DURBIN DEVELOPMENT |
GOFF HOMES OF OKLAHOMA INC |
||
|
11/17/1995 |
|
Historical |
$0 |
|
HILLS OF DURBIN DEVELOPMENT |
||
| Last Mailed Notice of Value (N.O.V.) Information/History | ||||||||
|---|---|---|---|---|---|---|---|---|
| Year | Date | Market Value | Taxable Market Value | Gross Assessed | Exemption | Net Assessed | ||
|
2026 |
02/06/2026 |
377,000 |
289,047 |
31,795 |
1,000 |
30,795 |
||
|
2025 |
01/31/2025 |
373,500 |
280,629 |
30,869 |
1,000 |
29,869 |
||
|
2024 |
01/22/2024 |
357,000 |
272,456 |
29,969 |
1,000 |
28,969 |
||
|
2023 |
01/23/2023 |
346,000 |
264,521 |
29,096 |
1,000 |
28,096 |
||
|
2022 |
02/22/2022 |
288,000 |
256,817 |
28,248 |
1,000 |
27,248 |
||
| Property Building Permit History | ||||||
|---|---|---|---|---|---|---|
| Issued | Permit # | Provided by | Bldg # | Description | Est Construction Cost | Status |
|
2/13/2018 |
|
|
|
Add On |
15,000 |
Inactive |
|
8/11/2004 |
10295492 |
OKLAHOMA CITY |
1 |
Storage Buil |
4,800 |
Inactive |
|
10/9/1998 |
10225012 |
OKLAHOMA CITY |
1 |
Main Dwellin |
114,900 |
Inactive |
| Click button on building number to access detailed information: | ||||||
|---|---|---|---|---|---|---|
| Bldg # | Vacant/Improved Land | Bldg Description | Year Built | SqFt | # Stories | |
|
1 |
Improved |
2 Story |
1999 |
3,020 |
2 Stories |
|