|
|
|
| Larry Stein Oklahoma County Assessor (405) 713-1200 - Public Access System |
|
|
|
|
|
|
| Real Property Display - Screen Produced 4/2/2026 4:10:21 PM | ||||
|---|---|---|---|---|
| Account: R129291180 | Type: Residential | Location: |
1313 NW 176TH ST |
|
| Building Name/Occupant: |
|
OKLAHOMA CITY |
||
| Owner Name 1: | MCKELVY MELISSA |
Parcel PIN#: |
4725-12-929-1180 |
|
| Owner Name 2: | 1/4 section #: |
4725 |
||
| Owner Name 3: | Parent Acct: |
|
||
| Billing Address: | 1313 NW 176TH ST | Tax District: |
|
|
| City, State, Zip | EDMOND, OK 73012 | School System: |
Edmond #12 |
|
|
Country: (If noted) |
Land Size: |
0.1667 Acres |
||
|
Land Value: 39,930 |
|
|||
|
Sect 32-T14N-R3W Qtr NE |
DURBIN HILLS 3RD
Block
010
Lot
003
|
|||
| Full Legal Description: DURBIN HILLS 3RD 010 003 |
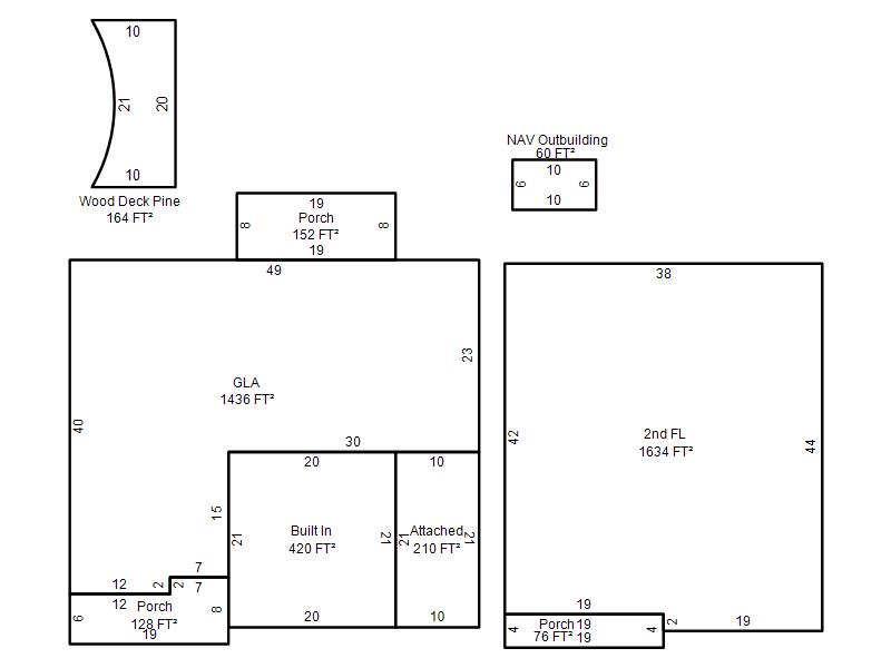
| Photo & Sketch (if available) | Comp Sales (ordered by relevancy) |
|
||||||||||||||||||
|
||||||||||||||||||||
| Value History (*The County Treasurer 405-713-1300 posts & collects actual tax amounts. Contact information HERE) | |||||||||||||
|---|---|---|---|---|---|---|---|---|---|---|---|---|---|
| Year | Market Value | Taxable Mkt Value | Gross Assessed | Exemption | Net Assessed | Millage | Est. Tax | Tax Savings | |||||
|
2026 |
384,500 |
291,987 |
32,118 |
1,000 |
31,118 |
120.32 |
$3,744 |
$1,345 |
|||||
|
2025 |
378,000 |
283,483 |
31,182 |
1,000 |
30,182 |
120.32 |
$3,632 |
$1,371 |
|||||
|
2024 |
361,000 |
275,227 |
30,274 |
1,000 |
29,274 |
119.96 |
$3,512 |
$1,252 |
|||||
|
2023 |
345,000 |
267,211 |
29,393 |
1,000 |
28,393 |
119.02 |
$3,379 |
$1,137 |
|||||
|
2022 |
286,000 |
259,429 |
28,537 |
1,000 |
27,537 |
120.10 |
$3,307 |
$471 |
|||||
| Property Account Status/Adjustments/Exemptions | ||
|---|---|---|
| Account # | Exemption Description | Amount |
|
R129291180 |
3% Cap Homestead |
0 |
|
R129291180 |
Homestead |
1,000 |
| Property Deed Transaction History (Recorded in the County Clerk's Office) | ||||||||||
|---|---|---|---|---|---|---|---|---|---|---|
| Date | Type | Book | Page | Price | Grantor | Grantee | ||||
|
11/8/2022 |
|
Deeds |
$0 |
MCKELVY MELISSA SUZANNE |
MCKELVY MELISSA |
|||||
|
11/3/2022 |
|
Deeds |
$0 |
MCKELVY JAMES F & MELISSA S |
MCKELVY MELISSA SUZANNE |
|||||
|
5/13/2011 |
|
Deeds |
$193,000 |
MEADOR MARK D & KRISTINE E |
MCKELVY JAMES F & MELISSA S |
|||||
|
8/27/2007 |
|
Deeds |
$109,500 |
KREBBS WILLIAM KREBBS DOTTIE |
MEADOR MARK D & KRISTINE E |
|||||
|
11/23/2004 |
|
Deeds |
$125,000 |
LOVETT ROBERT D |
KREBBS WILLIAM KREBBS DOTTIE |
|||||
| Last Mailed Notice of Value (N.O.V.) Information/History | ||||||||
|---|---|---|---|---|---|---|---|---|
| Year | Date | Market Value | Taxable Market Value | Gross Assessed | Exemption | Net Assessed | ||
|
2026 |
02/06/2026 |
384,500 |
291,987 |
32,118 |
1,000 |
31,118 |
||
|
2025 |
01/31/2025 |
378,000 |
283,483 |
31,182 |
1,000 |
30,182 |
||
|
2024 |
01/22/2024 |
361,000 |
275,227 |
30,274 |
1,000 |
29,274 |
||
|
2023 |
01/23/2023 |
345,000 |
267,211 |
29,393 |
1,000 |
28,393 |
||
|
2022 |
02/22/2022 |
286,000 |
259,429 |
28,536 |
1,000 |
27,536 |
||
| Property Building Permit History | ||||||
|---|---|---|---|---|---|---|
| Issued | Permit # | Provided by | Bldg # | Description | Est Construction Cost | Status |
|
7/31/1998 |
10225033 |
OKLAHOMA CITY |
1 |
Main Dwellin |
114,900 |
Inactive |
| Click button on building number to access detailed information: | ||||||
|---|---|---|---|---|---|---|
| Bldg # | Vacant/Improved Land | Bldg Description | Year Built | SqFt | # Stories | |
|
1 |
Improved |
2 Story |
1998 |
3,070 |
2 Stories |
|