|
|
|
| Larry Stein Oklahoma County Assessor (405) 713-1200 - Public Access System |
|
|
|
|
|
|
| Real Property Display - Screen Produced 3/22/2026 2:12:08 PM | ||||
|---|---|---|---|---|
| Account: R200691140 | Type: Residential | Location: |
1800 NW 172ND ST |
|
| Building Name/Occupant: |
|
OKLAHOMA CITY |
||
| Owner Name 1: | HOLLANDER ANITA KATHLEEN |
Parcel PIN#: |
4728-20-069-1140 |
|
| Owner Name 2: | 1/4 section #: |
4728 |
||
| Owner Name 3: | Parent Acct: |
|
||
| Billing Address: | 1800 NW 172ND ST | Tax District: |
|
|
| City, State, Zip | EDMOND, OK 73012 | School System: |
Edmond #12 |
|
|
Country: (If noted) |
Land Size: |
0.1835 Acres |
||
|
Land Value: 39,975 |
|
|||
|
Sect 32-T14N-R3W Qtr NW |
COPPER CREEK 3RD
Block
016
Lot
027
|
|||
| Full Legal Description: COPPER CREEK 3RD 016 027 |
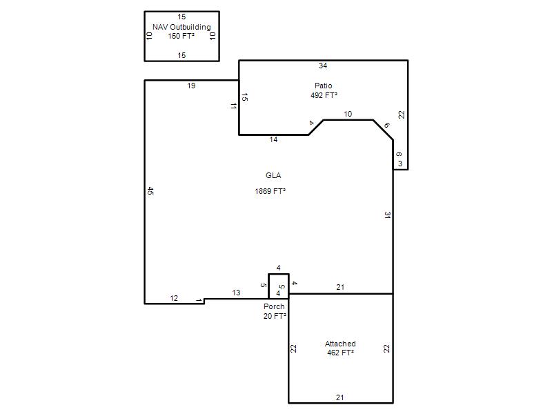
| Photo & Sketch (if available) | Comp Sales (ordered by relevancy) |
|
||||||||||||||||||
|
||||||||||||||||||||
| Value History (*The County Treasurer 405-713-1300 posts & collects actual tax amounts. Contact information HERE) | |||||||||||||
|---|---|---|---|---|---|---|---|---|---|---|---|---|---|
| Year | Market Value | Taxable Mkt Value | Gross Assessed | Exemption | Net Assessed | Millage | Est. Tax | Tax Savings | |||||
|
2025 |
275,000 |
235,473 |
25,901 |
0 |
25,901 |
120.32 |
$3,117 |
$523 |
|||||
|
2024 |
268,500 |
224,260 |
24,667 |
0 |
24,667 |
119.96 |
$2,959 |
$584 |
|||||
|
2023 |
256,000 |
213,581 |
23,493 |
0 |
23,493 |
119.02 |
$2,796 |
$555 |
|||||
|
2022 |
221,000 |
203,411 |
22,374 |
0 |
22,374 |
120.10 |
$2,687 |
$232 |
|||||
|
2021 |
195,500 |
193,725 |
21,309 |
0 |
21,309 |
118.88 |
$2,533 |
$23 |
|||||
| Property Account Status/Adjustments/Exemptions | ||
|---|---|---|
| Account # | Exemption Description | Amount |
|
R200691140 |
5% Capped Account |
0 |
| Property Deed Transaction History (Recorded in the County Clerk's Office) | ||||||||||
|---|---|---|---|---|---|---|---|---|---|---|
| Date | Type | Book | Page | Price | Grantor | Grantee | ||||
|
5/22/2019 |
|
Deeds |
$0 |
HOLLANDER ANITA KATHLEEN |
HOLLANDER ANITA KATHLEEN |
|||||
|
7/24/2018 |
|
Hmstd Off & |
$0 |
HOLLANDER ROBERT G & MARY E TRS |
HOLLANDER ANITA KATHLEEN |
|||||
|
6/8/2009 |
|
Deeds |
$0 |
HOLLANDER ROBERT G & MARY ELLA |
HOLLANDER ROBERT G & MARY E TRS |
|||||
|
3/16/2001 |
|
Deeds |
$137,500 |
JEFF CLICK HOMES LLC |
HOLLANDER ROBERT G & MARY ELLA |
|||||
|
5/4/2000 |
|
Deeds |
$0 |
RICHARD FULLER HOMES OKLAHOMA LLC |
JEFF CLICK HOMES LLC |
|||||
| Last Mailed Notice of Value (N.O.V.) Information/History | ||||||||
|---|---|---|---|---|---|---|---|---|
| Year | Date | Market Value | Taxable Market Value | Gross Assessed | Exemption | Net Assessed | ||
|
2026 |
02/06/2026 |
272,000 |
247,246 |
27,197 |
0 |
27,197 |
||
|
2025 |
01/31/2025 |
275,000 |
235,473 |
25,901 |
0 |
25,901 |
||
|
2024 |
01/22/2024 |
268,500 |
224,260 |
24,667 |
0 |
24,667 |
||
|
2023 |
01/23/2023 |
256,000 |
213,581 |
23,493 |
0 |
23,493 |
||
|
2022 |
02/22/2022 |
221,000 |
203,411 |
22,374 |
0 |
22,374 |
||
| Property Building Permit History | ||||||
|---|---|---|---|---|---|---|
| Issued | Permit # | Provided by | Bldg # | Description | Est Construction Cost | Status |
|
5/8/2000 |
10267251 |
OKLAHOMA CITY |
1 |
Main Dwellin |
130,000 |
Inactive |
| Click button on building number to access detailed information: | ||||||
|---|---|---|---|---|---|---|
| Bldg # | Vacant/Improved Land | Bldg Description | Year Built | SqFt | # Stories | |
|
1 |
Improved |
Ranch 1 Story |
2000 |
1,869 |
1 Stories |
|