|
|
|
| Larry Stein Oklahoma County Assessor (405) 713-1200 - Public Access System |
|
|
|
|
|
|
| Real Property Display - Screen Produced 3/23/2026 7:30:01 AM | ||||
|---|---|---|---|---|
| Account: R121041220 | Type: Residential | Location: |
817 ROLLING HILLS TER |
|
| Building Name/Occupant: |
|
EDMOND |
||
| Owner Name 1: | BIZAL JOHN |
Parcel PIN#: |
4729-12-104-1220 |
|
| Owner Name 2: | 1/4 section #: |
4729 |
||
| Owner Name 3: | Parent Acct: |
|
||
| Billing Address: | 817 ROLLING HILLS TER | Tax District: |
|
|
| City, State, Zip | EDMOND, OK 73012-6615 | School System: |
Edmond #12 |
|
|
Country: (If noted) |
Land Size: |
0.1641 Acres |
||
|
Land Value: 33,963 |
|
|||
|
Sect 33-T14N-R3W Qtr NE |
THE TRAILS SOUTH 8TH
Block
003
Lot
002
|
|||
| Full Legal Description: THE TRAILS SOUTH 8TH 003 002 |
| Photo & Sketch (if available) | Comp Sales (ordered by relevancy) |
|
||||||||||||||||||
|
||||||||||||||||||||
| Value History (*The County Treasurer 405-713-1300 posts & collects actual tax amounts. Contact information HERE) | |||||||||||||
|---|---|---|---|---|---|---|---|---|---|---|---|---|---|
| Year | Market Value | Taxable Mkt Value | Gross Assessed | Exemption | Net Assessed | Millage | Est. Tax | Tax Savings | |||||
|
2025 |
282,500 |
256,331 |
28,195 |
0 |
28,195 |
105.16 |
$2,965 |
$303 |
|||||
|
2024 |
282,000 |
244,125 |
26,853 |
0 |
26,853 |
105.03 |
$2,820 |
$438 |
|||||
|
2023 |
232,500 |
232,500 |
25,575 |
0 |
25,575 |
104.24 |
$2,666 |
$0 |
|||||
|
2022 |
205,000 |
159,075 |
17,498 |
0 |
17,498 |
104.64 |
$1,831 |
$529 |
|||||
|
2021 |
151,500 |
151,500 |
16,665 |
0 |
16,665 |
104.15 |
$1,736 |
$0 |
|||||
| Property Account Status/Adjustments/Exemptions | ||
|---|---|---|
| Account # | Exemption Description | Amount |
|
R121041220 |
5% Capped Account |
0 |
| Property Deed Transaction History (Recorded in the County Clerk's Office) | ||||||||||
|---|---|---|---|---|---|---|---|---|---|---|
| Date | Type | Book | Page | Price | Grantor | Grantee | ||||
|
2/2/2026 |
|
Deeds |
$275,000 |
MADISONS PROPERTIES LLC |
BIZAL JOHN |
|||||
|
8/12/2022 |
|
Deeds |
$231,500 |
PETERMANN CHRIS A & AMY D |
MADISONS PROPERTIES LLC |
|||||
|
3/7/2017 |
|
Deeds |
$142,500 |
YOUNG INVESTMENT PROPERTIES LLC |
PETERMANN CHRIS A & AMY D |
|||||
|
3/12/2014 |
|
Deeds |
$105,500 |
HALLEY JAMES M & BELINDA S |
YOUNG INVESTMENT PROPERTIES LLC |
|||||
|
2/9/1999 |
|
Historical |
$93,500 |
HALLEY JAMES M |
HALLEY JAMES M & BELINDA S |
|||||
| Last Mailed Notice of Value (N.O.V.) Information/History | ||||||||
|---|---|---|---|---|---|---|---|---|
| Year | Date | Market Value | Taxable Market Value | Gross Assessed | Exemption | Net Assessed | ||
|
2026 |
02/06/2026 |
289,000 |
269,147 |
29,605 |
0 |
29,605 |
||
|
2025 |
01/31/2025 |
282,500 |
256,331 |
28,195 |
0 |
28,195 |
||
|
2024 |
01/22/2024 |
282,000 |
244,125 |
26,853 |
0 |
26,853 |
||
|
2023 |
01/23/2023 |
232,500 |
232,500 |
25,575 |
0 |
25,575 |
||
|
2022 |
02/22/2022 |
205,000 |
159,075 |
17,498 |
0 |
17,498 |
||
| Property Building Permit History | |||||||||||
|---|---|---|---|---|---|---|---|---|---|---|---|
| Issued | Permit # | Provided by | Bldg # | Description | Est Construction Cost | Status | |||||
| No Building Permit records returned. | |||||||||||
| Click button on building number to access detailed information: | ||||||
|---|---|---|---|---|---|---|
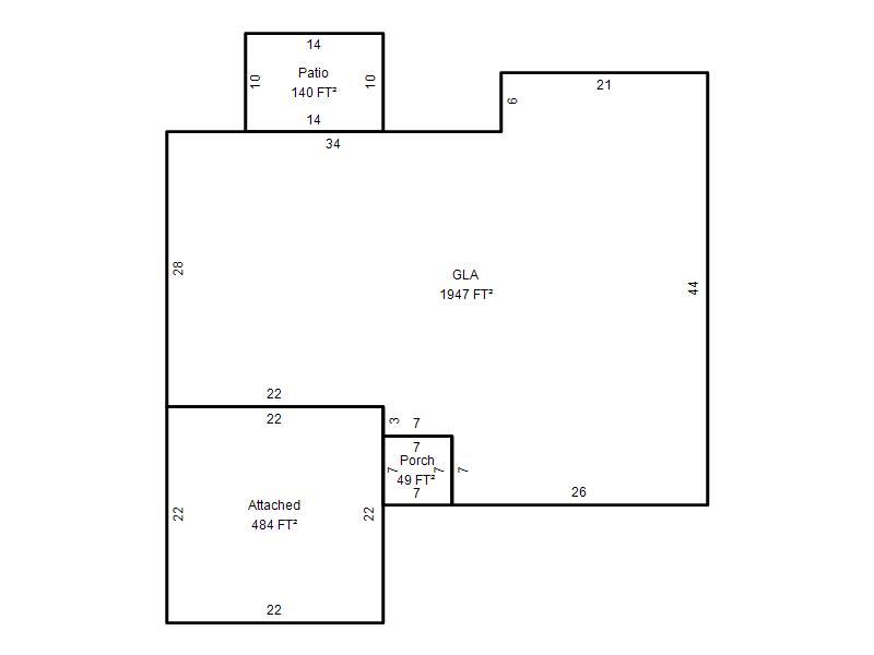
| Bldg # | Vacant/Improved Land | Bldg Description | Year Built | SqFt | # Stories | |
|
1 |
Improved |
Ranch 1 Story |
1983 |
1,947 |
1 Stories |
|