|
|
|
| Larry Stein Oklahoma County Assessor (405) 713-1200 - Public Access System |
|
|
|
|
|
|
| Real Property Display - Screen Produced 3/23/2026 7:37:39 AM | ||||
|---|---|---|---|---|
| Account: R121041320 | Type: Residential | Location: |
2813 MORGAN TRL |
|
| Building Name/Occupant: |
|
EDMOND |
||
| Owner Name 1: | MONTGOMERY MATTHEW D |
Parcel PIN#: |
4729-12-104-1320 |
|
| Owner Name 2: | 1/4 section #: |
4729 |
||
| Owner Name 3: | Parent Acct: |
|
||
| Billing Address: | 2813 MORGAN TRL | Tax District: |
|
|
| City, State, Zip | EDMOND, OK 73012-6660 | School System: |
Edmond #12 |
|
|
Country: (If noted) |
Land Size: |
0.1656 Acres |
||
|
Land Value: 34,271 |
|
|||
|
Sect 33-T14N-R3W Qtr NE |
THE TRAILS SOUTH 8TH
Block
004
Lot
004
|
|||
| Full Legal Description: THE TRAILS SOUTH 8TH 004 004 |
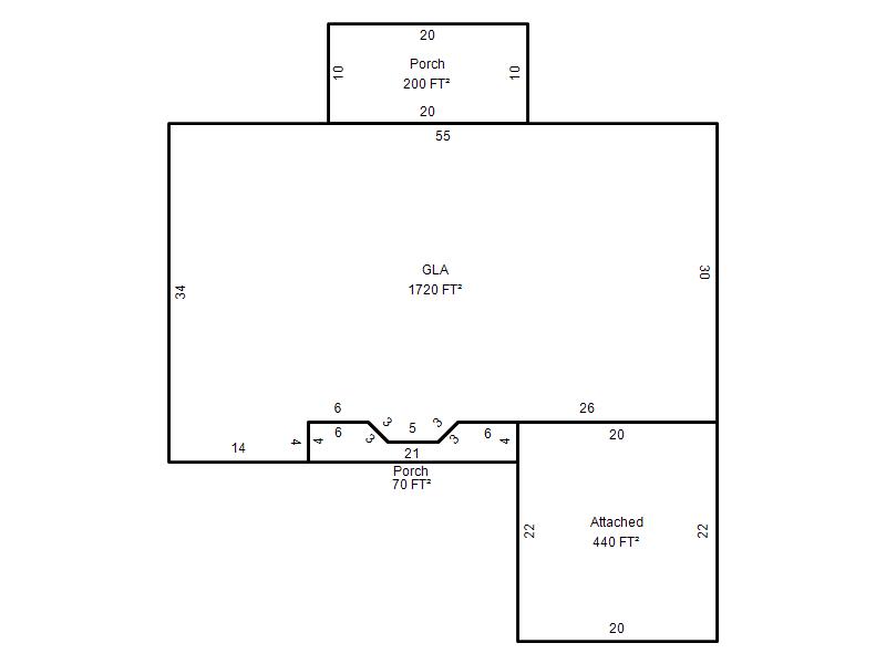
| Photo & Sketch (if available) | Comp Sales (ordered by relevancy) |
|
||||||||||||||||||
|
||||||||||||||||||||
| Value History (*The County Treasurer 405-713-1300 posts & collects actual tax amounts. Contact information HERE) | |||||||||||||
|---|---|---|---|---|---|---|---|---|---|---|---|---|---|
| Year | Market Value | Taxable Mkt Value | Gross Assessed | Exemption | Net Assessed | Millage | Est. Tax | Tax Savings | |||||
|
2025 |
248,000 |
209,947 |
23,093 |
0 |
23,093 |
105.16 |
$2,429 |
$440 |
|||||
|
2024 |
244,500 |
199,950 |
21,994 |
0 |
21,994 |
105.03 |
$2,310 |
$515 |
|||||
|
2023 |
230,500 |
190,429 |
20,946 |
0 |
20,946 |
104.24 |
$2,184 |
$459 |
|||||
|
2022 |
203,000 |
181,361 |
19,948 |
0 |
19,948 |
104.64 |
$2,088 |
$249 |
|||||
|
2021 |
179,500 |
172,725 |
18,999 |
0 |
18,999 |
104.15 |
$1,979 |
$78 |
|||||
| Property Account Status/Adjustments/Exemptions | ||
|---|---|---|
| Account # | Exemption Description | Amount |
|
R121041320 |
5% Capped Account |
0 |
| Property Deed Transaction History (Recorded in the County Clerk's Office) | ||||||||||
|---|---|---|---|---|---|---|---|---|---|---|
| Date | Type | Book | Page | Price | Grantor | Grantee | ||||
|
8/7/2015 |
|
Deeds |
$158,000 |
SMITH VIVIAN KAY |
MONTGOMERY MATTHEW D |
|||||
|
10/28/1998 |
|
Historical |
$0 |
SMITH MICHAEL B & VIVIAN K |
SMITH VIVIAN KAY |
|||||
|
4/1/1994 |
|
Historical |
$74,500 |
FOSKIN STEPHEN M & AMY S |
SMITH MICHAEL B & VIVIAN K |
|||||
|
4/7/1993 |
|
Historical |
$0 |
JOHANSEN AMY S |
FOSKIN STEPHEN M & AMY S |
|||||
|
3/16/1989 |
|
Historical |
$59,000 |
FEDERAL NATIONAL MTG ASSN |
JOHANSEN AMY S |
|||||
| Last Mailed Notice of Value (N.O.V.) Information/History | ||||||||
|---|---|---|---|---|---|---|---|---|
| Year | Date | Market Value | Taxable Market Value | Gross Assessed | Exemption | Net Assessed | ||
|
2026 |
02/06/2026 |
252,500 |
220,444 |
24,248 |
0 |
24,248 |
||
|
2025 |
01/31/2025 |
248,000 |
209,947 |
23,093 |
0 |
23,093 |
||
|
2024 |
01/22/2024 |
244,500 |
199,950 |
21,994 |
0 |
21,994 |
||
|
2023 |
01/23/2023 |
230,500 |
190,429 |
20,946 |
0 |
20,946 |
||
|
2022 |
02/22/2022 |
203,000 |
181,361 |
19,948 |
0 |
19,948 |
||
| Property Building Permit History | |||||||||||
|---|---|---|---|---|---|---|---|---|---|---|---|
| Issued | Permit # | Provided by | Bldg # | Description | Est Construction Cost | Status | |||||
| No Building Permit records returned. | |||||||||||
| Click button on building number to access detailed information: | ||||||
|---|---|---|---|---|---|---|
| Bldg # | Vacant/Improved Land | Bldg Description | Year Built | SqFt | # Stories | |
|
1 |
Improved |
Ranch 1 Story |
1982 |
1,720 |
1 Stories |
|