|
|
|
| Larry Stein Oklahoma County Assessor (405) 713-1200 - Public Access System |
|
|
|
|
|
|
| Real Property Display - Screen Produced 3/23/2026 7:29:58 AM | ||||
|---|---|---|---|---|
| Account: R121041380 | Type: Residential | Location: |
2905 MORGAN TRL |
|
| Building Name/Occupant: |
|
EDMOND |
||
| Owner Name 1: | COMBS WILLIAM H |
Parcel PIN#: |
4729-12-104-1380 |
|
| Owner Name 2: | 1/4 section #: |
4729 |
||
| Owner Name 3: | Parent Acct: |
|
||
| Billing Address: | 2905 MORGAN TRL | Tax District: |
|
|
| City, State, Zip | EDMOND, OK 73012-6662 | School System: |
Edmond #12 |
|
|
Country: (If noted) |
Land Size: |
0.1641 Acres |
||
|
Land Value: 33,963 |
|
|||
|
Sect 33-T14N-R3W Qtr NE |
THE TRAILS SOUTH 8TH
Block
004
Lot
010
|
|||
| Full Legal Description: THE TRAILS SOUTH 8TH 004 010 |
| Photo & Sketch (if available) | Comp Sales (ordered by relevancy) |
|
||||||||||||||||||
|
||||||||||||||||||||
| Value History (*The County Treasurer 405-713-1300 posts & collects actual tax amounts. Contact information HERE) | |||||||||||||
|---|---|---|---|---|---|---|---|---|---|---|---|---|---|
| Year | Market Value | Taxable Mkt Value | Gross Assessed | Exemption | Net Assessed | Millage | Est. Tax | Tax Savings | |||||
|
2025 |
282,000 |
216,783 |
23,845 |
1,000 |
22,845 |
105.16 |
$2,402 |
$860 |
|||||
|
2024 |
279,000 |
210,469 |
23,151 |
1,000 |
22,151 |
105.03 |
$2,327 |
$897 |
|||||
|
2023 |
263,500 |
204,339 |
22,476 |
1,000 |
21,476 |
104.24 |
$2,239 |
$783 |
|||||
|
2022 |
229,500 |
198,388 |
21,822 |
1,000 |
20,822 |
104.64 |
$2,179 |
$463 |
|||||
|
2021 |
201,500 |
192,610 |
21,187 |
1,000 |
20,187 |
104.15 |
$2,102 |
$206 |
|||||
| Property Account Status/Adjustments/Exemptions | ||
|---|---|---|
| Account # | Exemption Description | Amount |
|
R121041380 |
3% Cap Homestead |
0 |
|
R121041380 |
Homestead |
1,000 |
| Property Deed Transaction History (Recorded in the County Clerk's Office) | |||||||
|---|---|---|---|---|---|---|---|
| Date | Type | Book | Page | Price | Grantor | Grantee | |
|
12/19/1991 |
|
Historical |
$50,000 |
RESOLUTION TRUST CORPORATION |
COMBS WILLIAM H |
||
|
11/21/1991 |
|
Historical |
$0 |
BENJAMIN FRANKLIN FEDERAL |
RESOLUTION TRUST CORPORATION |
||
|
11/1/1985 |
|
Historical |
$0 |
|
BENJAMIN FRANKLIN |
||
| Last Mailed Notice of Value (N.O.V.) Information/History | ||||||||
|---|---|---|---|---|---|---|---|---|
| Year | Date | Market Value | Taxable Market Value | Gross Assessed | Exemption | Net Assessed | ||
|
2026 |
02/06/2026 |
286,500 |
223,286 |
24,561 |
1,000 |
23,561 |
||
|
2025 |
01/31/2025 |
282,000 |
216,783 |
23,845 |
1,000 |
22,845 |
||
|
2024 |
01/22/2024 |
279,000 |
210,469 |
23,151 |
1,000 |
22,151 |
||
|
2023 |
01/23/2023 |
263,500 |
204,339 |
22,476 |
1,000 |
21,476 |
||
|
2022 |
02/22/2022 |
229,500 |
198,388 |
21,822 |
1,000 |
20,822 |
||
| Property Building Permit History | |||||||||||
|---|---|---|---|---|---|---|---|---|---|---|---|
| Issued | Permit # | Provided by | Bldg # | Description | Est Construction Cost | Status | |||||
| No Building Permit records returned. | |||||||||||
| Click button on building number to access detailed information: | ||||||
|---|---|---|---|---|---|---|
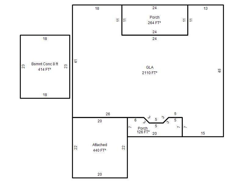
| Bldg # | Vacant/Improved Land | Bldg Description | Year Built | SqFt | # Stories | |
|
1 |
Improved |
Ranch 1 Story |
1983 |
2,110 |
1 Stories |
|