|
|
|
| Larry Stein Oklahoma County Assessor (405) 713-1200 - Public Access System |
|
|
|
|
|
|
| Real Property Display - Screen Produced 4/3/2026 9:15:08 PM | ||||
|---|---|---|---|---|
| Account: R123641010 | Type: Residential | Location: |
632 STAG TRL |
|
| Building Name/Occupant: |
|
EDMOND |
||
| Owner Name 1: | DD KRITTENBRINK PROPERTIES LLC |
Parcel PIN#: |
4729-12-364-1010 |
|
| Owner Name 2: | 1/4 section #: |
4729 |
||
| Owner Name 3: | Parent Acct: |
|
||
| Billing Address: | 611 TRAVIS LN | Tax District: |
|
|
| City, State, Zip | OKARCHE , OK 73762 | School System: |
Edmond #12 |
|
|
Country: (If noted) |
Land Size: |
0.0669 Acres |
||
|
Land Value: 19,683 |
|
|||
|
Sect 33-T14N-R3W Qtr NE |
DEERFIELD 1ST
Block
001
Lot
002
|
|||
| Full Legal Description: DEERFIELD 1ST 001 002 |
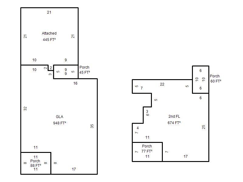
| Photo & Sketch (if available) | Comp Sales (ordered by relevancy) |
|
||||||||||||||||||
|
||||||||||||||||||||
| Value History (*The County Treasurer 405-713-1300 posts & collects actual tax amounts. Contact information HERE) | |||||||||||||
|---|---|---|---|---|---|---|---|---|---|---|---|---|---|
| Year | Market Value | Taxable Mkt Value | Gross Assessed | Exemption | Net Assessed | Millage | Est. Tax | Tax Savings | |||||
|
2026 |
182,000 |
182,000 |
20,020 |
0 |
20,020 |
105.16 |
$2,105 |
$0 |
|||||
|
2025 |
190,500 |
173,643 |
19,100 |
0 |
19,100 |
105.16 |
$2,009 |
$195 |
|||||
|
2024 |
192,500 |
165,375 |
18,191 |
0 |
18,191 |
105.03 |
$1,911 |
$313 |
|||||
|
2023 |
157,500 |
157,500 |
17,325 |
0 |
17,325 |
104.24 |
$1,806 |
$0 |
|||||
|
2022 |
146,000 |
142,275 |
15,650 |
0 |
15,650 |
104.64 |
$1,638 |
$43 |
|||||
| Property Account Status/Adjustments/Exemptions | ||
|---|---|---|
| Account # | Exemption Description | Amount |
|
R123641010 |
5% Capped Account |
0 |
| Property Deed Transaction History (Recorded in the County Clerk's Office) | ||||||||||
|---|---|---|---|---|---|---|---|---|---|---|
| Date | Type | Book | Page | Price | Grantor | Grantee | ||||
|
3/4/2022 |
|
Deeds |
$156,000 |
TILLER TIFFANY DIANE |
DD KRITTENBRINK PROPERTIES LLC |
|||||
|
2/19/2020 |
|
Deeds |
$135,000 |
HANNIFIN FRANCES A |
TILLER TIFFANY DIANE |
|||||
|
3/23/2018 |
|
Deeds |
$0 |
HANNIFIN SHAWN PATRICK |
HANNIFIN FRANCES A |
|||||
|
8/25/2015 |
|
Deeds |
$0 |
HANNIFIN SHAWN P & FRANCES A |
HANNIFIN FRANCES A |
|||||
|
6/15/2007 |
|
Deeds |
$108,000 |
HENDERSON KENNETH & A ROSE TRS HENDERSON KENNETH D & A ROSE |
HANNIFIN SHAWN P & FRANCES A |
|||||
| Last Mailed Notice of Value (N.O.V.) Information/History | ||||||||
|---|---|---|---|---|---|---|---|---|
| Year | Date | Market Value | Taxable Market Value | Gross Assessed | Exemption | Net Assessed | ||
|
2026 |
02/06/2026 |
182,000 |
182,000 |
20,020 |
0 |
20,020 |
||
|
2025 |
01/31/2025 |
190,500 |
173,643 |
19,100 |
0 |
19,100 |
||
|
2024 |
01/22/2024 |
192,500 |
165,375 |
18,191 |
0 |
18,191 |
||
|
2023 |
01/23/2023 |
157,500 |
157,500 |
17,325 |
0 |
17,325 |
||
|
2022 |
02/22/2022 |
146,000 |
142,275 |
15,650 |
0 |
15,650 |
||
| Property Building Permit History | |||||||||||
|---|---|---|---|---|---|---|---|---|---|---|---|
| Issued | Permit # | Provided by | Bldg # | Description | Est Construction Cost | Status | |||||
| No Building Permit records returned. | |||||||||||
| Click button on building number to access detailed information: | ||||||
|---|---|---|---|---|---|---|
| Bldg # | Vacant/Improved Land | Bldg Description | Year Built | SqFt | # Stories | |
|
1 |
Improved |
Townhouse Multiple Story |
1985 |
1,622 |
2 Stories |
|