|
|
|
| Larry Stein Oklahoma County Assessor (405) 713-1200 - Public Access System |
|
|
|
|
|
|
| Real Property Display - Screen Produced 4/2/2026 5:16:02 PM | ||||
|---|---|---|---|---|
| Account: R120061410 | Type: Residential | Location: |
2720 FAIRFIELD DR |
|
| Building Name/Occupant: |
|
EDMOND |
||
| Owner Name 1: | FAJARDO VILMA ALEJANDRA |
Parcel PIN#: |
4730-12-006-1410 |
|
| Owner Name 2: | FAJARDO ROSALES JENNIFER VANESSA | 1/4 section #: |
4730 |
|
| Owner Name 3: | Parent Acct: |
|
||
| Billing Address: | 2720 FAIRFIELD DR | Tax District: |
|
|
| City, State, Zip | EDMOND, OK 73012 | School System: |
Edmond #12 |
|
|
Country: (If noted) |
Land Size: |
0.1692 Acres |
||
|
Land Value: 30,221 |
|
|||
|
Sect 33-T14N-R3W Qtr SE |
FAIRFIELD ADDN SEC 2
Block
007
Lot
007
|
|||
| Full Legal Description: FAIRFIELD ADDN SEC 2 007 007 |
| Photo & Sketch (if available) | Comp Sales (ordered by relevancy) |
|
||||||||||||||||||
|
||||||||||||||||||||
| Value History (*The County Treasurer 405-713-1300 posts & collects actual tax amounts. Contact information HERE) | |||||||||||||
|---|---|---|---|---|---|---|---|---|---|---|---|---|---|
| Year | Market Value | Taxable Mkt Value | Gross Assessed | Exemption | Net Assessed | Millage | Est. Tax | Tax Savings | |||||
|
2026 |
263,500 |
263,500 |
28,985 |
0 |
28,985 |
105.16 |
$3,048 |
$0 |
|||||
|
2025 |
258,000 |
258,000 |
28,380 |
0 |
28,380 |
105.16 |
$2,984 |
$0 |
|||||
|
2024 |
262,000 |
246,750 |
27,142 |
0 |
27,142 |
105.03 |
$2,851 |
$176 |
|||||
|
2023 |
235,000 |
235,000 |
25,850 |
0 |
25,850 |
104.24 |
$2,695 |
$0 |
|||||
|
2022 |
224,000 |
224,000 |
24,640 |
0 |
24,640 |
104.64 |
$2,578 |
$0 |
|||||
| Property Account Status/Adjustments/Exemptions | ||
|---|---|---|
| Account # | Exemption Description | Amount |
|
R120061410 |
5% Capped Account |
0 |
| Property Deed Transaction History (Recorded in the County Clerk's Office) | ||||||||||
|---|---|---|---|---|---|---|---|---|---|---|
| Date | Type | Book | Page | Price | Grantor | Grantee | ||||
|
8/30/2021 |
|
Hmstd Off & |
$0 |
LEE DEREK M TRS |
LEE DEREK M TRS |
|||||
|
8/30/2021 |
|
Deeds |
$235,000 |
LEE DEREK M TRS |
FAJARDO VILMA ALEJANDRA |
|||||
|
9/4/2020 |
|
Deeds |
$0 |
LEE DEREK |
LEE DEREK M TRS |
|||||
|
1/15/2014 |
|
Deeds |
$160,000 |
ARWOOD CALVIN W & DEBRA I |
LEE DEREK |
|||||
|
7/7/1998 |
|
Historical |
$84,500 |
JESSE JOHN J & JULIE A |
ARWOOD CALVIN W & DEBRA I |
|||||
| Last Mailed Notice of Value (N.O.V.) Information/History | ||||||||
|---|---|---|---|---|---|---|---|---|
| Year | Date | Market Value | Taxable Market Value | Gross Assessed | Exemption | Net Assessed | ||
|
2026 |
02/06/2026 |
263,500 |
263,500 |
28,985 |
0 |
28,985 |
||
|
2025 |
01/31/2025 |
258,000 |
258,000 |
28,380 |
0 |
28,380 |
||
|
2024 |
01/22/2024 |
262,000 |
246,750 |
27,142 |
0 |
27,142 |
||
|
2023 |
01/23/2023 |
235,000 |
235,000 |
25,850 |
0 |
25,850 |
||
|
2022 |
02/22/2022 |
224,000 |
224,000 |
24,640 |
0 |
24,640 |
||
| Property Building Permit History | |||||||||||
|---|---|---|---|---|---|---|---|---|---|---|---|
| Issued | Permit # | Provided by | Bldg # | Description | Est Construction Cost | Status | |||||
| No Building Permit records returned. | |||||||||||
| Click button on building number to access detailed information: | ||||||
|---|---|---|---|---|---|---|
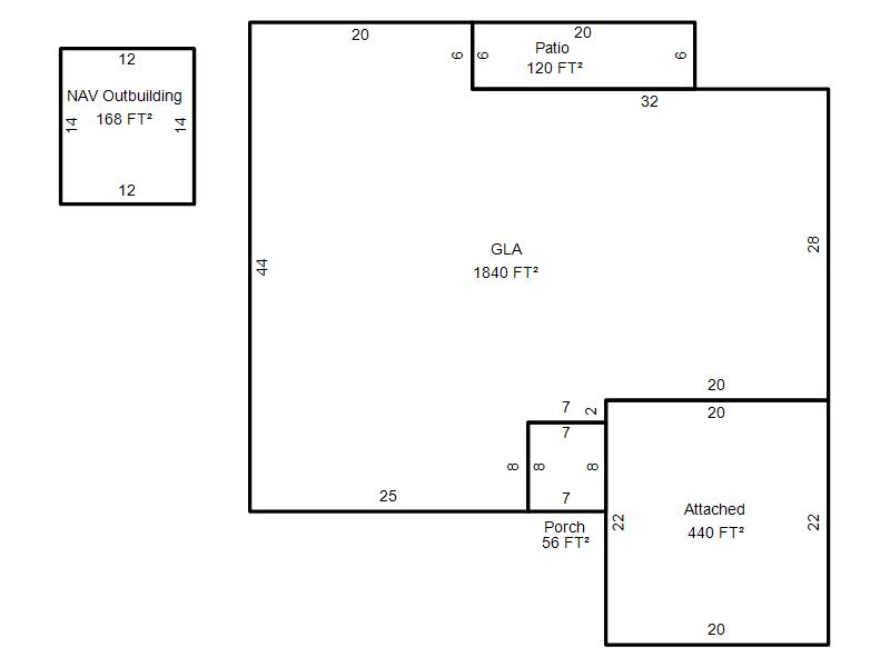
| Bldg # | Vacant/Improved Land | Bldg Description | Year Built | SqFt | # Stories | |
|
1 |
Improved |
Ranch 1 Story |
1982 |
1,840 |
1 Stories |
|