|
|
|
| Larry Stein Oklahoma County Assessor (405) 713-1200 - Public Access System |
|
|
|
|
|
|
| Real Property Display - Screen Produced 3/18/2026 7:15:16 PM | ||||
|---|---|---|---|---|
| Account: R151641060 | Type: Residential | Location: |
4528 SE 41ST ST |
|
| Building Name/Occupant: |
|
DEL CITY |
||
| Owner Name 1: | BOLLING TAKAKO S |
Parcel PIN#: |
1467-15-164-1060 |
|
| Owner Name 2: | 1/4 section #: |
1467 |
||
| Owner Name 3: | Parent Acct: |
|
||
| Billing Address: | 4528 SE 41ST ST | Tax District: |
|
|
| City, State, Zip | DEL CITY, OK 73115-3753 | School System: |
Mid-Del #52 |
|
|
Country: (If noted) |
Land Size: |
0.1653 Acres |
||
|
Land Value: 15,840 |
|
|||
|
Sect 17-T11N-R2W Qtr SW |
DEL MAR HILLS
Block
002
Lot
002
|
|||
| Full Legal Description: DEL MAR HILLS 002 002 |
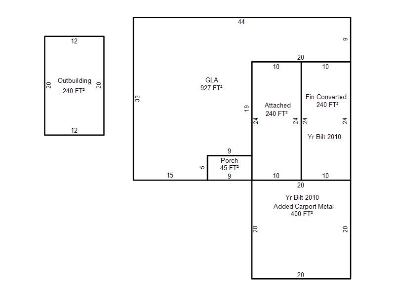
| Photo & Sketch (if available) | Comp Sales (ordered by relevancy) |
|
||||||||||||||||||
|
||||||||||||||||||||
| Value History (*The County Treasurer 405-713-1300 posts & collects actual tax amounts. Contact information HERE) | |||||||||||||
|---|---|---|---|---|---|---|---|---|---|---|---|---|---|
| Year | Market Value | Taxable Mkt Value | Gross Assessed | Exemption | Net Assessed | Millage | Est. Tax | Tax Savings | |||||
|
2025 |
148,000 |
53,977 |
5,937 |
1,000 |
4,937 |
114.72 |
$566 |
$1,301 |
|||||
|
2024 |
137,500 |
53,977 |
5,937 |
1,000 |
4,937 |
117.21 |
$579 |
$1,194 |
|||||
|
2023 |
120,500 |
53,977 |
5,937 |
1,000 |
4,937 |
112.46 |
$555 |
$935 |
|||||
|
2022 |
109,000 |
53,977 |
5,937 |
1,000 |
4,937 |
110.76 |
$547 |
$781 |
|||||
|
2021 |
91,500 |
53,977 |
5,937 |
1,000 |
4,937 |
114.70 |
$566 |
$588 |
|||||
| Property Account Status/Adjustments/Exemptions | ||
|---|---|---|
| Account # | Exemption Description | Amount |
|
R151641060 |
Freeze Senior Valuation |
0 |
|
R151641060 |
3% Cap Homestead |
0 |
|
R151641060 |
Homestead |
1,000 |
| Property Deed Transaction History (Recorded in the County Clerk's Office) | |||||||
|---|---|---|---|---|---|---|---|
| Date | Type | Book | Page | Price | Grantor | Grantee | |
|
1/12/2001 |
|
Deeds |
$0 |
BOLLING JAMES E & TAKAKO |
BOLLING TAKAKO S |
||
|
7/1/1973 |
|
Historical |
$0 |
|
BOLLING JAMES E & TAKAKO |
||
| Last Mailed Notice of Value (N.O.V.) Information/History | ||||||||
|---|---|---|---|---|---|---|---|---|
| Year | Date | Market Value | Taxable Market Value | Gross Assessed | Exemption | Net Assessed | ||
|
2025 |
01/31/2025 |
148,000 |
53,977 |
5,937 |
1,000 |
4,937 |
||
|
2024 |
01/22/2024 |
137,500 |
53,977 |
5,937 |
1,000 |
4,937 |
||
|
2023 |
01/23/2023 |
120,500 |
53,977 |
5,937 |
1,000 |
4,937 |
||
|
2022 |
02/22/2022 |
109,000 |
53,977 |
5,937 |
1,000 |
4,937 |
||
|
2021 |
02/24/2021 |
91,500 |
53,977 |
5,937 |
1,000 |
4,937 |
||
| Property Building Permit History | |||||||||||
|---|---|---|---|---|---|---|---|---|---|---|---|
| Issued | Permit # | Provided by | Bldg # | Description | Est Construction Cost | Status | |||||
| No Building Permit records returned. | |||||||||||
| Click button on building number to access detailed information: | ||||||
|---|---|---|---|---|---|---|
| Bldg # | Vacant/Improved Land | Bldg Description | Year Built | SqFt | # Stories | |
|
1 |
Improved |
Ranch 1 Story |
1966 |
927 |
1 Stories |
|