|
|
|
| Larry Stein Oklahoma County Assessor (405) 713-1200 - Public Access System |
|
|
|
|
|
|
| Real Property Display - Screen Produced 3/18/2026 7:14:14 PM | ||||
|---|---|---|---|---|
| Account: R151641095 | Type: Residential | Location: |
4316 SUNTANE CIR |
|
| Building Name/Occupant: |
|
DEL CITY |
||
| Owner Name 1: | NIKKEL KENNETH E & CHERRY |
Parcel PIN#: |
1467-15-164-1095 |
|
| Owner Name 2: | 1/4 section #: |
1467 |
||
| Owner Name 3: | Parent Acct: |
|
||
| Billing Address: | 4316 SUNTANE CIR | Tax District: |
|
|
| City, State, Zip | DEL CITY, OK 73115-3717 | School System: |
Mid-Del #52 |
|
|
Country: (If noted) |
Land Size: |
0.3163 Acres |
||
|
Land Value: 22,700 |
|
|||
|
Sect 17-T11N-R2W Qtr SW |
DEL MAR HILLS
Block
002
Lot
009
|
|||
| Full Legal Description: DEL MAR HILLS 002 009 |
| Photo & Sketch (if available) | Comp Sales (ordered by relevancy) |
|
||||||||||||||||||
|
||||||||||||||||||||
| Value History (*The County Treasurer 405-713-1300 posts & collects actual tax amounts. Contact information HERE) | |||||||||||||
|---|---|---|---|---|---|---|---|---|---|---|---|---|---|
| Year | Market Value | Taxable Mkt Value | Gross Assessed | Exemption | Net Assessed | Millage | Est. Tax | Tax Savings | |||||
|
2025 |
145,000 |
104,654 |
11,511 |
0 |
11,511 |
114.72 |
$1,321 |
$509 |
|||||
|
2024 |
136,000 |
99,671 |
10,963 |
0 |
10,963 |
117.21 |
$1,285 |
$468 |
|||||
|
2023 |
121,500 |
94,925 |
10,441 |
0 |
10,441 |
112.46 |
$1,174 |
$329 |
|||||
|
2022 |
109,000 |
90,405 |
9,944 |
0 |
9,944 |
110.76 |
$1,101 |
$227 |
|||||
|
2021 |
92,500 |
86,100 |
9,471 |
0 |
9,471 |
114.70 |
$1,086 |
$81 |
|||||
| Property Account Status/Adjustments/Exemptions | ||
|---|---|---|
| Account # | Exemption Description | Amount |
|
R151641095 |
5% Capped Account |
0 |
| Property Deed Transaction History (Recorded in the County Clerk's Office) | |||||||
|---|---|---|---|---|---|---|---|
| Date | Type | Book | Page | Price | Grantor | Grantee | |
|
5/4/1998 |
|
Historical |
$57,000 |
GANN DOROTHY W TRS ETAL |
NIKKEL KENNETH E & CHERRY |
||
|
12/2/1992 |
|
Historical |
$0 |
GANN DOROTHY W |
GANN DOROTHY W TRS ETAL |
||
|
2/1/1973 |
|
Historical |
$0 |
|
GANN DOROTHY W |
||
| Last Mailed Notice of Value (N.O.V.) Information/History | ||||||||
|---|---|---|---|---|---|---|---|---|
| Year | Date | Market Value | Taxable Market Value | Gross Assessed | Exemption | Net Assessed | ||
|
2026 |
02/06/2026 |
143,000 |
109,886 |
12,086 |
0 |
12,086 |
||
|
2025 |
01/31/2025 |
145,000 |
104,654 |
11,511 |
0 |
11,511 |
||
|
2024 |
01/22/2024 |
136,000 |
99,671 |
10,963 |
0 |
10,963 |
||
|
2023 |
01/23/2023 |
121,500 |
94,925 |
10,441 |
0 |
10,441 |
||
|
2022 |
02/22/2022 |
109,000 |
90,405 |
9,944 |
0 |
9,944 |
||
| Property Building Permit History | |||||||||||
|---|---|---|---|---|---|---|---|---|---|---|---|
| Issued | Permit # | Provided by | Bldg # | Description | Est Construction Cost | Status | |||||
| No Building Permit records returned. | |||||||||||
| Click button on building number to access detailed information: | ||||||
|---|---|---|---|---|---|---|
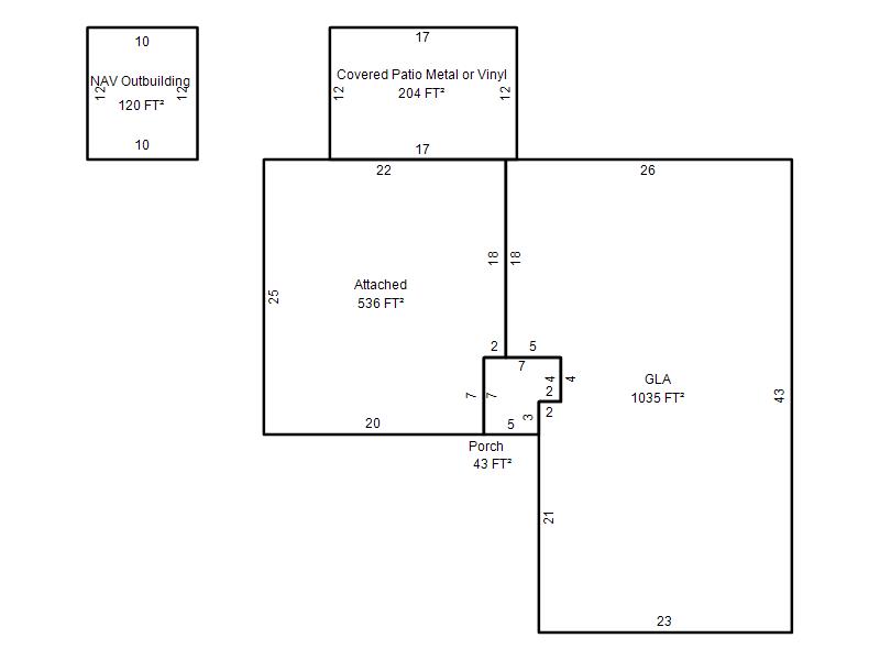
| Bldg # | Vacant/Improved Land | Bldg Description | Year Built | SqFt | # Stories | |
|
1 |
Improved |
Ranch 1 Story |
1966 |
1,035 |
1 Stories |
|