|
|
|
| Larry Stein Oklahoma County Assessor (405) 713-1200 - Public Access System |
|
|
|
|
|
|
| Real Property Display - Screen Produced 3/18/2026 7:15:22 PM | ||||
|---|---|---|---|---|
| Account: R151642040 | Type: Residential | Location: |
4329 SUNTANE RD |
|
| Building Name/Occupant: |
|
DEL CITY |
||
| Owner Name 1: | ALESHIRE DAVID |
Parcel PIN#: |
1467-15-164-2040 |
|
| Owner Name 2: | 1/4 section #: |
1467 |
||
| Owner Name 3: | Parent Acct: |
|
||
| Billing Address: | 205 MEADOWS LN | Tax District: |
|
|
| City, State, Zip | NEWPORT, NC 28570 | School System: |
Mid-Del #52 |
|
|
Country: (If noted) |
UNITED STATES |
Land Size: |
0.1653 Acres |
|
|
Land Value: 15,840 |
|
|||
|
Sect 17-T11N-R2W Qtr SW |
DEL MAR HILLS
Block
002
Lot
018
|
|||
| Full Legal Description: DEL MAR HILLS 002 018 |
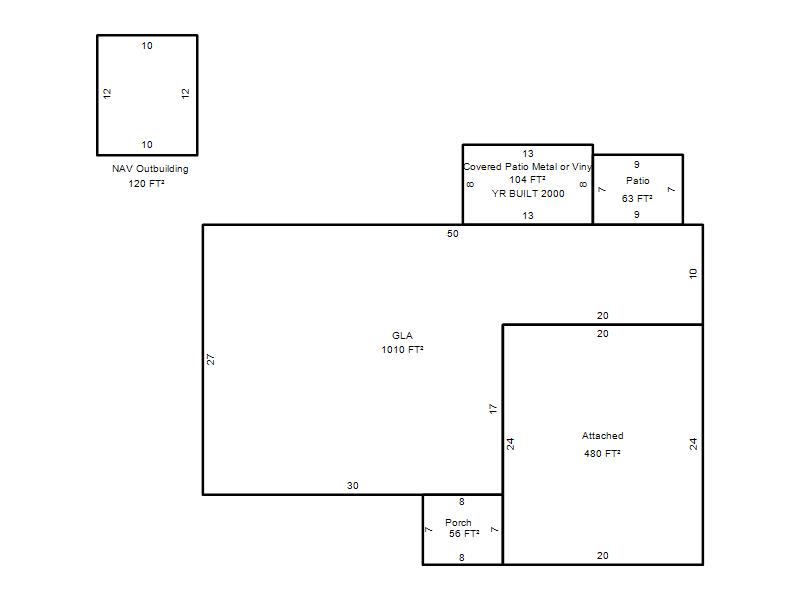
| Photo & Sketch (if available) | Comp Sales (ordered by relevancy) |
|
||||||||||||||||||
|
||||||||||||||||||||
| Value History (*The County Treasurer 405-713-1300 posts & collects actual tax amounts. Contact information HERE) | |||||||||||||
|---|---|---|---|---|---|---|---|---|---|---|---|---|---|
| Year | Market Value | Taxable Mkt Value | Gross Assessed | Exemption | Net Assessed | Millage | Est. Tax | Tax Savings | |||||
|
2025 |
139,500 |
99,548 |
10,949 |
0 |
10,949 |
114.72 |
$1,256 |
$504 |
|||||
|
2024 |
132,500 |
94,808 |
10,428 |
0 |
10,428 |
117.21 |
$1,222 |
$486 |
|||||
|
2023 |
117,500 |
90,294 |
9,931 |
0 |
9,931 |
112.46 |
$1,117 |
$337 |
|||||
|
2022 |
105,000 |
85,995 |
9,459 |
0 |
9,459 |
110.76 |
$1,048 |
$232 |
|||||
|
2021 |
89,000 |
81,900 |
9,009 |
0 |
9,009 |
114.70 |
$1,033 |
$90 |
|||||
| Property Account Status/Adjustments/Exemptions | ||||||
|---|---|---|---|---|---|---|
| Account # | Exemption Description | Amount | ||||
| No adjustment/exemption records returned. | ||||||
| Property Deed Transaction History (Recorded in the County Clerk's Office) | ||||||||||
|---|---|---|---|---|---|---|---|---|---|---|
| Date | Type | Book | Page | Price | Grantor | Grantee | ||||
|
1/4/2021 |
|
Hmstd Off & |
$0 |
D & C DWELLINGS III LLC |
ALESHIRE DAVID |
|||||
|
5/24/2019 |
|
Hmstd Off & |
$0 |
ALESHIRE DAVID |
D & C DWELLINGS III LLC |
|||||
|
10/25/2018 |
|
Deeds |
$77,500 |
TA INVESTMENT HOLDINGS LLC |
ALESHIRE DAVID |
|||||
|
9/3/2014 |
|
Deeds |
$51,000 |
SECRETARY OF VETERANS AFFAIRS |
TA INVESTMENT HOLDINGS LLC |
|||||
|
5/6/2014 |
|
Other |
$0 |
RAY MACK |
SECRETARY OF VETERANS AFFAIRS |
|||||
| Last Mailed Notice of Value (N.O.V.) Information/History | ||||||||
|---|---|---|---|---|---|---|---|---|
| Year | Date | Market Value | Taxable Market Value | Gross Assessed | Exemption | Net Assessed | ||
|
2026 |
02/06/2026 |
137,000 |
104,525 |
11,497 |
0 |
11,497 |
||
|
2025 |
01/31/2025 |
139,500 |
99,548 |
10,949 |
0 |
10,949 |
||
|
2024 |
01/22/2024 |
132,500 |
94,808 |
10,428 |
0 |
10,428 |
||
|
2023 |
01/23/2023 |
117,500 |
90,294 |
9,931 |
0 |
9,931 |
||
|
2022 |
02/22/2022 |
105,000 |
85,995 |
9,459 |
0 |
9,459 |
||
| Property Building Permit History | |||||||||||
|---|---|---|---|---|---|---|---|---|---|---|---|
| Issued | Permit # | Provided by | Bldg # | Description | Est Construction Cost | Status | |||||
| No Building Permit records returned. | |||||||||||
| Click button on building number to access detailed information: | ||||||
|---|---|---|---|---|---|---|
| Bldg # | Vacant/Improved Land | Bldg Description | Year Built | SqFt | # Stories | |
|
1 |
Improved |
Ranch 1 Story |
1967 |
1,010 |
1 Stories |
|