|
|
|
| Larry Stein Oklahoma County Assessor (405) 713-1200 - Public Access System |
|
|
|
|
|
|
| Real Property Display - Screen Produced 3/18/2026 7:15:22 PM | ||||
|---|---|---|---|---|
| Account: R151643065 | Type: Residential | Location: |
4324 EPPERLY DR |
|
| Building Name/Occupant: |
|
DEL CITY |
||
| Owner Name 1: | GREER DESIREE A |
Parcel PIN#: |
1467-15-164-3065 |
|
| Owner Name 2: | 1/4 section #: |
1467 |
||
| Owner Name 3: | Parent Acct: |
|
||
| Billing Address: | 4324 EPPERLY DR | Tax District: |
|
|
| City, State, Zip | DEL CITY, OK 73115-3728 | School System: |
Mid-Del #52 |
|
|
Country: (If noted) |
Land Size: |
0.2029 Acres |
||
|
Land Value: 19,448 |
|
|||
|
Sect 17-T11N-R2W Qtr SW |
DEL MAR HILLS
Block
002
Lot
042
|
|||
| Full Legal Description: DEL MAR HILLS 002 042 |
| Photo & Sketch (if available) | Comp Sales (ordered by relevancy) |
|
||||||||||||||||||
|
||||||||||||||||||||
| Value History (*The County Treasurer 405-713-1300 posts & collects actual tax amounts. Contact information HERE) | |||||||||||||
|---|---|---|---|---|---|---|---|---|---|---|---|---|---|
| Year | Market Value | Taxable Mkt Value | Gross Assessed | Exemption | Net Assessed | Millage | Est. Tax | Tax Savings | |||||
|
2025 |
144,500 |
92,161 |
10,137 |
1,000 |
9,137 |
114.72 |
$1,048 |
$775 |
|||||
|
2024 |
134,500 |
89,477 |
9,841 |
1,000 |
8,841 |
117.21 |
$1,036 |
$698 |
|||||
|
2023 |
119,000 |
86,871 |
9,555 |
1,000 |
8,555 |
112.46 |
$962 |
$510 |
|||||
|
2022 |
106,000 |
84,341 |
9,277 |
1,000 |
8,277 |
110.76 |
$917 |
$375 |
|||||
|
2021 |
90,000 |
81,885 |
9,007 |
1,000 |
8,007 |
114.70 |
$918 |
$217 |
|||||
| Property Account Status/Adjustments/Exemptions | ||
|---|---|---|
| Account # | Exemption Description | Amount |
|
R151643065 |
3% Cap Homestead |
0 |
|
R151643065 |
Homestead |
1,000 |
| Property Deed Transaction History (Recorded in the County Clerk's Office) | |||||||
|---|---|---|---|---|---|---|---|
| Date | Type | Book | Page | Price | Grantor | Grantee | |
|
9/8/2009 |
|
Deeds |
$70,000 |
DORAN RICHARD A & PAMELA J |
GREER DESIREE A |
||
|
5/22/1992 |
|
Historical |
$45,000 |
WASHBURN KOLETA H |
DORAN RICHARD A & PAMELA J |
||
|
4/5/1990 |
|
Historical |
$37,000 |
BRIDGES R V & NANCY G |
WASHBURN KOLETA H |
||
|
10/1/1978 |
|
Historical |
$0 |
|
BRIDGES R V & NANCY G |
||
| Last Mailed Notice of Value (N.O.V.) Information/History | ||||||||
|---|---|---|---|---|---|---|---|---|
| Year | Date | Market Value | Taxable Market Value | Gross Assessed | Exemption | Net Assessed | ||
|
2026 |
02/06/2026 |
141,500 |
94,925 |
10,441 |
1,000 |
9,441 |
||
|
2025 |
01/31/2025 |
144,500 |
92,161 |
10,137 |
1,000 |
9,137 |
||
|
2024 |
01/22/2024 |
134,500 |
89,477 |
9,841 |
1,000 |
8,841 |
||
|
2023 |
01/23/2023 |
119,000 |
86,871 |
9,555 |
1,000 |
8,555 |
||
|
2022 |
02/22/2022 |
106,000 |
84,341 |
9,277 |
1,000 |
8,277 |
||
| Property Building Permit History | |||||||||||
|---|---|---|---|---|---|---|---|---|---|---|---|
| Issued | Permit # | Provided by | Bldg # | Description | Est Construction Cost | Status | |||||
| No Building Permit records returned. | |||||||||||
| Click button on building number to access detailed information: | ||||||
|---|---|---|---|---|---|---|
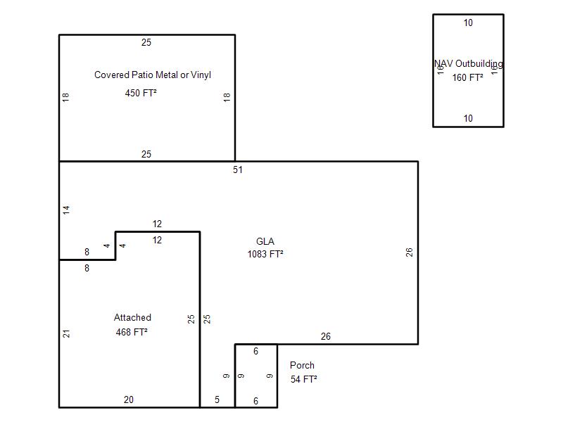
| Bldg # | Vacant/Improved Land | Bldg Description | Year Built | SqFt | # Stories | |
|
1 |
Improved |
Ranch 1 Story |
1966 |
1,083 |
1 Stories |
|