|
|
|
| Larry Stein Oklahoma County Assessor (405) 713-1200 - Public Access System |
|
|
|
|
|
|
| Real Property Display - Screen Produced 3/18/2026 7:13:48 PM | ||||
|---|---|---|---|---|
| Account: R151643080 | Type: Residential | Location: |
4400 EPPERLY DR |
|
| Building Name/Occupant: |
|
DEL CITY |
||
| Owner Name 1: | HERNANDEZ ANTHONY M |
Parcel PIN#: |
1467-15-164-3080 |
|
| Owner Name 2: | 1/4 section #: |
1467 |
||
| Owner Name 3: | Parent Acct: |
|
||
| Billing Address: | 4400 EPPERLY DR | Tax District: |
|
|
| City, State, Zip | DEL CITY, OK 73115-3730 | School System: |
Mid-Del #52 |
|
|
Country: (If noted) |
Land Size: |
0.2179 Acres |
||
|
Land Value: 20,878 |
|
|||
|
Sect 17-T11N-R2W Qtr SW |
DEL MAR HILLS
Block
002
Lot
045
|
|||
| Full Legal Description: DEL MAR HILLS 002 045 |
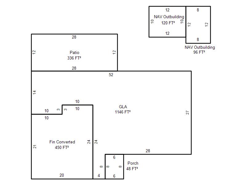
| Photo & Sketch (if available) | Comp Sales (ordered by relevancy) |
|
||||||||||||||||||
|
||||||||||||||||||||
| Value History (*The County Treasurer 405-713-1300 posts & collects actual tax amounts. Contact information HERE) | |||||||||||||
|---|---|---|---|---|---|---|---|---|---|---|---|---|---|
| Year | Market Value | Taxable Mkt Value | Gross Assessed | Exemption | Net Assessed | Millage | Est. Tax | Tax Savings | |||||
|
2025 |
155,500 |
110,397 |
12,143 |
0 |
12,143 |
114.72 |
$1,393 |
$569 |
|||||
|
2024 |
146,000 |
105,140 |
11,564 |
0 |
11,564 |
117.21 |
$1,356 |
$527 |
|||||
|
2023 |
128,500 |
100,134 |
11,014 |
0 |
11,014 |
112.46 |
$1,239 |
$351 |
|||||
|
2022 |
115,500 |
95,366 |
10,489 |
0 |
10,489 |
110.76 |
$1,162 |
$245 |
|||||
|
2021 |
97,000 |
90,825 |
9,990 |
0 |
9,990 |
114.70 |
$1,146 |
$78 |
|||||
| Property Account Status/Adjustments/Exemptions | ||
|---|---|---|
| Account # | Exemption Description | Amount |
|
R151643080 |
5% Capped Account |
0 |
| Property Deed Transaction History (Recorded in the County Clerk's Office) | ||||||||||
|---|---|---|---|---|---|---|---|---|---|---|
| Date | Type | Book | Page | Price | Grantor | Grantee | ||||
|
4/2/2015 |
|
Deeds |
$85,000 |
HOLBROOK SMITH HALEY MICHELLE |
HERNANDEZ ANTHONY M |
|||||
|
7/13/2011 |
|
Other |
$0 |
SECRETARY OF HOUSING & URBAN DEV |
HOLBROOK SMITH HALEY MICHELLE |
|||||
|
12/13/2010 |
|
Hmstd Off & |
$0 |
WILLIAMSON SHAWN & TAMMY |
SECRETARY OF HOUSING & URBAN DEV |
|||||
|
7/18/2003 |
|
Deeds |
$75,000 |
LAPACH WILLIAM L JR & DEANNA L |
WILLIAMSON SHAWN & TAMMY |
|||||
|
3/19/1993 |
|
Historical |
$0 |
LAPACH WILLIAM L & DEANNA L |
LAPACH WILLIAM L JR & DEANNA L |
|||||
| Last Mailed Notice of Value (N.O.V.) Information/History | ||||||||
|---|---|---|---|---|---|---|---|---|
| Year | Date | Market Value | Taxable Market Value | Gross Assessed | Exemption | Net Assessed | ||
|
2026 |
02/06/2026 |
149,500 |
115,916 |
12,750 |
0 |
12,750 |
||
|
2025 |
01/31/2025 |
155,500 |
110,397 |
12,143 |
0 |
12,143 |
||
|
2024 |
01/22/2024 |
146,000 |
105,140 |
11,564 |
0 |
11,564 |
||
|
2023 |
01/23/2023 |
128,500 |
100,134 |
11,014 |
0 |
11,014 |
||
|
2022 |
02/22/2022 |
115,500 |
95,366 |
10,489 |
0 |
10,489 |
||
| Property Building Permit History | ||||||
|---|---|---|---|---|---|---|
| Issued | Permit # | Provided by | Bldg # | Description | Est Construction Cost | Status |
|
8/4/1998 |
10248877 |
DEL CITY |
1 |
Remodeled |
2,000 |
Inactive |
| Click button on building number to access detailed information: | ||||||
|---|---|---|---|---|---|---|
| Bldg # | Vacant/Improved Land | Bldg Description | Year Built | SqFt | # Stories | |
|
1 |
Improved |
Ranch 1 Story |
1966 |
1,146 |
1 Stories |
|