|
|
|
| Larry Stein Oklahoma County Assessor (405) 713-1200 - Public Access System |
|
|
|
|
|
|
| Real Property Display - Screen Produced 3/20/2026 11:25:50 PM | ||||
|---|---|---|---|---|
| Account: R183421580 | Type: Residential | Location: |
1320 GREENFIELD DR |
|
| Building Name/Occupant: |
|
EDMOND |
||
| Owner Name 1: | JAMES CHESTER M JR TRS |
Parcel PIN#: |
4730-18-342-1580 |
|
| Owner Name 2: | JAMES CHESTER M JR TRUST | 1/4 section #: |
4730 |
|
| Owner Name 3: | Parent Acct: |
|
||
| Billing Address: | 3672 NE 20 ST | Tax District: |
|
|
| City, State, Zip | KINGMAN, KS 67068-8228 | School System: |
Edmond #12 |
|
|
Country: (If noted) |
Land Size: |
0.1680 Acres |
||
|
Land Value: 31,093 |
|
|||
|
Sect 33-T14N-R3W Qtr SE |
FAIRFIELD ADD TO EDMOND
Block
003
Lot
043
|
|||
| Full Legal Description: FAIRFIELD ADD TO EDMOND 003 043 |
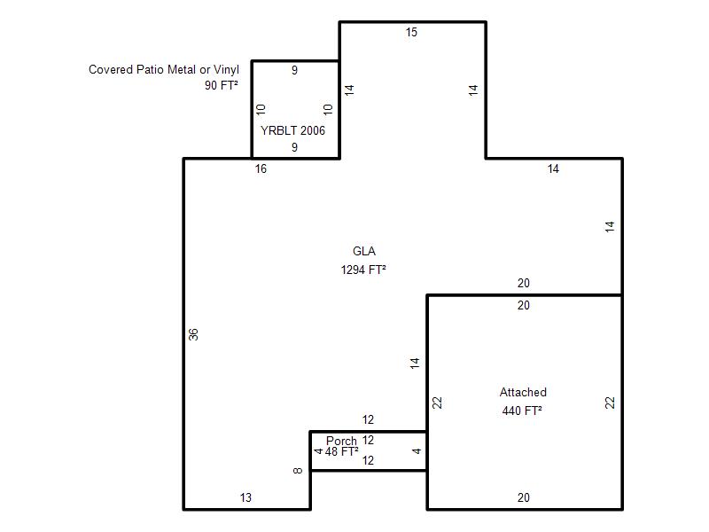
| Photo & Sketch (if available) | Comp Sales (ordered by relevancy) |
|
||||||||||||||||||
|
||||||||||||||||||||
| Value History (*The County Treasurer 405-713-1300 posts & collects actual tax amounts. Contact information HERE) | |||||||||||||
|---|---|---|---|---|---|---|---|---|---|---|---|---|---|
| Year | Market Value | Taxable Mkt Value | Gross Assessed | Exemption | Net Assessed | Millage | Est. Tax | Tax Savings | |||||
|
2025 |
204,500 |
172,295 |
18,952 |
0 |
18,952 |
105.16 |
$1,993 |
$373 |
|||||
|
2024 |
202,000 |
164,091 |
18,049 |
0 |
18,049 |
105.03 |
$1,896 |
$438 |
|||||
|
2023 |
192,000 |
156,278 |
17,190 |
0 |
17,190 |
104.24 |
$1,792 |
$410 |
|||||
|
2022 |
168,500 |
148,837 |
16,371 |
0 |
16,371 |
104.64 |
$1,713 |
$226 |
|||||
|
2021 |
147,500 |
141,750 |
15,592 |
0 |
15,592 |
104.15 |
$1,624 |
$66 |
|||||
| Property Account Status/Adjustments/Exemptions | ||
|---|---|---|
| Account # | Exemption Description | Amount |
|
R183421580 |
5% Capped Account |
0 |
| Property Deed Transaction History (Recorded in the County Clerk's Office) | |||||||
|---|---|---|---|---|---|---|---|
| Date | Type | Book | Page | Price | Grantor | Grantee | |
|
10/11/2010 |
|
Deeds |
$0 |
JAMES CHESTER M & SHARON F JAMES SARAH KATHRYN |
JAMES CHESTER M JR TRS |
||
|
6/2/1992 |
|
Historical |
$50,500 |
ROBERTSON DAVID BRUCE |
JAMES CHESTER M & SHARON F |
||
|
1/13/1988 |
|
Historical |
$48,000 |
SANGER CHARLES DUNNING |
ROBERTSON DAVID BRUCE |
||
|
10/1/1986 |
|
Historical |
$0 |
WILSON GARY A & ELIZABETH N |
SANGER CHARLES DUNNING |
||
|
12/1/1980 |
|
Historical |
$0 |
|
WILSON GARY A & ELIZABETH N |
||
| Last Mailed Notice of Value (N.O.V.) Information/History | ||||||||
|---|---|---|---|---|---|---|---|---|
| Year | Date | Market Value | Taxable Market Value | Gross Assessed | Exemption | Net Assessed | ||
|
2026 |
02/06/2026 |
207,000 |
180,909 |
19,899 |
0 |
19,899 |
||
|
2025 |
01/31/2025 |
204,500 |
172,295 |
18,952 |
0 |
18,952 |
||
|
2024 |
01/22/2024 |
202,000 |
164,091 |
18,049 |
0 |
18,049 |
||
|
2023 |
01/23/2023 |
192,000 |
156,278 |
17,190 |
0 |
17,190 |
||
|
2022 |
02/22/2022 |
168,500 |
148,837 |
16,371 |
0 |
16,371 |
||
| Property Building Permit History | |||||||||||
|---|---|---|---|---|---|---|---|---|---|---|---|
| Issued | Permit # | Provided by | Bldg # | Description | Est Construction Cost | Status | |||||
| No Building Permit records returned. | |||||||||||
| Click button on building number to access detailed information: | ||||||
|---|---|---|---|---|---|---|
| Bldg # | Vacant/Improved Land | Bldg Description | Year Built | SqFt | # Stories | |
|
1 |
Improved |
Ranch 1 Story |
1987 |
1,294 |
1 Stories |
|