|
|
|
| Larry Stein Oklahoma County Assessor (405) 713-1200 - Public Access System |
|
|
|
|
|
|
| Real Property Display - Screen Produced 3/18/2026 7:14:10 PM | ||||
|---|---|---|---|---|
| Account: R151644075 | Type: Residential | Location: |
4232 SUNNYVIEW DR |
|
| Building Name/Occupant: |
|
DEL CITY |
||
| Owner Name 1: | PHELKRATOKE WASAWAT |
Parcel PIN#: |
1467-15-164-4075 |
|
| Owner Name 2: | 1/4 section #: |
1467 |
||
| Owner Name 3: | Parent Acct: |
|
||
| Billing Address: | 4232 SUNNYVIEW DR | Tax District: |
|
|
| City, State, Zip | DEL CITY, OK 73115-3746 | School System: |
Mid-Del #52 |
|
|
Country: (If noted) |
Land Size: |
0.1763 Acres |
||
|
Land Value: 16,896 |
|
|||
|
Sect 17-T11N-R2W Qtr SW |
DEL MAR HILLS
Block
003
Lot
014
|
|||
| Full Legal Description: DEL MAR HILLS 003 014 |
| Photo & Sketch (if available) | Comp Sales (ordered by relevancy) |
|
||||||||||||||||||
|
||||||||||||||||||||
| Value History (*The County Treasurer 405-713-1300 posts & collects actual tax amounts. Contact information HERE) | |||||||||||||
|---|---|---|---|---|---|---|---|---|---|---|---|---|---|
| Year | Market Value | Taxable Mkt Value | Gross Assessed | Exemption | Net Assessed | Millage | Est. Tax | Tax Savings | |||||
|
2025 |
156,500 |
99,696 |
10,966 |
1,000 |
9,966 |
114.72 |
$1,143 |
$832 |
|||||
|
2024 |
149,000 |
96,793 |
10,647 |
1,000 |
9,647 |
117.21 |
$1,131 |
$790 |
|||||
|
2023 |
130,000 |
93,974 |
10,337 |
1,000 |
9,337 |
112.46 |
$1,050 |
$558 |
|||||
|
2022 |
117,000 |
91,237 |
10,035 |
1,000 |
9,035 |
110.76 |
$1,001 |
$425 |
|||||
|
2021 |
98,000 |
88,580 |
9,743 |
1,000 |
8,743 |
114.70 |
$1,003 |
$234 |
|||||
| Property Account Status/Adjustments/Exemptions | ||
|---|---|---|
| Account # | Exemption Description | Amount |
|
R151644075 |
3% Cap Homestead |
0 |
|
R151644075 |
Homestead |
1,000 |
| Property Deed Transaction History (Recorded in the County Clerk's Office) | |||||||
|---|---|---|---|---|---|---|---|
| Date | Type | Book | Page | Price | Grantor | Grantee | |
|
12/9/2010 |
|
Deeds |
$79,000 |
FORT JOHN T JR & IRMA M |
PHELKRATOKE WASAWAT |
||
|
6/13/1991 |
|
Historical |
$48,500 |
FINCH JAMES W |
FORT JOHN T JR & IRMA M |
||
|
10/1/1981 |
|
Historical |
$0 |
|
FINCH JAMES W |
||
| Last Mailed Notice of Value (N.O.V.) Information/History | ||||||||
|---|---|---|---|---|---|---|---|---|
| Year | Date | Market Value | Taxable Market Value | Gross Assessed | Exemption | Net Assessed | ||
|
2026 |
02/06/2026 |
153,000 |
102,686 |
11,294 |
1,000 |
10,294 |
||
|
2025 |
01/31/2025 |
156,500 |
99,696 |
10,966 |
1,000 |
9,966 |
||
|
2024 |
01/22/2024 |
149,000 |
96,793 |
10,647 |
1,000 |
9,647 |
||
|
2023 |
01/23/2023 |
130,000 |
93,974 |
10,337 |
1,000 |
9,337 |
||
|
2022 |
02/22/2022 |
117,000 |
91,237 |
10,035 |
1,000 |
9,035 |
||
| Property Building Permit History | |||||||||||
|---|---|---|---|---|---|---|---|---|---|---|---|
| Issued | Permit # | Provided by | Bldg # | Description | Est Construction Cost | Status | |||||
| No Building Permit records returned. | |||||||||||
| Click button on building number to access detailed information: | ||||||
|---|---|---|---|---|---|---|
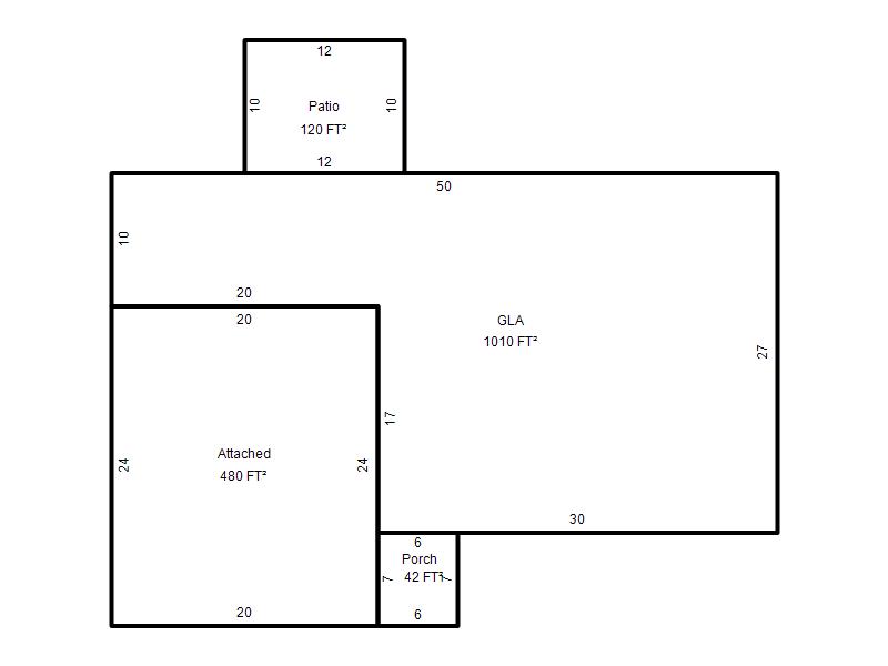
| Bldg # | Vacant/Improved Land | Bldg Description | Year Built | SqFt | # Stories | |
|
1 |
Improved |
Ranch 1 Story |
1966 |
1,010 |
1 Stories |
|