|
|
|
| Larry Stein Oklahoma County Assessor (405) 713-1200 - Public Access System |
|
|
|
|
|
|
| Real Property Display - Screen Produced 3/18/2026 7:20:01 PM | ||||
|---|---|---|---|---|
| Account: R151644085 | Type: Residential | Location: |
4224 SUNNYVIEW DR |
|
| Building Name/Occupant: |
|
DEL CITY |
||
| Owner Name 1: | MARRERO AIMEE X |
Parcel PIN#: |
1467-15-164-4085 |
|
| Owner Name 2: | 1/4 section #: |
1467 |
||
| Owner Name 3: | Parent Acct: |
|
||
| Billing Address: | 4224 SUNNYVIEW DR | Tax District: |
|
|
| City, State, Zip | DEL CITY , OK 73115-3748 | School System: |
Mid-Del #52 |
|
|
Country: (If noted) |
Land Size: |
0.1865 Acres |
||
|
Land Value: 17,875 |
|
|||
|
Sect 17-T11N-R2W Qtr SW |
DEL MAR HILLS
Block
003
Lot
016
|
|||
| Full Legal Description: DEL MAR HILLS 003 016 |
| Photo & Sketch (if available) | Comp Sales (ordered by relevancy) |
|
||||||||||||||||||
|
||||||||||||||||||||
| Value History (*The County Treasurer 405-713-1300 posts & collects actual tax amounts. Contact information HERE) | |||||||||||||
|---|---|---|---|---|---|---|---|---|---|---|---|---|---|
| Year | Market Value | Taxable Mkt Value | Gross Assessed | Exemption | Net Assessed | Millage | Est. Tax | Tax Savings | |||||
|
2025 |
159,000 |
99,437 |
10,937 |
1,000 |
9,937 |
114.72 |
$1,140 |
$866 |
|||||
|
2024 |
151,000 |
96,541 |
10,619 |
1,000 |
9,619 |
117.21 |
$1,128 |
$819 |
|||||
|
2023 |
131,500 |
93,730 |
10,310 |
1,000 |
9,310 |
112.46 |
$1,047 |
$580 |
|||||
|
2022 |
91,000 |
91,000 |
10,010 |
1,000 |
9,010 |
110.76 |
$998 |
$111 |
|||||
|
2021 |
99,000 |
93,730 |
10,310 |
1,000 |
9,310 |
114.70 |
$1,068 |
$181 |
|||||
| Property Account Status/Adjustments/Exemptions | ||
|---|---|---|
| Account # | Exemption Description | Amount |
|
R151644085 |
3% Cap Homestead |
0 |
|
R151644085 |
Homestead |
1,000 |
| Property Deed Transaction History (Recorded in the County Clerk's Office) | ||||||||||
|---|---|---|---|---|---|---|---|---|---|---|
| Date | Type | Book | Page | Price | Grantor | Grantee | ||||
|
4/2/2019 |
|
Deeds |
$95,000 |
NOLEN INVESTMENTS LLC |
MARRERO AIMEE X |
|||||
|
10/22/2018 |
|
Deeds |
$65,000 |
RAWSON ROBBY L |
NOLEN INVESTMENTS LLC |
|||||
|
7/12/2018 |
|
Deeds |
$0 |
RAWSON ROBBY L |
RAWSON ROBBY L |
|||||
|
10/29/2013 |
|
Deeds |
$48,500 |
DEUTSCHE BANK NATIONAL TRUST CO AS TRS |
RAWSON ROBBY L |
|||||
|
5/7/2013 |
|
Hmstd Off & |
$0 |
KEENE IVA ROSE |
DEUTSCHE BANK NATIONAL TRUST CO AS TRS |
|||||
| Last Mailed Notice of Value (N.O.V.) Information/History | ||||||||
|---|---|---|---|---|---|---|---|---|
| Year | Date | Market Value | Taxable Market Value | Gross Assessed | Exemption | Net Assessed | ||
|
2026 |
02/06/2026 |
155,500 |
102,420 |
11,266 |
1,000 |
10,266 |
||
|
2025 |
01/31/2025 |
159,000 |
99,437 |
10,937 |
1,000 |
9,937 |
||
|
2024 |
01/22/2024 |
151,000 |
96,541 |
10,619 |
1,000 |
9,619 |
||
|
2023 |
01/23/2023 |
131,500 |
93,730 |
10,310 |
1,000 |
9,310 |
||
|
2021 |
02/24/2021 |
99,000 |
93,730 |
10,310 |
1,000 |
9,310 |
||
| Property Building Permit History | |||||||||||
|---|---|---|---|---|---|---|---|---|---|---|---|
| Issued | Permit # | Provided by | Bldg # | Description | Est Construction Cost | Status | |||||
| No Building Permit records returned. | |||||||||||
| Click button on building number to access detailed information: | ||||||
|---|---|---|---|---|---|---|
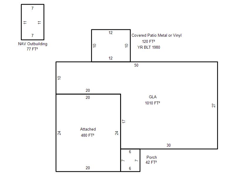
| Bldg # | Vacant/Improved Land | Bldg Description | Year Built | SqFt | # Stories | |
|
1 |
Improved |
Ranch 1 Story |
1965 |
1,010 |
1 Stories |
|