|
|
|
| Larry Stein Oklahoma County Assessor (405) 713-1200 - Public Access System |
|
|
|
|
|
|
| Real Property Display - Screen Produced 3/18/2026 7:14:10 PM | ||||
|---|---|---|---|---|
| Account: R151645045 | Type: Residential | Location: |
4221 SUNNYVIEW DR |
|
| Building Name/Occupant: |
|
DEL CITY |
||
| Owner Name 1: | OHRENBERG LAURA D |
Parcel PIN#: |
1467-15-164-5045 |
|
| Owner Name 2: | 1/4 section #: |
1467 |
||
| Owner Name 3: | Parent Acct: |
|
||
| Billing Address: | 4221 SUNNYVIEW DR | Tax District: |
|
|
| City, State, Zip | DEL CITY, OK 73115-3745 | School System: |
Mid-Del #52 |
|
|
Country: (If noted) |
Land Size: |
0.1846 Acres |
||
|
Land Value: 17,688 |
|
|||
|
Sect 17-T11N-R2W Qtr SW |
DEL MAR HILLS
Block
004
Lot
006
|
|||
| Full Legal Description: DEL MAR HILLS 004 006 |
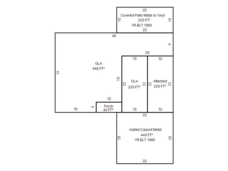
| Photo & Sketch (if available) | Comp Sales (ordered by relevancy) |
|
||||||||||||||||||
|
||||||||||||||||||||
| Value History (*The County Treasurer 405-713-1300 posts & collects actual tax amounts. Contact information HERE) | |||||||||||||
|---|---|---|---|---|---|---|---|---|---|---|---|---|---|
| Year | Market Value | Taxable Mkt Value | Gross Assessed | Exemption | Net Assessed | Millage | Est. Tax | Tax Savings | |||||
|
2025 |
170,000 |
104,333 |
11,476 |
1,000 |
10,476 |
114.72 |
$1,202 |
$943 |
|||||
|
2024 |
154,500 |
101,295 |
11,141 |
1,000 |
10,141 |
117.21 |
$1,189 |
$803 |
|||||
|
2023 |
136,000 |
98,345 |
10,817 |
1,000 |
9,817 |
112.46 |
$1,104 |
$578 |
|||||
|
2022 |
123,000 |
95,481 |
10,502 |
1,000 |
9,502 |
110.76 |
$1,053 |
$446 |
|||||
|
2021 |
103,000 |
92,700 |
10,197 |
1,000 |
9,197 |
114.70 |
$1,055 |
$245 |
|||||
| Property Account Status/Adjustments/Exemptions | ||
|---|---|---|
| Account # | Exemption Description | Amount |
|
R151645045 |
3% Cap Homestead |
0 |
|
R151645045 |
Homestead |
1,000 |
| Property Deed Transaction History (Recorded in the County Clerk's Office) | ||||||||||
|---|---|---|---|---|---|---|---|---|---|---|
| Date | Type | Book | Page | Price | Grantor | Grantee | ||||
|
5/8/2014 |
|
Deeds |
$87,000 |
LW HOMES LLC |
OHRENBERG LAURA D |
|||||
|
2/12/2013 |
|
Deeds |
$26,500 |
RAK PROPERTIES INC |
LW HOMES LLC |
|||||
|
1/18/2013 |
|
Deeds |
$10,500 |
MACINTOSH MONICA |
RAK PROPERTIES INC |
|||||
|
7/27/2012 |
|
Deeds |
$0 |
SNAPP KOREY MACINTOSH MONICA MORALES |
MACINTOSH MONICA |
|||||
|
3/21/2012 |
|
Hmstd Off & |
$0 |
SNAPP MARY T |
SNAPP KIMMI |
|||||
| Last Mailed Notice of Value (N.O.V.) Information/History | ||||||||
|---|---|---|---|---|---|---|---|---|
| Year | Date | Market Value | Taxable Market Value | Gross Assessed | Exemption | Net Assessed | ||
|
2026 |
02/06/2026 |
165,500 |
107,462 |
11,820 |
1,000 |
10,820 |
||
|
2025 |
01/31/2025 |
170,000 |
104,333 |
11,476 |
1,000 |
10,476 |
||
|
2024 |
01/22/2024 |
154,500 |
101,295 |
11,141 |
1,000 |
10,141 |
||
|
2023 |
01/23/2023 |
136,000 |
98,345 |
10,817 |
1,000 |
9,817 |
||
|
2022 |
02/22/2022 |
123,000 |
95,481 |
10,502 |
1,000 |
9,502 |
||
| Property Building Permit History | |||||||||||
|---|---|---|---|---|---|---|---|---|---|---|---|
| Issued | Permit # | Provided by | Bldg # | Description | Est Construction Cost | Status | |||||
| No Building Permit records returned. | |||||||||||
| Click button on building number to access detailed information: | ||||||
|---|---|---|---|---|---|---|
| Bldg # | Vacant/Improved Land | Bldg Description | Year Built | SqFt | # Stories | |
|
1 |
Improved |
Ranch 1 Story |
1966 |
1,166 |
1 Stories |
|