|
|
|
| Larry Stein Oklahoma County Assessor (405) 713-1200 - Public Access System |
|
|
|
|
|
|
| Real Property Display - Screen Produced 3/18/2026 7:15:15 PM | ||||
|---|---|---|---|---|
| Account: R151645060 | Type: Residential | Location: |
4233 SUNNYVIEW DR |
|
| Building Name/Occupant: |
|
DEL CITY |
||
| Owner Name 1: | IRVIN CLYDE R |
Parcel PIN#: |
1467-15-164-5060 |
|
| Owner Name 2: | 1/4 section #: |
1467 |
||
| Owner Name 3: | Parent Acct: |
|
||
| Billing Address: | 4233 SUNNYVIEW DR | Tax District: |
|
|
| City, State, Zip | DEL CITY, OK 73115-3745 | School System: |
Mid-Del #52 |
|
|
Country: (If noted) |
Land Size: |
0.1950 Acres |
||
|
Land Value: 18,691 |
|
|||
|
Sect 17-T11N-R2W Qtr SW |
DEL MAR HILLS
Block
004
Lot
009
|
|||
| Full Legal Description: DEL MAR HILLS 004 009 |
| Photo & Sketch (if available) | Comp Sales (ordered by relevancy) |
|
||||||||||||||||||
|
||||||||||||||||||||
| Value History (*The County Treasurer 405-713-1300 posts & collects actual tax amounts. Contact information HERE) | |||||||||||||
|---|---|---|---|---|---|---|---|---|---|---|---|---|---|
| Year | Market Value | Taxable Mkt Value | Gross Assessed | Exemption | Net Assessed | Millage | Est. Tax | Tax Savings | |||||
|
2025 |
132,500 |
85,205 |
9,371 |
1,000 |
8,371 |
114.72 |
$960 |
$712 |
|||||
|
2024 |
124,500 |
82,724 |
9,099 |
1,000 |
8,099 |
117.21 |
$949 |
$656 |
|||||
|
2023 |
110,000 |
80,315 |
8,834 |
1,000 |
7,834 |
112.46 |
$881 |
$480 |
|||||
|
2022 |
98,500 |
77,976 |
8,576 |
1,000 |
7,576 |
110.76 |
$839 |
$361 |
|||||
|
2021 |
83,500 |
75,705 |
8,327 |
1,000 |
7,327 |
114.70 |
$840 |
$213 |
|||||
| Property Account Status/Adjustments/Exemptions | ||
|---|---|---|
| Account # | Exemption Description | Amount |
|
R151645060 |
3% Cap Homestead |
0 |
|
R151645060 |
Homestead |
1,000 |
| Property Deed Transaction History (Recorded in the County Clerk's Office) | |||||||
|---|---|---|---|---|---|---|---|
| Date | Type | Book | Page | Price | Grantor | Grantee | |
|
6/17/1988 |
|
Historical |
$26,605 |
ADMR OF VETERANS AFFAIRS |
IRVIN CLYDE R |
||
|
3/29/1988 |
|
Historical |
$0 |
STEPHENS MARK A |
ADMR OF VETERANS AFFAIRS |
||
|
2/1/1985 |
|
Historical |
$0 |
|
STEPHENS MARK A |
||
| Last Mailed Notice of Value (N.O.V.) Information/History | ||||||||
|---|---|---|---|---|---|---|---|---|
| Year | Date | Market Value | Taxable Market Value | Gross Assessed | Exemption | Net Assessed | ||
|
2026 |
02/06/2026 |
129,500 |
87,761 |
9,653 |
1,000 |
8,653 |
||
|
2025 |
01/31/2025 |
132,500 |
85,205 |
9,371 |
1,000 |
8,371 |
||
|
2024 |
01/22/2024 |
124,500 |
82,724 |
9,099 |
1,000 |
8,099 |
||
|
2023 |
01/23/2023 |
110,000 |
80,315 |
8,834 |
1,000 |
7,834 |
||
|
2022 |
02/22/2022 |
98,500 |
77,976 |
8,576 |
1,000 |
7,576 |
||
| Property Building Permit History | |||||||||||
|---|---|---|---|---|---|---|---|---|---|---|---|
| Issued | Permit # | Provided by | Bldg # | Description | Est Construction Cost | Status | |||||
| No Building Permit records returned. | |||||||||||
| Click button on building number to access detailed information: | ||||||
|---|---|---|---|---|---|---|
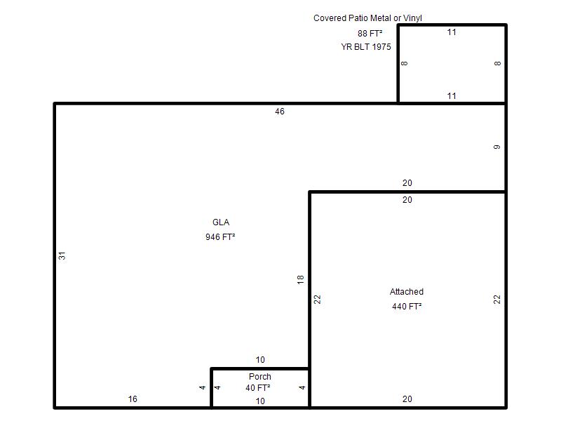
| Bldg # | Vacant/Improved Land | Bldg Description | Year Built | SqFt | # Stories | |
|
1 |
Improved |
Ranch 1 Story |
1966 |
946 |
1 Stories |
|