|
|
|
| Larry Stein Oklahoma County Assessor (405) 713-1200 - Public Access System |
|
|
|
|
|
|
| Real Property Display - Screen Produced 3/23/2026 9:51:00 AM | ||||
|---|---|---|---|---|
| Account: R127661030 | Type: Residential | Location: |
912 NW 172ND ST |
|
| Building Name/Occupant: |
|
OKLAHOMA CITY |
||
| Owner Name 1: | TSEUNG YUIHIN |
Parcel PIN#: |
4732-12-766-1030 |
|
| Owner Name 2: | 1/4 section #: |
4732 |
||
| Owner Name 3: | Parent Acct: |
|
||
| Billing Address: | 7179 NEW CASTLE LN | Tax District: |
|
|
| City, State, Zip | DUBLIN, CA 94568 | School System: |
Edmond #12 |
|
|
Country: (If noted) |
Land Size: |
0.3846 Acres |
||
|
Land Value: 42,510 |
|
|||
|
Sect 33-T14N-R3W Qtr NW |
THE VALLEY SEC V
Block
001
Lot
004
|
|||
| Full Legal Description: THE VALLEY SEC V 001 004 |
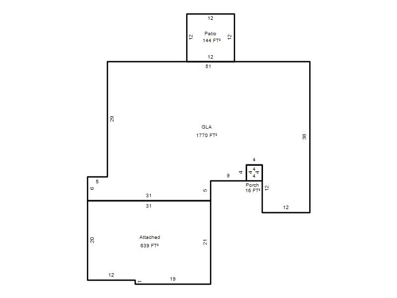
| Photo & Sketch (if available) | Comp Sales (ordered by relevancy) |
|
||||||||||||||||||
|
||||||||||||||||||||
| Value History (*The County Treasurer 405-713-1300 posts & collects actual tax amounts. Contact information HERE) | |||||||||||||
|---|---|---|---|---|---|---|---|---|---|---|---|---|---|
| Year | Market Value | Taxable Mkt Value | Gross Assessed | Exemption | Net Assessed | Millage | Est. Tax | Tax Savings | |||||
|
2025 |
273,500 |
273,500 |
30,085 |
0 |
30,085 |
120.32 |
$3,620 |
$0 |
|||||
|
2024 |
270,000 |
260,925 |
28,701 |
0 |
28,701 |
119.96 |
$3,443 |
$120 |
|||||
|
2023 |
248,500 |
248,500 |
27,335 |
0 |
27,335 |
119.02 |
$3,253 |
$0 |
|||||
|
2022 |
223,000 |
195,300 |
21,483 |
0 |
21,483 |
120.10 |
$2,580 |
$366 |
|||||
|
2021 |
186,000 |
186,000 |
20,460 |
0 |
20,460 |
118.88 |
$2,432 |
$0 |
|||||
| Property Account Status/Adjustments/Exemptions | ||
|---|---|---|
| Account # | Exemption Description | Amount |
|
R127661030 |
5% Capped Account |
0 |
| Property Deed Transaction History (Recorded in the County Clerk's Office) | ||||||||||
|---|---|---|---|---|---|---|---|---|---|---|
| Date | Type | Book | Page | Price | Grantor | Grantee | ||||
|
4/12/2022 |
|
Deeds |
$246,000 |
ALBRIGHT RYAN |
TSEUNG YUIHIN |
|||||
|
7/12/2017 |
|
Deeds |
$182,000 |
SHEPARD MENDY S |
ALBRIGHT RYAN |
|||||
|
8/31/2009 |
|
Deeds |
$145,000 |
CHAMBERS GERALD W & JULIE M |
SHEPARD MENDY S |
|||||
|
1/28/2000 |
|
Deeds |
$106,000 |
SIGLER DAVID M & TAMARA A |
CHAMBERS GERALD W & JULIE M |
|||||
|
5/3/1995 |
|
Historical |
$93,500 |
CULLERS WILLIAM MICHAEL |
SIGLER DAVID M & TAMARA A |
|||||
| Last Mailed Notice of Value (N.O.V.) Information/History | ||||||||
|---|---|---|---|---|---|---|---|---|
| Year | Date | Market Value | Taxable Market Value | Gross Assessed | Exemption | Net Assessed | ||
|
2026 |
02/06/2026 |
278,500 |
278,500 |
30,635 |
0 |
30,635 |
||
|
2025 |
01/31/2025 |
273,500 |
273,500 |
30,085 |
0 |
30,085 |
||
|
2024 |
01/22/2024 |
270,000 |
260,925 |
28,701 |
0 |
28,701 |
||
|
2023 |
01/23/2023 |
248,500 |
248,500 |
27,335 |
0 |
27,335 |
||
|
2022 |
02/22/2022 |
223,000 |
195,300 |
21,483 |
0 |
21,483 |
||
| Property Building Permit History | ||||||
|---|---|---|---|---|---|---|
| Issued | Permit # | Provided by | Bldg # | Description | Est Construction Cost | Status |
|
12/26/2001 |
10218849 |
OKLAHOMA CITY |
1 |
Storage Buil |
6,100 |
Inactive |
| Click button on building number to access detailed information: | ||||||
|---|---|---|---|---|---|---|
| Bldg # | Vacant/Improved Land | Bldg Description | Year Built | SqFt | # Stories | |
|
1 |
Improved |
Ranch 1 Story |
1994 |
1,770 |
1 Stories |
|