|
|
|
| Larry Stein Oklahoma County Assessor (405) 713-1200 - Public Access System |
|
|
|
|
|
|
| Real Property Display - Screen Produced 3/26/2026 7:02:46 AM | ||||
|---|---|---|---|---|
| Account: R201201340 | Type: Residential | Location: |
528 NW 174TH ST |
|
| Building Name/Occupant: |
|
OKLAHOMA CITY |
||
| Owner Name 1: | HOME SFR BORROWER LLC |
Parcel PIN#: |
4732-20-120-1340 |
|
| Owner Name 2: | 1/4 section #: |
4732 |
||
| Owner Name 3: | C/O HAVENBROOK HOMES | Parent Acct: |
4732-18-681-4040 |
|
| Billing Address: | PO BOX 31236 | Tax District: |
|
|
| City, State, Zip | SALT LAKE CITY, UT 84131-0236 | School System: |
Edmond #12 |
|
|
Country: (If noted) |
UNITED STATES |
Land Size: |
0.1641 Acres |
|
|
Land Value: 35,035 |
|
|||
|
Sect 33-T14N-R3W Qtr NW |
THE VALLEY SECTION VIII
Block
011
Lot
005
|
|||
| Full Legal Description: THE VALLEY SECTION VIII 011 005 |
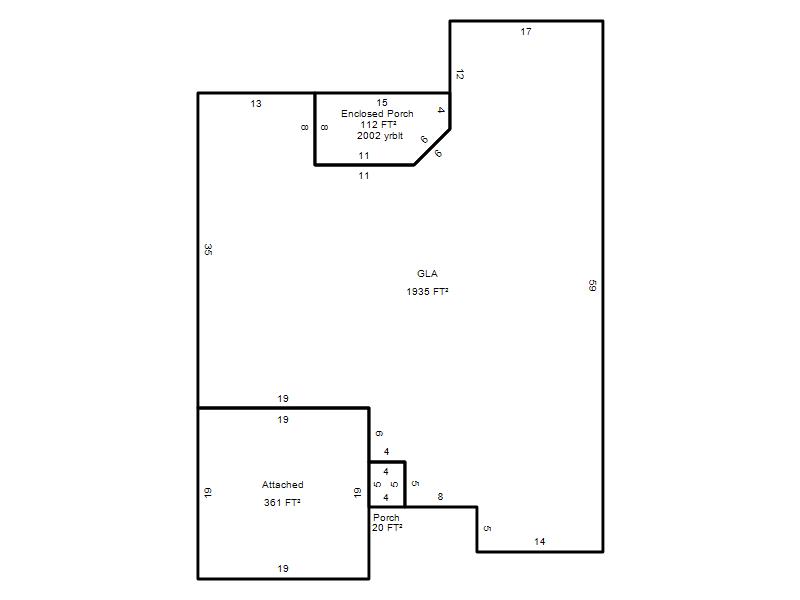
| Photo & Sketch (if available) | Comp Sales (ordered by relevancy) |
|
||||||||||||||||||
|
||||||||||||||||||||
| Value History (*The County Treasurer 405-713-1300 posts & collects actual tax amounts. Contact information HERE) | |||||||||||||
|---|---|---|---|---|---|---|---|---|---|---|---|---|---|
| Year | Market Value | Taxable Mkt Value | Gross Assessed | Exemption | Net Assessed | Millage | Est. Tax | Tax Savings | |||||
|
2026 |
275,000 |
235,856 |
25,943 |
0 |
25,943 |
120.32 |
$3,122 |
$518 |
|||||
|
2025 |
269,500 |
224,625 |
24,708 |
0 |
24,708 |
120.32 |
$2,973 |
$594 |
|||||
|
2024 |
260,000 |
213,929 |
23,531 |
0 |
23,531 |
119.96 |
$2,823 |
$608 |
|||||
|
2023 |
247,500 |
203,742 |
22,411 |
0 |
22,411 |
119.02 |
$2,667 |
$573 |
|||||
|
2022 |
216,500 |
194,040 |
21,344 |
0 |
21,344 |
120.10 |
$2,563 |
$297 |
|||||
| Property Account Status/Adjustments/Exemptions | ||
|---|---|---|
| Account # | Exemption Description | Amount |
|
R201201340 |
5% Capped Account |
0 |
| Property Deed Transaction History (Recorded in the County Clerk's Office) | |||||||
|---|---|---|---|---|---|---|---|
| Date | Type | Book | Page | Price | Grantor | Grantee | |
|
9/26/2016 |
|
Hmstd Off & |
$0 |
BTRA V LLC |
HOME SFR BORROWER LLC |
||
|
5/8/2014 |
|
Deeds |
$170,000 |
DAVIS CHAD D & MELISSA A |
BTRA V LLC |
||
|
1/17/2003 |
|
Deeds |
$125,000 |
STEUART KERRY & TAMARA |
DAVIS CHAD D & MELISSA A |
||
|
12/21/2001 |
|
Deeds |
$113,000 |
LEONHARDT ENTERPRISES INC |
STEUART KERRY & TAMARA |
||
|
5/17/2001 |
|
Deeds |
$13,500 |
ERC PROPERTIES INC |
LEONHARDT ENTERPRISES INC |
||
| Last Mailed Notice of Value (N.O.V.) Information/History | ||||||||
|---|---|---|---|---|---|---|---|---|
| Year | Date | Market Value | Taxable Market Value | Gross Assessed | Exemption | Net Assessed | ||
|
2026 |
02/06/2026 |
275,000 |
235,856 |
25,943 |
0 |
25,943 |
||
|
2025 |
01/31/2025 |
269,500 |
224,625 |
24,708 |
0 |
24,708 |
||
|
2024 |
01/22/2024 |
260,000 |
213,929 |
23,531 |
0 |
23,531 |
||
|
2023 |
01/23/2023 |
247,500 |
203,742 |
22,411 |
0 |
22,411 |
||
|
2022 |
02/22/2022 |
216,500 |
194,040 |
21,344 |
0 |
21,344 |
||
| Property Building Permit History | ||||||
|---|---|---|---|---|---|---|
| Issued | Permit # | Provided by | Bldg # | Description | Est Construction Cost | Status |
|
4/26/2002 |
10269351 |
OKLAHOMA CITY |
1 |
Add On |
3,000 |
Inactive |
|
5/31/2001 |
10269350 |
OKLAHOMA CITY |
1 |
Main Dwellin |
91,750 |
Inactive |
| Click button on building number to access detailed information: | ||||||
|---|---|---|---|---|---|---|
| Bldg # | Vacant/Improved Land | Bldg Description | Year Built | SqFt | # Stories | |
|
1 |
Improved |
Ranch 1 Story |
2001 |
1,935 |
1 Stories |
|