|
|
|
| Larry Stein Oklahoma County Assessor (405) 713-1200 - Public Access System |
|
|
|
|
|
|
| Real Property Display - Screen Produced 3/26/2026 7:02:46 AM | ||||
|---|---|---|---|---|
| Account: R201201420 | Type: Residential | Location: |
17405 VALLEY CRST |
|
| Building Name/Occupant: |
|
OKLAHOMA CITY |
||
| Owner Name 1: | HADDADI ABDLAKBIR |
Parcel PIN#: |
4732-20-120-1420 |
|
| Owner Name 2: | ELMRABTI KAOUTAR | 1/4 section #: |
4732 |
|
| Owner Name 3: | Parent Acct: |
4732-18-681-4040 |
||
| Billing Address: | 17405 VALLEY CRST | Tax District: |
|
|
| City, State, Zip | EDMOND, OK 73012-6788 | School System: |
Edmond #12 |
|
|
Country: (If noted) |
Land Size: |
0.1692 Acres |
||
|
Land Value: 36,113 |
|
|||
|
Sect 33-T14N-R3W Qtr NW |
THE VALLEY SECTION VIII
Block
011
Lot
013
|
|||
| Full Legal Description: THE VALLEY SECTION VIII 011 013 |
| Photo & Sketch (if available) | Comp Sales (ordered by relevancy) |
|
||||||||||||||||||
|
||||||||||||||||||||
| Value History (*The County Treasurer 405-713-1300 posts & collects actual tax amounts. Contact information HERE) | |||||||||||||
|---|---|---|---|---|---|---|---|---|---|---|---|---|---|
| Year | Market Value | Taxable Mkt Value | Gross Assessed | Exemption | Net Assessed | Millage | Est. Tax | Tax Savings | |||||
|
2026 |
249,500 |
249,500 |
27,445 |
0 |
27,445 |
120.32 |
$3,302 |
$0 |
|||||
|
2025 |
245,000 |
245,000 |
26,950 |
0 |
26,950 |
120.32 |
$3,243 |
$0 |
|||||
|
2024 |
237,000 |
236,775 |
26,045 |
0 |
26,045 |
119.96 |
$3,124 |
$3 |
|||||
|
2023 |
225,500 |
225,500 |
24,805 |
0 |
24,805 |
119.02 |
$2,952 |
$0 |
|||||
|
2022 |
197,500 |
169,744 |
18,671 |
1,000 |
17,671 |
120.10 |
$2,122 |
$487 |
|||||
| Property Account Status/Adjustments/Exemptions | ||||||
|---|---|---|---|---|---|---|
| Account # | Exemption Description | Amount | ||||
| No adjustment/exemption records returned. | ||||||
| Property Deed Transaction History (Recorded in the County Clerk's Office) | ||||||||||
|---|---|---|---|---|---|---|---|---|---|---|
| Date | Type | Book | Page | Price | Grantor | Grantee | ||||
|
8/15/2025 |
|
Deeds |
$242,000 |
MBH REALTY LLC |
HADDADI ABDLAKBIR |
|||||
|
8/10/2022 |
|
Deeds |
$220,000 |
DEPPE NANCY J |
MBH REALTY LLC |
|||||
|
10/19/2007 |
|
Deeds |
$139,000 |
FARRAR RAYMOND |
DEPPE NANCY J |
|||||
|
11/11/2005 |
|
Deeds |
$130,000 |
CONWAY JAN M |
FARRAR RAYMOND |
|||||
|
6/18/2004 |
|
Deeds |
$118,000 |
JACOBSON JON & GINGER L |
CONWAY JAN M |
|||||
| Last Mailed Notice of Value (N.O.V.) Information/History | ||||||||
|---|---|---|---|---|---|---|---|---|
| Year | Date | Market Value | Taxable Market Value | Gross Assessed | Exemption | Net Assessed | ||
|
2026 |
02/06/2026 |
249,500 |
249,500 |
27,445 |
0 |
27,445 |
||
|
2025 |
01/31/2025 |
245,000 |
245,000 |
26,950 |
0 |
26,950 |
||
|
2024 |
01/22/2024 |
237,000 |
236,775 |
26,045 |
0 |
26,045 |
||
|
2023 |
01/23/2023 |
225,500 |
225,500 |
24,805 |
0 |
24,805 |
||
|
2022 |
02/22/2022 |
197,500 |
169,744 |
18,671 |
1,000 |
17,671 |
||
| Property Building Permit History | ||||||
|---|---|---|---|---|---|---|
| Issued | Permit # | Provided by | Bldg # | Description | Est Construction Cost | Status |
|
10/24/2000 |
10269360 |
OKLAHOMA CITY |
1 |
Main Dwellin |
87,750 |
Inactive |
| Click button on building number to access detailed information: | ||||||
|---|---|---|---|---|---|---|
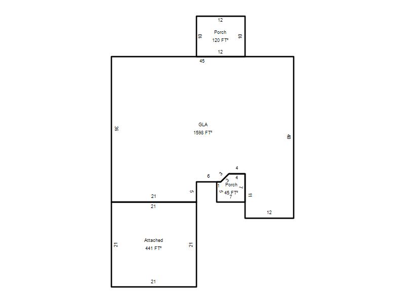
| Bldg # | Vacant/Improved Land | Bldg Description | Year Built | SqFt | # Stories | |
|
1 |
Improved |
Ranch 1 Story |
2001 |
1,598 |
1 Stories |
|