|
|
|
| Larry Stein Oklahoma County Assessor (405) 713-1200 - Public Access System |
|
|
|
|
|
|
| Real Property Display - Screen Produced 3/26/2026 7:02:46 AM | ||||
|---|---|---|---|---|
| Account: R201201450 | Type: Residential | Location: |
17321 VALLEY CRST |
|
| Building Name/Occupant: |
|
OKLAHOMA CITY |
||
| Owner Name 1: | RODRIGUEZ CHARLES |
Parcel PIN#: |
4732-20-120-1450 |
|
| Owner Name 2: | TAYLOR RODRIGUEZ GLENDA C | 1/4 section #: |
4732 |
|
| Owner Name 3: | Parent Acct: |
4732-18-681-4040 |
||
| Billing Address: | 17321 VALLEY CRST | Tax District: |
|
|
| City, State, Zip | EDMOND, OK 73012-6771 | School System: |
Edmond #12 |
|
|
Country: (If noted) |
Land Size: |
0.1515 Acres |
||
|
Land Value: 32,340 |
|
|||
|
Sect 33-T14N-R3W Qtr NW |
THE VALLEY SECTION VIII
Block
011
Lot
016
|
|||
| Full Legal Description: THE VALLEY SECTION VIII 011 016 |
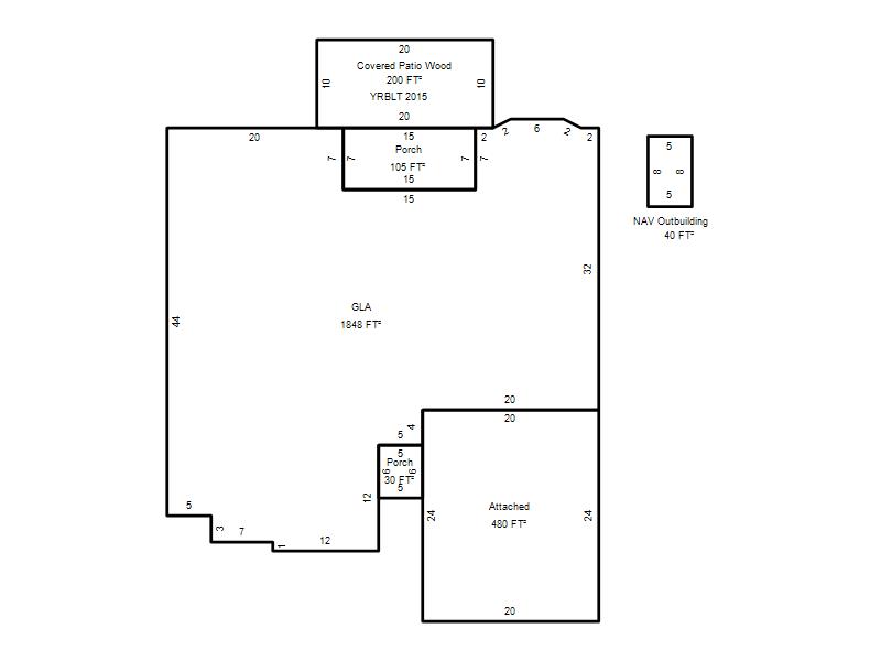
| Photo & Sketch (if available) | Comp Sales (ordered by relevancy) |
|
||||||||||||||||||
|
||||||||||||||||||||
| Value History (*The County Treasurer 405-713-1300 posts & collects actual tax amounts. Contact information HERE) | |||||||||||||
|---|---|---|---|---|---|---|---|---|---|---|---|---|---|
| Year | Market Value | Taxable Mkt Value | Gross Assessed | Exemption | Net Assessed | Millage | Est. Tax | Tax Savings | |||||
|
2026 |
276,500 |
200,553 |
22,060 |
1,000 |
21,060 |
120.32 |
$2,534 |
$1,125 |
|||||
|
2025 |
271,000 |
200,553 |
22,060 |
1,000 |
21,060 |
120.32 |
$2,534 |
$1,053 |
|||||
|
2024 |
261,500 |
194,712 |
21,417 |
1,000 |
20,417 |
119.96 |
$2,449 |
$1,001 |
|||||
|
2023 |
247,500 |
189,041 |
20,793 |
1,000 |
19,793 |
119.02 |
$2,356 |
$884 |
|||||
|
2022 |
216,000 |
183,535 |
20,188 |
1,000 |
19,188 |
120.10 |
$2,305 |
$549 |
|||||
| Property Account Status/Adjustments/Exemptions | ||
|---|---|---|
| Account # | Exemption Description | Amount |
|
R201201450 |
Freeze Senior Valuation |
0 |
|
R201201450 |
3% Cap Homestead |
0 |
|
R201201450 |
Homestead |
1,000 |
| Property Deed Transaction History (Recorded in the County Clerk's Office) | |||||||
|---|---|---|---|---|---|---|---|
| Date | Type | Book | Page | Price | Grantor | Grantee | |
|
2/11/2015 |
|
Deeds |
$167,000 |
WE BUY HOUSES LLC |
RODRIGUEZ CHARLES |
||
|
6/17/2014 |
|
Deeds |
$35,000 |
PICKERING FRANK |
WE BUY HOUSES LLC |
||
|
1/31/2007 |
|
Deeds |
$139,500 |
MCCLARY JENNIFER L |
PICKERING FRANK |
||
|
7/11/2000 |
|
Deeds |
$109,000 |
LEONHARDT ENTERPRISES INC |
MCCLARY JENNIFER L |
||
|
2/9/2000 |
|
Deeds |
$0 |
ERC PROPERTIES INC |
LEONHARDT ENTERPRISES INC |
||
| Last Mailed Notice of Value (N.O.V.) Information/History | ||||||||
|---|---|---|---|---|---|---|---|---|
| Year | Date | Market Value | Taxable Market Value | Gross Assessed | Exemption | Net Assessed | ||
|
2026 |
02/06/2026 |
276,500 |
200,553 |
22,060 |
1,000 |
21,060 |
||
|
2025 |
01/31/2025 |
271,000 |
200,553 |
22,060 |
1,000 |
21,060 |
||
|
2024 |
01/22/2024 |
261,500 |
194,712 |
21,417 |
1,000 |
20,417 |
||
|
2023 |
01/23/2023 |
247,500 |
189,041 |
20,793 |
1,000 |
19,793 |
||
|
2022 |
02/22/2022 |
216,000 |
183,535 |
20,188 |
1,000 |
19,188 |
||
| Property Building Permit History | ||||||
|---|---|---|---|---|---|---|
| Issued | Permit # | Provided by | Bldg # | Description | Est Construction Cost | Status |
|
5/30/2014 |
10462443 |
OKLAHOMA CITY |
1 |
Fire Remodel |
0 |
Inactive |
|
4/16/2014 |
10461845 |
OKLAHOMA CITY |
1 |
Burn - Trip |
162,769 |
Inactive |
|
2/16/2000 |
10269366 |
OKLAHOMA CITY |
1 |
Main Dwellin |
90,700 |
Inactive |
| Click button on building number to access detailed information: | ||||||
|---|---|---|---|---|---|---|
| Bldg # | Vacant/Improved Land | Bldg Description | Year Built | SqFt | # Stories | |
|
1 |
Improved |
Ranch 1 Story |
2000 |
1,848 |
1 Stories |
|