|
|
|
| Larry Stein Oklahoma County Assessor (405) 713-1200 - Public Access System |
|
|
|
|
|
|
| Real Property Display - Screen Produced 4/2/2026 7:21:45 AM | ||||
|---|---|---|---|---|
| Account: R183242380 | Type: Residential | Location: |
1210 W GEMINI RD |
|
| Building Name/Occupant: |
|
EDMOND |
||
| Owner Name 1: | BEENE JARED |
Parcel PIN#: |
4734-18-324-2380 |
|
| Owner Name 2: | 1/4 section #: |
4734 |
||
| Owner Name 3: | Parent Acct: |
|
||
| Billing Address: | 1210 W GEMINI RD | Tax District: |
|
|
| City, State, Zip | EDMOND, OK 73003-5810 | School System: |
Edmond #12 |
|
|
Country: (If noted) |
Land Size: |
0.1848 Acres |
||
|
Land Value: 31,798 |
|
|||
|
Sect 34-T14N-R3W Qtr SE |
VAL GENES KELLY PARK 5
Block
007
Lot
004
|
|||
| Full Legal Description: VAL GENES KELLY PARK 5 007 004 |
| Photo & Sketch (if available) | Comp Sales (ordered by relevancy) |
|
||||||||||||||||||
|
||||||||||||||||||||
| Value History (*The County Treasurer 405-713-1300 posts & collects actual tax amounts. Contact information HERE) | |||||||||||||
|---|---|---|---|---|---|---|---|---|---|---|---|---|---|
| Year | Market Value | Taxable Mkt Value | Gross Assessed | Exemption | Net Assessed | Millage | Est. Tax | Tax Savings | |||||
|
2026 |
199,500 |
151,643 |
16,679 |
1,000 |
15,679 |
105.16 |
$1,649 |
$659 |
|||||
|
2025 |
196,500 |
147,227 |
16,194 |
1,000 |
15,194 |
105.16 |
$1,598 |
$675 |
|||||
|
2024 |
190,500 |
142,939 |
15,722 |
1,000 |
14,722 |
105.03 |
$1,546 |
$655 |
|||||
|
2023 |
181,500 |
138,776 |
15,264 |
1,000 |
14,264 |
104.24 |
$1,487 |
$594 |
|||||
|
2022 |
158,000 |
134,734 |
14,820 |
1,000 |
13,820 |
104.64 |
$1,446 |
$372 |
|||||
| Property Account Status/Adjustments/Exemptions | ||
|---|---|---|
| Account # | Exemption Description | Amount |
|
R183242380 |
3% Cap Homestead |
0 |
|
R183242380 |
Homestead |
1,000 |
| Property Deed Transaction History (Recorded in the County Clerk's Office) | |||||||
|---|---|---|---|---|---|---|---|
| Date | Type | Book | Page | Price | Grantor | Grantee | |
|
6/27/2008 |
|
Deeds |
$115,000 |
BENEFIELD JEFFREY J |
BEENE JARED |
||
|
5/12/2004 |
|
Deeds |
$85,000 |
HESSONG ANDREW J |
BENEFIELD JEFFREY J |
||
|
5/24/2000 |
|
Deeds |
$76,000 |
CARUTHERS MARK A & TONIA L |
HESSONG ANDREW J |
||
|
12/1/1983 |
|
Historical |
$0 |
|
CARUTHERS MARK A & TONIA L |
||
| Last Mailed Notice of Value (N.O.V.) Information/History | ||||||||
|---|---|---|---|---|---|---|---|---|
| Year | Date | Market Value | Taxable Market Value | Gross Assessed | Exemption | Net Assessed | ||
|
2026 |
02/06/2026 |
199,500 |
151,643 |
16,679 |
1,000 |
15,679 |
||
|
2025 |
01/31/2025 |
196,500 |
147,227 |
16,194 |
1,000 |
15,194 |
||
|
2024 |
01/22/2024 |
190,500 |
142,939 |
15,722 |
1,000 |
14,722 |
||
|
2023 |
01/23/2023 |
181,500 |
138,776 |
15,264 |
1,000 |
14,264 |
||
|
2022 |
02/22/2022 |
158,000 |
134,734 |
14,820 |
1,000 |
13,820 |
||
| Property Building Permit History | |||||||||||
|---|---|---|---|---|---|---|---|---|---|---|---|
| Issued | Permit # | Provided by | Bldg # | Description | Est Construction Cost | Status | |||||
| No Building Permit records returned. | |||||||||||
| Click button on building number to access detailed information: | ||||||
|---|---|---|---|---|---|---|
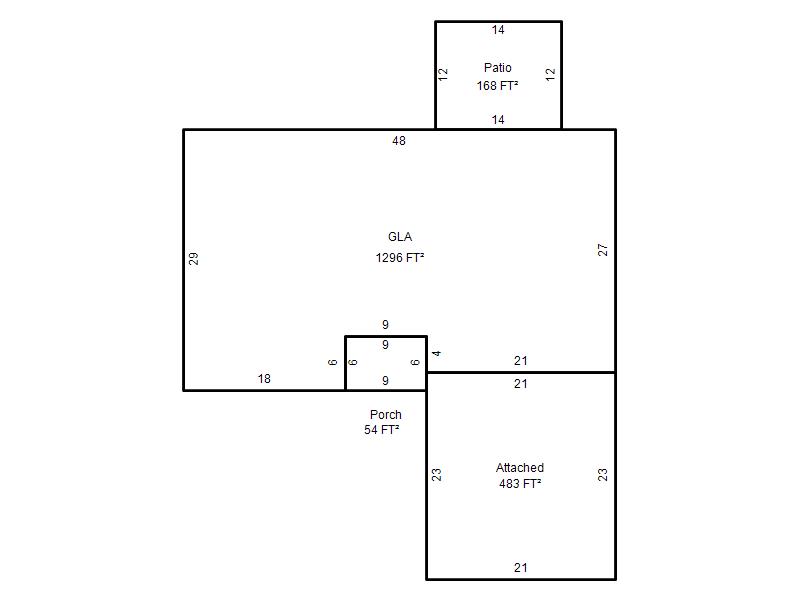
| Bldg # | Vacant/Improved Land | Bldg Description | Year Built | SqFt | # Stories | |
|
1 |
Improved |
Ranch 1 Story |
1980 |
1,296 |
1 Stories |
|