|
|
|
| Larry Stein Oklahoma County Assessor (405) 713-1200 - Public Access System |
|
|
|
|
|
|
| Real Property Display - Screen Produced 4/8/2026 6:18:47 AM | ||||
|---|---|---|---|---|
| Account: R182301700 | Type: Residential | Location: |
201 E 13TH ST |
|
| Building Name/Occupant: |
|
EDMOND |
||
| Owner Name 1: | LOPEZ CURTIS W & ELIZABETH A TRS |
Parcel PIN#: |
4743-18-230-1700 |
|
| Owner Name 2: | LOPEZ CURTIS W & ELIZABETH A REV LIV TRUST | 1/4 section #: |
4743 |
|
| Owner Name 3: | Parent Acct: |
|
||
| Billing Address: | 201 E 13TH ST | Tax District: |
|
|
| City, State, Zip | EDMOND, OK 73034-4743 | School System: |
Edmond #12 |
|
|
Country: (If noted) |
Land Size: |
0.3192 Acres |
||
|
Land Value: 38,239 |
|
|||
|
Sect 36-T14N-R3W Qtr SW |
BOULEVARD PLACE TO EDMOND
Block
000
Lot
017
|
|||
| Full Legal Description: BOULEVARD PLACE TO EDMOND 000 017 |
| Photo & Sketch (if available) | Comp Sales (ordered by relevancy) |
|
||||||||||||||||||
|
||||||||||||||||||||
| Value History (*The County Treasurer 405-713-1300 posts & collects actual tax amounts. Contact information HERE) | |||||||||||||
|---|---|---|---|---|---|---|---|---|---|---|---|---|---|
| Year | Market Value | Taxable Mkt Value | Gross Assessed | Exemption | Net Assessed | Millage | Est. Tax | Tax Savings | |||||
|
2026 |
270,500 |
228,263 |
25,108 |
0 |
25,108 |
105.16 |
$2,640 |
$489 |
|||||
|
2025 |
260,000 |
217,394 |
23,912 |
0 |
23,912 |
105.16 |
$2,515 |
$493 |
|||||
|
2024 |
258,000 |
207,042 |
22,774 |
0 |
22,774 |
105.03 |
$2,392 |
$589 |
|||||
|
2023 |
243,500 |
197,183 |
21,689 |
0 |
21,689 |
104.24 |
$2,261 |
$531 |
|||||
|
2022 |
218,500 |
187,794 |
20,656 |
0 |
20,656 |
104.64 |
$2,162 |
$353 |
|||||
| Property Account Status/Adjustments/Exemptions | ||
|---|---|---|
| Account # | Exemption Description | Amount |
|
R182301700 |
5% Capped Account |
0 |
| Property Deed Transaction History (Recorded in the County Clerk's Office) | |||||||
|---|---|---|---|---|---|---|---|
| Date | Type | Book | Page | Price | Grantor | Grantee | |
|
8/7/2023 |
|
Deeds |
$0 |
LOPEZ CURTIS WAYNE & ELIZABETH ANN |
LOPEZ CURTIS W & ELIZABETH A TRS |
||
|
6/9/2016 |
|
Deeds |
$164,500 |
SNEED HILLARD PERRY SUC CO TRS SNEED HAROLD PARKER SUC CO TR |
LOPEZ CURTIS WAYNE & ELIZABETH ANN |
||
|
2/21/2015 |
|
Hmstd Off & |
$0 |
SNEED H PARKER & FRANCIS C TRS SNEED FAMILY TRUST |
SNEED HILLARD PERRY SUC CO TRS SNEED HAROLD PARKER SUC CO TR |
||
|
11/16/1992 |
|
Historical |
$0 |
SNEED H P & F C |
SNEED H PARKER & FRANCIS C TRS |
||
|
11/11/1911 |
|
Historical |
$0 |
|
SNEED H PARKER & FRANCIS C |
||
| Last Mailed Notice of Value (N.O.V.) Information/History | ||||||||
|---|---|---|---|---|---|---|---|---|
| Year | Date | Market Value | Taxable Market Value | Gross Assessed | Exemption | Net Assessed | ||
|
2026 |
02/06/2026 |
270,500 |
228,263 |
25,108 |
0 |
25,108 |
||
|
2025 |
01/31/2025 |
260,000 |
217,394 |
23,912 |
0 |
23,912 |
||
|
2024 |
01/22/2024 |
258,000 |
207,042 |
22,774 |
0 |
22,774 |
||
|
2023 |
01/23/2023 |
243,500 |
197,183 |
21,689 |
0 |
21,689 |
||
|
2022 |
02/22/2022 |
218,500 |
187,794 |
20,655 |
0 |
20,655 |
||
| Property Building Permit History | |||||||||||
|---|---|---|---|---|---|---|---|---|---|---|---|
| Issued | Permit # | Provided by | Bldg # | Description | Est Construction Cost | Status | |||||
| No Building Permit records returned. | |||||||||||
| Click button on building number to access detailed information: | ||||||
|---|---|---|---|---|---|---|
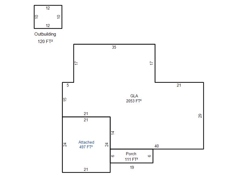
| Bldg # | Vacant/Improved Land | Bldg Description | Year Built | SqFt | # Stories | |
|
1 |
Improved |
Ranch 1 Story |
1957 |
2,053 |
1 Stories |
|