|
|
|
| Larry Stein Oklahoma County Assessor (405) 713-1200 - Public Access System |
|
|
|
|
|
|
| Real Property Display - Screen Produced 4/3/2026 5:05:33 AM | ||||
|---|---|---|---|---|
| Account: R183281230 | Type: Residential | Location: |
305 TULLAHOMA DR |
|
| Building Name/Occupant: |
|
EDMOND |
||
| Owner Name 1: | SULLIVAN DEANNE |
Parcel PIN#: |
4743-18-328-1230 |
|
| Owner Name 2: | 1/4 section #: |
4743 |
||
| Owner Name 3: | Parent Acct: |
|
||
| Billing Address: | 305 TULLAHOMA DR | Tax District: |
|
|
| City, State, Zip | EDMOND, OK 73034 | School System: |
Edmond #12 |
|
|
Country: (If noted) |
Land Size: |
0.1791 Acres |
||
|
Land Value: 26,520 |
|
|||
|
Sect 36-T14N-R3W Qtr SW |
FLEETWOOD TERRACE
Block
001
Lot
023
|
|||
| Full Legal Description: FLEETWOOD TERRACE 001 023 W60FT |
| Photo & Sketch (if available) | Comp Sales (ordered by relevancy) |
|
||||||||||||||||||
|
||||||||||||||||||||
| Value History (*The County Treasurer 405-713-1300 posts & collects actual tax amounts. Contact information HERE) | |||||||||||||
|---|---|---|---|---|---|---|---|---|---|---|---|---|---|
| Year | Market Value | Taxable Mkt Value | Gross Assessed | Exemption | Net Assessed | Millage | Est. Tax | Tax Savings | |||||
|
2026 |
222,000 |
166,011 |
18,261 |
2,000 |
16,261 |
105.16 |
$1,710 |
$858 |
|||||
|
2025 |
214,000 |
166,011 |
18,261 |
2,000 |
16,261 |
105.16 |
$1,710 |
$765 |
|||||
|
2024 |
215,000 |
166,011 |
18,260 |
2,000 |
16,260 |
105.03 |
$1,708 |
$776 |
|||||
|
2023 |
201,500 |
161,176 |
17,729 |
1,000 |
16,729 |
104.24 |
$1,744 |
$567 |
|||||
|
2022 |
181,500 |
156,482 |
17,212 |
1,000 |
16,212 |
104.64 |
$1,697 |
$393 |
|||||
| Property Account Status/Adjustments/Exemptions | ||
|---|---|---|
| Account # | Exemption Description | Amount |
|
R183281230 |
Freeze Senior Valuation |
0 |
|
R183281230 |
Senior Additional Homestead |
1,000 |
|
R183281230 |
3% Cap Homestead |
0 |
|
R183281230 |
Homestead |
1,000 |
| Property Deed Transaction History (Recorded in the County Clerk's Office) | |||||||
|---|---|---|---|---|---|---|---|
| Date | Type | Book | Page | Price | Grantor | Grantee | |
|
8/11/2020 |
|
Hmstd Off & |
$0 |
SHARP DONNA B TRS |
SULLIVAN DEANNE |
||
|
4/13/2005 |
|
Deeds |
$93,000 |
FAHEY JOHN E |
SHARP DONNA B TRS |
||
|
2/26/2003 |
|
Deeds |
$69,000 |
TISSERAND PHYLLIS M |
FAHEY JOHN E |
||
|
5/1/1985 |
|
Historical |
$0 |
|
TISSERAND PHYLLIS M |
||
| Last Mailed Notice of Value (N.O.V.) Information/History | ||||||||
|---|---|---|---|---|---|---|---|---|
| Year | Date | Market Value | Taxable Market Value | Gross Assessed | Exemption | Net Assessed | ||
|
2026 |
02/06/2026 |
222,000 |
166,011 |
18,261 |
2,000 |
16,261 |
||
|
2024 |
01/22/2024 |
215,000 |
166,011 |
18,260 |
1,000 |
17,260 |
||
|
2023 |
01/23/2023 |
201,500 |
161,176 |
17,729 |
1,000 |
16,729 |
||
|
2022 |
02/22/2022 |
181,500 |
156,482 |
17,212 |
1,000 |
16,212 |
||
|
2021 |
02/24/2021 |
156,500 |
151,925 |
16,711 |
1,000 |
15,711 |
||
| Property Building Permit History | |||||||||||
|---|---|---|---|---|---|---|---|---|---|---|---|
| Issued | Permit # | Provided by | Bldg # | Description | Est Construction Cost | Status | |||||
| No Building Permit records returned. | |||||||||||
| Click button on building number to access detailed information: | ||||||
|---|---|---|---|---|---|---|
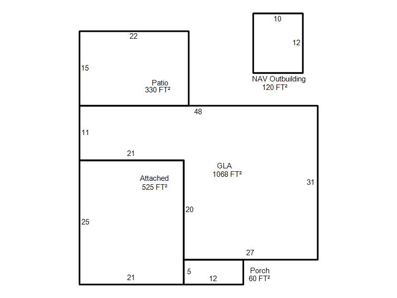
| Bldg # | Vacant/Improved Land | Bldg Description | Year Built | SqFt | # Stories | |
|
1 |
Improved |
Ranch 1 Story |
1957 |
1,068 |
1 Stories |
|