|
|
|
| Larry Stein Oklahoma County Assessor (405) 713-1200 - Public Access System |
|
|
|
|
|
|
| Real Property Display - Screen Produced 4/5/2026 1:41:02 PM | ||||
|---|---|---|---|---|
| Account: R183281365 | Type: Residential | Location: |
316 TULLAHOMA DR |
|
| Building Name/Occupant: |
|
EDMOND |
||
| Owner Name 1: | CHAMBERS MARIKA STONE |
Parcel PIN#: |
4743-18-328-1365 |
|
| Owner Name 2: | 1/4 section #: |
4743 |
||
| Owner Name 3: | Parent Acct: |
|
||
| Billing Address: | 316 TULLAHOMA DR | Tax District: |
|
|
| City, State, Zip | EDMOND, OK 73034-4720 | School System: |
Edmond #12 |
|
|
Country: (If noted) |
Land Size: |
0.2059 Acres |
||
|
Land Value: 30,498 |
|
|||
|
Sect 36-T14N-R3W Qtr SW |
FLEETWOOD TERRACE
Block
002
Lot
000
|
|||
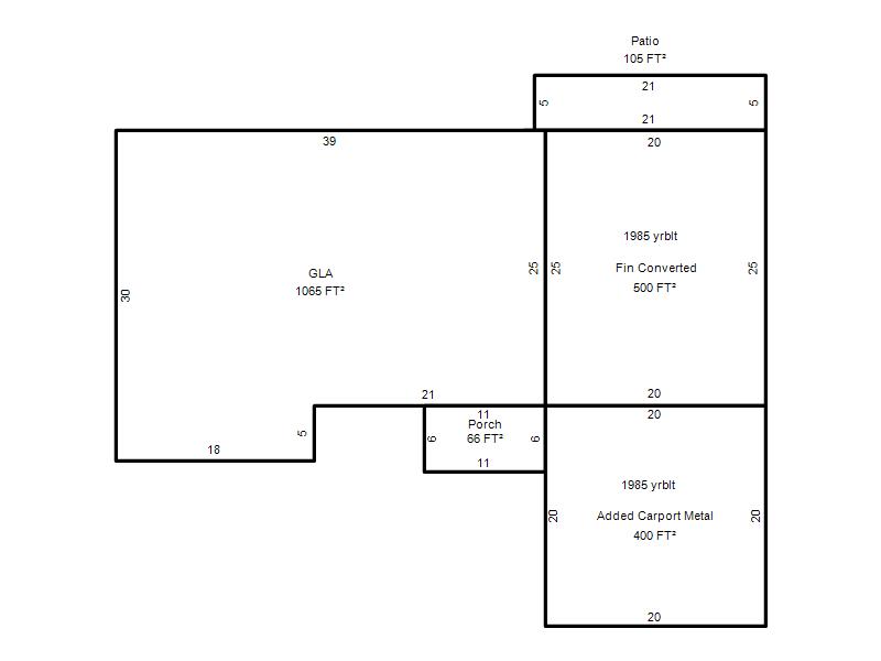
| Full Legal Description: FLEETWOOD TERRACE 002 000 W60FT LOT 6 & E9FT LOT 7 |
| Photo & Sketch (if available) | Comp Sales (ordered by relevancy) |
|
||||||||||||||||||
|
||||||||||||||||||||
| Value History (*The County Treasurer 405-713-1300 posts & collects actual tax amounts. Contact information HERE) | |||||||||||||
|---|---|---|---|---|---|---|---|---|---|---|---|---|---|
| Year | Market Value | Taxable Mkt Value | Gross Assessed | Exemption | Net Assessed | Millage | Est. Tax | Tax Savings | |||||
|
2026 |
186,000 |
165,915 |
18,250 |
0 |
18,250 |
105.16 |
$1,919 |
$232 |
|||||
|
2025 |
183,500 |
158,015 |
17,381 |
0 |
17,381 |
105.16 |
$1,828 |
$295 |
|||||
|
2024 |
180,500 |
150,491 |
16,553 |
0 |
16,553 |
105.03 |
$1,739 |
$347 |
|||||
|
2023 |
171,000 |
143,325 |
15,765 |
0 |
15,765 |
104.24 |
$1,643 |
$317 |
|||||
|
2022 |
155,000 |
136,500 |
15,015 |
0 |
15,015 |
104.64 |
$1,571 |
$213 |
|||||
| Property Account Status/Adjustments/Exemptions | ||
|---|---|---|
| Account # | Exemption Description | Amount |
|
R183281365 |
5% Capped Account |
0 |
| Property Deed Transaction History (Recorded in the County Clerk's Office) | ||||||||||
|---|---|---|---|---|---|---|---|---|---|---|
| Date | Type | Book | Page | Price | Grantor | Grantee | ||||
|
3/25/2008 |
|
Deeds |
$0 |
DENAPLES JAMES & SHAWNALEE STONE MARIKA |
CHAMBERS MARIKA STONE |
|||||
|
2/27/2004 |
|
Deeds |
$0 |
DENAPLES SHAWNALEE & JAMES |
DENAPLES JAMES & SHAWNALEE STONE MARIKA |
|||||
|
2/13/2004 |
|
Deeds |
$85,000 |
BAILEY KEVIN T & REBECCA L |
DENAPLES SHAWNALEE & JAMES |
|||||
|
12/15/2000 |
|
Deeds |
$74,999 |
DAY MARY ANNE |
BAILEY KEVIN T & REBECCA L |
|||||
|
3/2/1988 |
|
Historical |
$0 |
DAY PRESTON O & MARY ANNA |
DAY MARY ANNE |
|||||
| Last Mailed Notice of Value (N.O.V.) Information/History | ||||||||
|---|---|---|---|---|---|---|---|---|
| Year | Date | Market Value | Taxable Market Value | Gross Assessed | Exemption | Net Assessed | ||
|
2026 |
02/06/2026 |
186,000 |
165,915 |
18,250 |
0 |
18,250 |
||
|
2025 |
01/31/2025 |
183,500 |
158,015 |
17,381 |
0 |
17,381 |
||
|
2024 |
01/22/2024 |
180,500 |
150,491 |
16,553 |
0 |
16,553 |
||
|
2023 |
01/23/2023 |
171,000 |
143,325 |
15,765 |
0 |
15,765 |
||
|
2022 |
02/22/2022 |
155,000 |
136,500 |
15,015 |
0 |
15,015 |
||
| Property Building Permit History | |||||||||||
|---|---|---|---|---|---|---|---|---|---|---|---|
| Issued | Permit # | Provided by | Bldg # | Description | Est Construction Cost | Status | |||||
| No Building Permit records returned. | |||||||||||
| Click button on building number to access detailed information: | ||||||
|---|---|---|---|---|---|---|
| Bldg # | Vacant/Improved Land | Bldg Description | Year Built | SqFt | # Stories | |
|
1 |
Improved |
Ranch 1 Story |
1957 |
1,065 |
1 Stories |
|