|
|
|
| Larry Stein Oklahoma County Assessor (405) 713-1200 - Public Access System |
|
|
|
|
|
|
| Real Property Display - Screen Produced 4/27/2026 9:23:44 AM | ||||
|---|---|---|---|---|
| Account: R257034010 | Type: Agricultural | Location: |
23901 N MERIDIAN AVE |
|
| Building Name/Occupant: |
|
UNINCORPORATED |
||
| Owner Name 1: | L GRIFFIN MANAGEMENT USA INC |
Parcel PIN#: |
4810-25-703-4010 |
|
| Owner Name 2: | 1/4 section #: |
4810 |
||
| Owner Name 3: | Parent Acct: |
|
||
| Billing Address: | 4571 NW 234TH ST | Tax District: |
|
|
| City, State, Zip | EDMOND, OK 73025 | School System: |
Deer Creek #6 |
|
|
Country: (If noted) |
UNITED STATES |
Land Size: |
40.0000 Acres |
|
|
Land Value: 156,106 |
|
|||
|
Sect 3-T14N-R4W Qtr SE |
DEER CREEK TOWNSHIP
Block
000
Lot
000
|
|||
| Full Legal Description: DEER CREEK TOWNSHIP PT SE4 SEC 3 14N 4W S 1/2 OF N 1/2 OF SE4 CONT 40ACRS MORE OR LESS |
| No comparable sales report available. | ||||||||||||||||||||||
|
||||||||||||||||||||||
| Value History (*The County Treasurer 405-713-1300 posts & collects actual tax amounts. Contact information HERE) | |||||||||||||
|---|---|---|---|---|---|---|---|---|---|---|---|---|---|
| Year | Market Value | Taxable Mkt Value | Gross Assessed | Exemption | Net Assessed | Millage | Est. Tax | Tax Savings | |||||
|
2026 |
372,773 |
321,154 |
35,326 |
0 |
35,326 |
114.35 |
$4,040 |
$649 |
|||||
|
2025 |
396,898 |
311,800 |
34,297 |
0 |
34,297 |
114.35 |
$3,922 |
$1,070 |
|||||
|
2024 |
322,483 |
302,719 |
33,298 |
0 |
33,298 |
116.19 |
$3,869 |
$253 |
|||||
| Property Account Status/Adjustments/Exemptions | ||
|---|---|---|
| Account # | Exemption Description | Amount |
|
R257034010 |
Capped Ag 3% |
0 |
| Property Deed Transaction History (Recorded in the County Clerk's Office) | ||||||||||
|---|---|---|---|---|---|---|---|---|---|---|
| Date | Type | Book | Page | Price | Grantor | Grantee | ||||
|
6/10/2022 |
|
Deeds |
$1,000,000 |
FINCHLAND LLC |
L GRIFFIN MANAGEMENT USA INC |
|||||
|
9/26/2016 |
|
Deeds |
$18,000 |
BYRD REBECCA PERSON REP ESTAE SHANW R BYRD |
FINCHLAND LLC |
|||||
|
8/31/2016 |
|
Deeds |
$470,000 |
BYRD KENNETH GROTH PAULETTE M BYRD JOHN A HINKLE CHRISTI BYR |
FINCHLAND LLC |
|||||
| Last Mailed Notice of Value (N.O.V.) Information/History | ||||||||
|---|---|---|---|---|---|---|---|---|
| Year | Date | Market Value | Taxable Market Value | Gross Assessed | Exemption | Net Assessed | ||
|
2026 |
02/06/2026 |
372,773 |
321,154 |
35,326 |
0 |
35,326 |
||
|
2025 |
01/31/2025 |
396,898 |
311,800 |
34,297 |
0 |
34,297 |
||
|
2024 |
01/22/2024 |
322,483 |
302,719 |
33,298 |
0 |
33,298 |
||
| Property Building Permit History | |||||||||||
|---|---|---|---|---|---|---|---|---|---|---|---|
| Issued | Permit # | Provided by | Bldg # | Description | Est Construction Cost | Status | |||||
| No Building Permit records returned. | |||||||||||
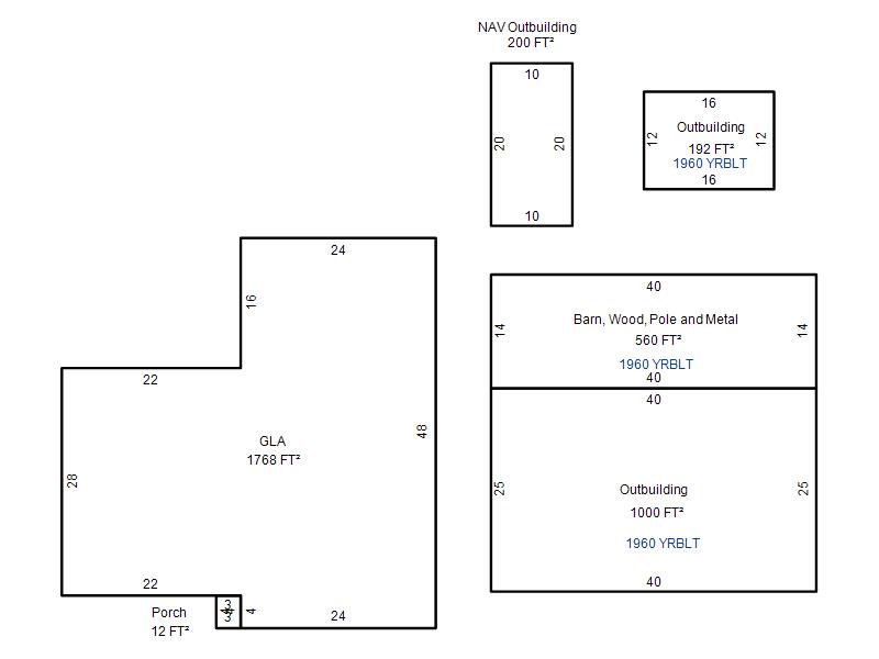
| Click button below to access detailed information and additional property photos: | ||||||
|---|---|---|---|---|---|---|
| Bldg # | Vacant/Improved Land | Bldg Description | Year Built | SqFt | # Stories | |
|
1 |
Improved |
Ranch 1 Story |
1960 |
1,768 |
1 Stories |
|
|
2 |
Improved |
Double Wide |
2022 |
1,836 |
1 Stories |
|