|
|
|
| Larry Stein Oklahoma County Assessor (405) 713-1200 - Public Access System |
|
|
|
|
|
|
| Real Property Display - Screen Produced 4/27/2026 9:23:43 AM | ||||
|---|---|---|---|---|
| Account: R257035010 | Type: Agricultural | Location: |
23990 N MACARTHUR BLVD |
|
| Building Name/Occupant: |
|
UNINCORPORATED |
||
| Owner Name 1: | MADOUX DEMILLE & BRENDA K |
Parcel PIN#: |
4811-25-703-5010 |
|
| Owner Name 2: | 1/4 section #: |
4811 |
||
| Owner Name 3: | Parent Acct: |
|
||
| Billing Address: | 23990 N MACARTHUR BLVD | Tax District: |
|
|
| City, State, Zip | EDMOND, OK 73025-9455 | School System: |
Deer Creek #6 |
|
|
Country: (If noted) |
Land Size: |
20.0000 Acres |
||
|
Land Value: 128,516 |
|
|||
|
Sect 3-T14N-R4W Qtr SW |
DEER CREEK TOWNSHIP
Block
000
Lot
000
|
|||
| Full Legal Description: DEER CREEK TOWNSHIP 000 000 PT SW4 SEC 3 14N 4W BEG 713.10FT S OF NW/C SW4 TH S332FT E2625.81FT N332FT W2624.22FT TO BEG CONT 20ACRS MORE OR LESS SUBJ TO ESMTS OF RECORD |
| No comparable sales report available. | ||||||||||||||||||||||
|
||||||||||||||||||||||
| Value History (*The County Treasurer 405-713-1300 posts & collects actual tax amounts. Contact information HERE) | |||||||||||||
|---|---|---|---|---|---|---|---|---|---|---|---|---|---|
| Year | Market Value | Taxable Mkt Value | Gross Assessed | Exemption | Net Assessed | Millage | Est. Tax | Tax Savings | |||||
|
2026 |
611,511 |
489,097 |
53,799 |
1,000 |
52,799 |
114.35 |
$6,038 |
$1,654 |
|||||
|
2025 |
596,412 |
474,852 |
52,233 |
1,000 |
51,233 |
114.35 |
$5,859 |
$1,643 |
|||||
|
2024 |
500,136 |
461,022 |
50,712 |
1,000 |
49,712 |
116.19 |
$5,776 |
$616 |
|||||
| Property Account Status/Adjustments/Exemptions | ||
|---|---|---|
| Account # | Exemption Description | Amount |
|
R257035010 |
Capped Ag 3% |
0 |
|
R257035010 |
Homestead |
1,000 |
| Property Deed Transaction History (Recorded in the County Clerk's Office) | |||||||
|---|---|---|---|---|---|---|---|
| Date | Type | Book | Page | Price | Grantor | Grantee | |
|
11/4/2005 |
|
Deeds |
$530,000 |
LAMPHIER GARY & JENNIFER A |
MADOUX DEMILLE & BRENDA K |
||
|
3/10/2004 |
|
Deeds |
$435,000 |
GIANNATTSIO FRANK & ROSE |
LAMPHIER GARY & JENNIFER A |
||
|
10/28/1993 |
|
Historical |
$0 |
|
GIANNATTSIO FRANK & ROSE |
||
| Last Mailed Notice of Value (N.O.V.) Information/History | ||||||||
|---|---|---|---|---|---|---|---|---|
| Year | Date | Market Value | Taxable Market Value | Gross Assessed | Exemption | Net Assessed | ||
|
2026 |
02/06/2026 |
611,511 |
489,097 |
53,799 |
1,000 |
52,799 |
||
|
2025 |
01/31/2025 |
596,412 |
474,852 |
52,233 |
1,000 |
51,233 |
||
|
2024 |
01/22/2024 |
500,136 |
461,022 |
50,712 |
1,000 |
49,712 |
||
| Property Building Permit History | ||||||
|---|---|---|---|---|---|---|
| Issued | Permit # | Provided by | Bldg # | Description | Est Construction Cost | Status |
|
3/17/1994 |
10277402 |
OKLAHOMA CITY |
1 |
Main Dwellin |
80,000 |
Inactive |
| Click button below to access detailed information and additional property photos: | ||||||
|---|---|---|---|---|---|---|
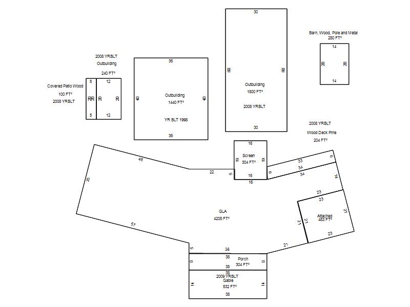
| Bldg # | Vacant/Improved Land | Bldg Description | Year Built | SqFt | # Stories | |
|
1 |
Improved |
Ranch 1 Story |
1998 |
4,205 |
1 Stories |
|