Larry Stein Oklahoma County Assessor (405) 713-1200 - Public Access System
Home Contact Us Guest Book Map Search New Search
Real Property Display - Screen Produced   4/25/2026 6:19:08 PM 
Account: R199271240  Type: Residential

  

Location:

7006 NW 222ND ST

Building Name/Occupant:

 

UNINCORPORATED

Owner Name 1:  CALLAWAY ROBERT L & LINDA L TRS

Parcel PIN#:

4830-19-927-1240

Owner Name 2:  CALLAWAY TRUST 1/4 section #:

4830

Owner Name 3:    Parent Acct:

 

Billing Address:  7006 NW 222ND ST Tax District:

City, State, Zip  EDMOND, OK  73025-9403 School System:

Deer Creek #6

Country: (If noted)

  

Land Size:

1.2500  Acres

Personal Property

Land Value: 31,244 

Treasurer:

Sect 8-T14N-R4W Qtr SE

 ROCKWELL FARM ESTATES   Block 001  Lot 013   Subdivision Sales
 Full Legal Description:  ROCKWELL FARM ESTATES 001 013

NOTE:  The following sales may or may not be used to determine Fair Market Value

Photo & Sketch (if available) Sales  Sales Report

 4117 NW 220TH ST UNINCORPORATED, OK

07/21/2025

 $540,000 

 22830 N ROCKWELL AVE UNINCORPORATED, OK

11/10/2025

 $665,000 

 22946 N ROCKWELL AVE UNINCORPORATED, OK

05/16/2025

 $805,000 

 7009 NW 222ND ST UNINCORPORATED, OK

02/25/2025

 $340,000 

 21815 N HUFFINES RD UNINCORPORATED, OK

05/07/2025

 $751,000 

 7501 NW 220TH ST UNINCORPORATED, OK

01/11/2022

 $605,000 

Value History  (*The County Treasurer 405-713-1300 posts & collects actual tax amounts.  Contact information  HERE)
Year Market Value Taxable Mkt Value Gross Assessed Exemption Net Assessed Millage Est. Tax Tax Savings

2026

454,000 

375,735 

41,330 

1,000 

40,330 

114.35 

$4,612 

$1,099 

2025

446,500 

364,792 

40,126 

1,000 

39,126 

114.35 

$4,474 

$1,142 

2024

430,500 

354,167 

38,958 

38,958 

116.19 

$4,527 

$976 

[1/10]
Property Account Status/Adjustments/Exemptions
Account # Exemption Description Amount

R199271240

Homestead

1,000 

R199271240

3% Cap Homestead

Property Deed Transaction History   (Recorded in the County Clerk's Office)
Date Type Book Page Price Grantor Grantee

11/26/2001

Deeds

8370

1285

 $0 

CALLAWAY ROBERT L LINDA

CALLAWAY ROBERT L & LINDA L TRS

6/1/1975

Historical

4228

97

 $0 

 

CALLAWAY LINDA L

Last Mailed Notice of Value (N.O.V.) Information/History
Year Date Market Value Taxable Market Value Gross Assessed Exemption Net Assessed

2026

02/06/2026

454,000 

375,735 

41,330 

1,000 

40,330 

2025

01/31/2025

446,500 

364,792 

40,126 

1,000 

39,126 

2024

01/22/2024

430,500 

354,167 

38,958 

38,958 

[1/5]
Property Building Permit History
Issued Permit # Provided by Bldg # Description Est Construction Cost Status

5/30/2012

10440675

COUNTY

1

Main Dwellin

184,000 

Inactive

Click button below to access detailed information and additional property photos:
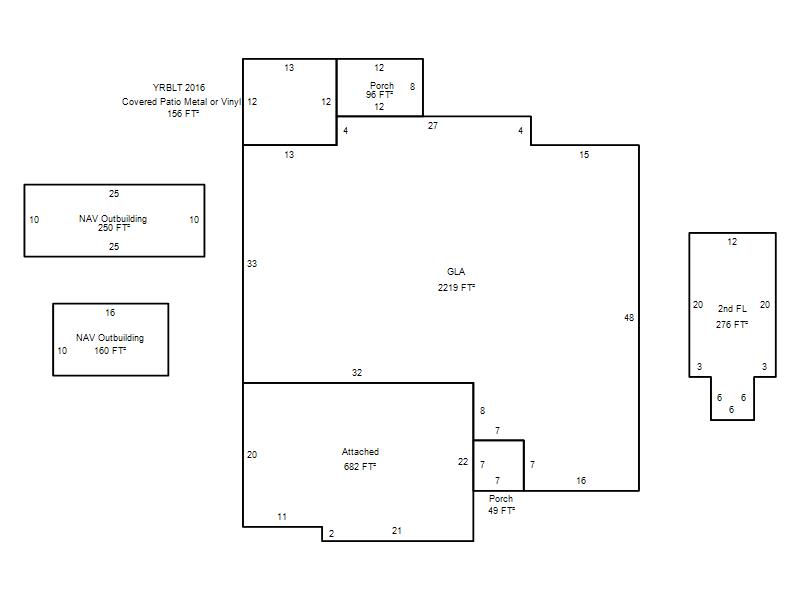
  Bldg # Vacant/Improved Land Bldg Description Year Built SqFt # Stories

Click

1

Improved

1½ Story Fin

2012

2,495 

1.5 Stories