Larry Stein Oklahoma County Assessor (405) 713-1200 - Public Access System
Home Contact Us Guest Book Map Search New Search
Real Property Display - Screen Produced   4/25/2026 6:19:09 PM 
Account: R199271440  Type: Residential

  

Location:

22001 OLE BARN RD

Building Name/Occupant:

 

UNINCORPORATED

Owner Name 1:  ZAPLETAL JOHN F & LINDA M

Parcel PIN#:

4830-19-927-1440

Owner Name 2:    1/4 section #:

4830

Owner Name 3:    Parent Acct:

 

Billing Address:  22001 OLE BARN RD Tax District:

City, State, Zip  EDMOND , OK  73025 School System:

Deer Creek #6

Country: (If noted)

  

Land Size:

1.7590  Acres

Personal Property

Land Value: 43,966 

Treasurer:

Sect 8-T14N-R4W Qtr SE

 ROCKWELL FARM ESTATES   Block 001  Lot 023   Subdivision Sales
 Full Legal Description:  ROCKWELL FARM ESTATES 001 023

NOTE:  The following sales may or may not be used to determine Fair Market Value

Photo & Sketch (if available) Sales  Sales Report

 7009 NW 222ND ST UNINCORPORATED, OK

02/25/2025

 $340,000 

 21700 N ROCKWELL AVE UNINCORPORATED, OK

07/25/2025

 $775,000 

 7475 NW 215TH ST UNINCORPORATED, OK

04/16/2025

 $450,000 

 7325 NW 215TH ST UNINCORPORATED, OK

05/30/2024

 $398,000 

 7320 NW 220TH ST EDMOND, OK

08/08/2024

 $250,000 

 4117 NW 220TH ST UNINCORPORATED, OK

07/21/2025

 $540,000 

Value History  (*The County Treasurer 405-713-1300 posts & collects actual tax amounts.  Contact information  HERE)
Year Market Value Taxable Mkt Value Gross Assessed Exemption Net Assessed Millage Est. Tax Tax Savings

2026

333,000 

235,911 

25,949 

1,000 

24,949 

114.35 

$2,853 

$1,336 

2025

332,500 

229,040 

25,193 

1,000 

24,193 

114.35 

$2,767 

$1,416 

2024

317,000 

222,369 

24,460 

1,000 

23,460 

116.19 

$2,726 

$1,326 

[1/10]
Property Account Status/Adjustments/Exemptions
Account # Exemption Description Amount

R199271440

3% Cap Homestead

R199271440

Homestead

1,000 

Property Deed Transaction History   (Recorded in the County Clerk's Office)
Date Type Book Page Price Grantor Grantee

5/25/2018

Deeds

13747

1396

 $192,000 

KELLEY CODY N & COURTNEY L

ZAPLETAL JOHN F & LINDA M

7/18/2012

Deeds

11988

1051

 $219,000 

LUCK JOHN R

KELLEY CODY N & COURTNEY L

10/29/2010

Deeds

11495

1085

 $198,500 

BURKE ROBERT D SR

LUCK JOHN R

[1/2]
Last Mailed Notice of Value (N.O.V.) Information/History
Year Date Market Value Taxable Market Value Gross Assessed Exemption Net Assessed

2026

02/06/2026

333,000 

235,911 

25,949 

1,000 

24,949 

2025

01/31/2025

332,500 

229,040 

25,193 

1,000 

24,193 

2024

01/22/2024

317,000 

222,369 

24,460 

1,000 

23,460 

[1/3]
Property Building Permit History
Issued Permit # Provided by Bldg # Description Est Construction Cost Status

8/27/2004

10296058

COUNTY

1

Storage Buil

9,500 

Inactive

Click button below to access detailed information and additional property photos:
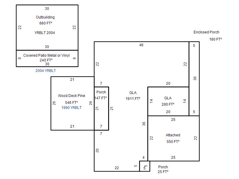
  Bldg # Vacant/Improved Land Bldg Description Year Built SqFt # Stories

Click

1

Improved

Ranch 1 Story

1974

2,191 

1 Stories